Nieuwbouw BEN kantoren met vlotte bereikbaarheid
Een pand van CEUSTERS
Jouw zoektocht
Overzicht
- 500 m² bewoonbaar
Beschrijving
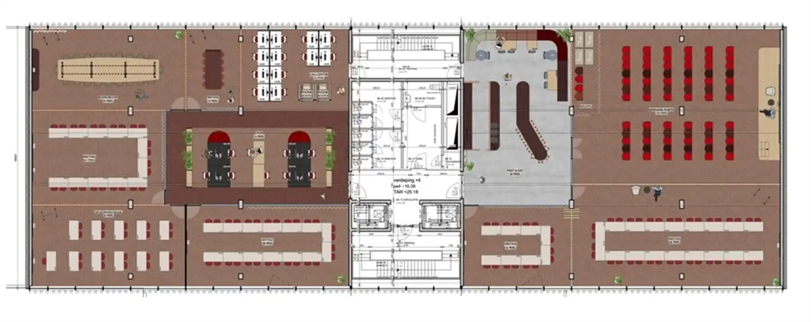
2 Nieuwbouw BEN kantoorgebouwen aan The Loop langsheen de Poortakkerstraat in Sint-Denijs-Westrem.
Eerste gebouw heeft 5 bouwlagen van telkens 1.000m².
Het tweede gebouw heeft 4 bouwlagen van telkens 1.000m² met centraal de gemeenschappelijke delen/sanitaire kern.
Mogelijkheid om op te splitsen vanaf 500m².
Beide gebouwen zijn voorzien van innovatieve energiezuinige technieken waardoor de verbruikskostenminimaal zullen zijn.
- Uiterst enegiezuinige BEN gebouwen (Bijna Energie Neutraal)
- Combinatie PV Installatie (224,960 KWp 592 PV panelen) -Geothermie -Klimaatplafond
- Geen fossiele brandstoffen
- Performant ventillatiesysteem ter bevordering van de luchtkwaliteit en bijgevolg werkomstandigheden
- LED Verlichting, DALI sturing (Digital Adressable Lighting Interface)
- Buitenzonwering volautomatisch gestuurd op basis van metingen van weerstation
- Hemelwaterrecuperatie voor hergebruik
De gebouwen staan op palen waardoor het gelijkvloers is voorzien van grote flexibele ontvangstruimten met buiten extra ruimte voor buitenbeleving en activiteiten.
Tussen de gebouwen komt een centraal beplant middenplein.
Ondergrondse parkeergarage van 84 parkeerplaatsen en 5 bovengronds, een afgesloten fietsenstalling voor 140 fietsen op het gelijkvloers, voorzien van oplaadpunten/palen.
Deelauto's en deelfietsen mogelijk.
Parkeerratio 1/100m² op de site. Bijkomende Parkeermogelijkheden op de parking van de Stad Gent.
Toegang middels nummerplaatherkenning.
Mogelijkheid tot bijhuren berging.
Vlot bereikbaar via autosnelweg E40/E17 en de Ring rond Gent (R4) alsook via de Kortrijksesteenweg.
Op fietsafstand (ca. 10min) van het station Gent Sint-Pieters via fietsbrug over de Ring. Bushalte op 350m.
Huurprijs exclusief 21% BTW.
Energie
![]() |
- EPC Certificaat: 44021-G-OMV_2018068651/EP08535/A001/D01/SD001
- E-peil: E0
- Beglazing: Onbekend
Op de kaart

Financieel
| Prijs | |
|---|---|
| Maandelijkse kosten | € 0 |
| Kadastraal inkomen (niet geïndexeerd) | € 0 |
| Kadastraal inkomen (geïndexeerd) | € 0 |
Bijkomende info
Gebouw
| Bouwcertificaat | Nee |
|---|---|
| Bewoonbaar (m²) | 500 |
| Verdieping | 0 |
| Badkamers | 0 |
| Slaapkamers | 0 |
| Verdiepingen | 0 |
| Garages | 0 |
| Parkeerplaatsen | 0 |
| Doucheruimtes | 0 |
| Toiletten | 0 |
Faciliteiten
| Elektrisch keuringsattest | Ja |
|---|
Perceel
| Overstromingsgevoelig | Geen |
|---|---|
| Voorkeurrecht | Nee |
| Bebouwde oppervlakte (m²) | 0 |
| Tuin oppervlakte (m²) | 0 |
| Oppervlakte terras (m²) | 0 |
Vergunning
| Vergunning | Vergunning beschikbaar |
|---|---|
| Type gebied | Stedelijk |
Uitrusting
| Investeringspand | Nee |
|---|---|
| Geschikt voor praktijk | Nee |
| Parking | Nee |
| Garage | Nee |
| Thuiskantoor | Nee |
| Kelder | Nee |
| Zolder | Nee |
| Tuin | Nee |
| Terras | Nee |
| Lift | Nee |
| Rioolaansluiting | Ja |
| Gasaansluiting | Ja |
| Wateraansluiting | Ja |
| Elektriciteitsaansluiting | Ja |
| TV aansluiting | Ja |
| Internetaansluiting | Ja |
| Telefoonaansluiting | Ja |
Appartementsblok
| Naam residentie | Paula Marckxstraat 1-3 |
|---|---|
| Lift | Nee |
