Recente full Service kantoren nabij Flanders Expo
Een pand van CEUSTERS
Overzicht
- 155 m² bewoonbaar
Beschrijving
Recente all-in kantoren bij d'Office gelegen net buiten het Gentse stadscentrum met vlotte bereikbaarheid.
Het gebouw is ingericht als bedrijvencentrum met aandacht voor zowel functionaliteit, esthetiek, duurzaamheid, gezelligheid en openheid als privacy.
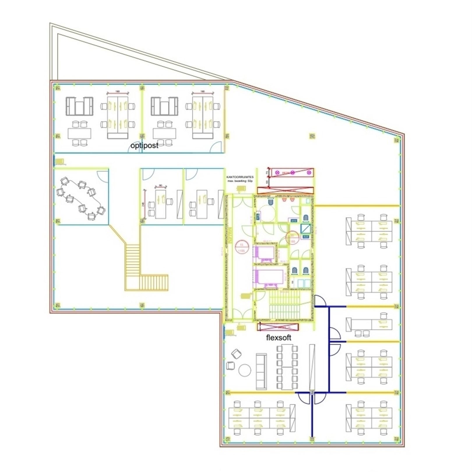
Er zijn momenteel 2 kantoorruimten beschikbaar.
De grootste beschikbare ruimte bevindt zich op de 2e verdieping van een modern kantoorgebouw en biedt een grote open landschapskantoorruimte en 4 burelen voor in totaliteit 26 werkplekken van 244 m².
Op de vierde verdieping is een open landschapskantoor met 2 aparte burelen beschikbaar voor 10 tot 12 werkplekken op een ruimte van 155 m².
Tal van vergaderzalen (4-30Pers.) zijn aanwezig op de 1ste verdieping alsook een multifunctionele lounge en een bistro concept met ontbijt, broodjes, pasta en verse salades.
De kantoren worden aangeboden volgens een all-in formule. Inclusief de maandelijkse huurprijs zijn:
- Onderhoud kantoor
- Nutsvoorzieningen (elektriciteit, verwarming en water)
- Telefonisch onthaal
- Meubilair
- Wifi
- Telefoonaansluiting
- Gebruik gemeenschappelijke lunchruimte
Optionele zaken die voorzien kunnen worden: telefoontoestellen met privé tel nr., printer, cloudomgeving, office en maillicentie,
antivirus, additionele IT-diensten, additionele administratieve diensten, Boekhouding(fiscale/juridische diensten)
Parkeerplaatsen kunnen gehuurd worden aan 165,00 euro/pl/maand.
Twee parkeerplaatsen (en laadpalen) beschikbaar.
D' Office is gelegen op het kruispunt van de belangrijkste snelwegen (E40/E17/R4) opgetrokken in the Loop (zone rond Flanders Expo).
Openbaar vervoer in onmiddellijke omgeving vanuit station Gent-Sint-Pieters of centrum; tram 1 en buslijnen 76/77/78 richting Flanders Expo.
Energie
- E-peil: E0
- Beglazing: Onbekend
Op de kaart

Financieel
| Prijs | |
|---|---|
| Maandelijkse kosten | € 0 |
| Kadastraal inkomen (niet geïndexeerd) | € 0 |
| Kadastraal inkomen (geïndexeerd) | € 0 |
Bijkomende info
Gebouw
| Bouwcertificaat | Nee |
|---|---|
| Bewoonbaar (m²) | 155 |
| Verdieping | 0 |
| Badkamers | 0 |
| Slaapkamers | 0 |
| Verdiepingen | 0 |
| Garages | 0 |
| Parkeerplaatsen | 0 |
| Doucheruimtes | 0 |
| Toiletten | 0 |
Faciliteiten
| Elektrisch keuringsattest | Nee |
|---|
Perceel
| Overstromingsgevoelig | Geen |
|---|---|
| Voorkeurrecht | Nee |
| Bebouwde oppervlakte (m²) | 0 |
| Tuin oppervlakte (m²) | 0 |
| Oppervlakte terras (m²) | 0 |
Vergunning
| Vergunning | Vergunning beschikbaar |
|---|---|
| Verkavelingsvergunning | Geen beschikbaar |
Uitrusting
| Investeringspand | Nee |
|---|---|
| Geschikt voor praktijk | Nee |
| Parking | Nee |
| Garage | Nee |
| Thuiskantoor | Nee |
| Kelder | Nee |
| Zolder | Nee |
| Tuin | Nee |
| Terras | Nee |
| Lift | Nee |
| Rioolaansluiting | Ja |
| Gasaansluiting | Ja |
| Wateraansluiting | Ja |
| Elektriciteitsaansluiting | Ja |
| TV aansluiting | Ja |
| Internetaansluiting | Ja |
| Telefoonaansluiting | Ja |
Appartementsblok
| Naam residentie | POORTAKKERSTRAAT 93 SINT-DENIJS-WESTREM |
|---|---|
| Lift | Nee |