Nieuwbouwproject aan The Loop vanaf 435m² tot 1027m² beschikbaar
Een pand van CEUSTERS
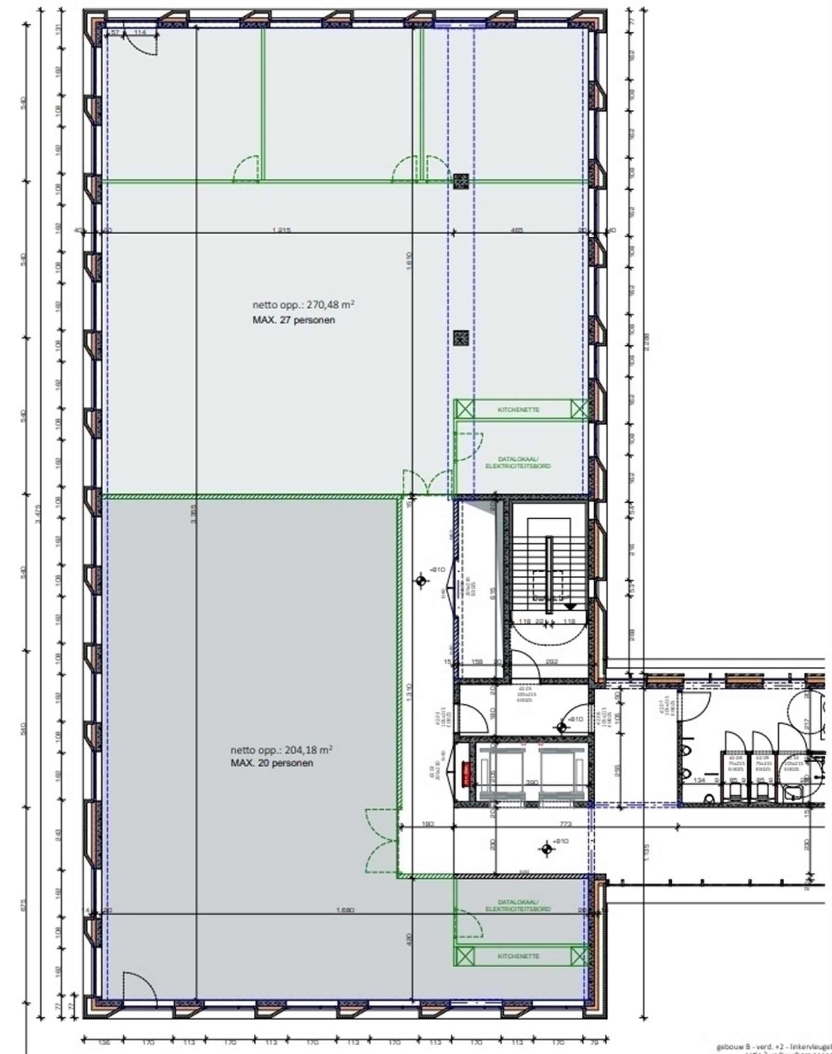
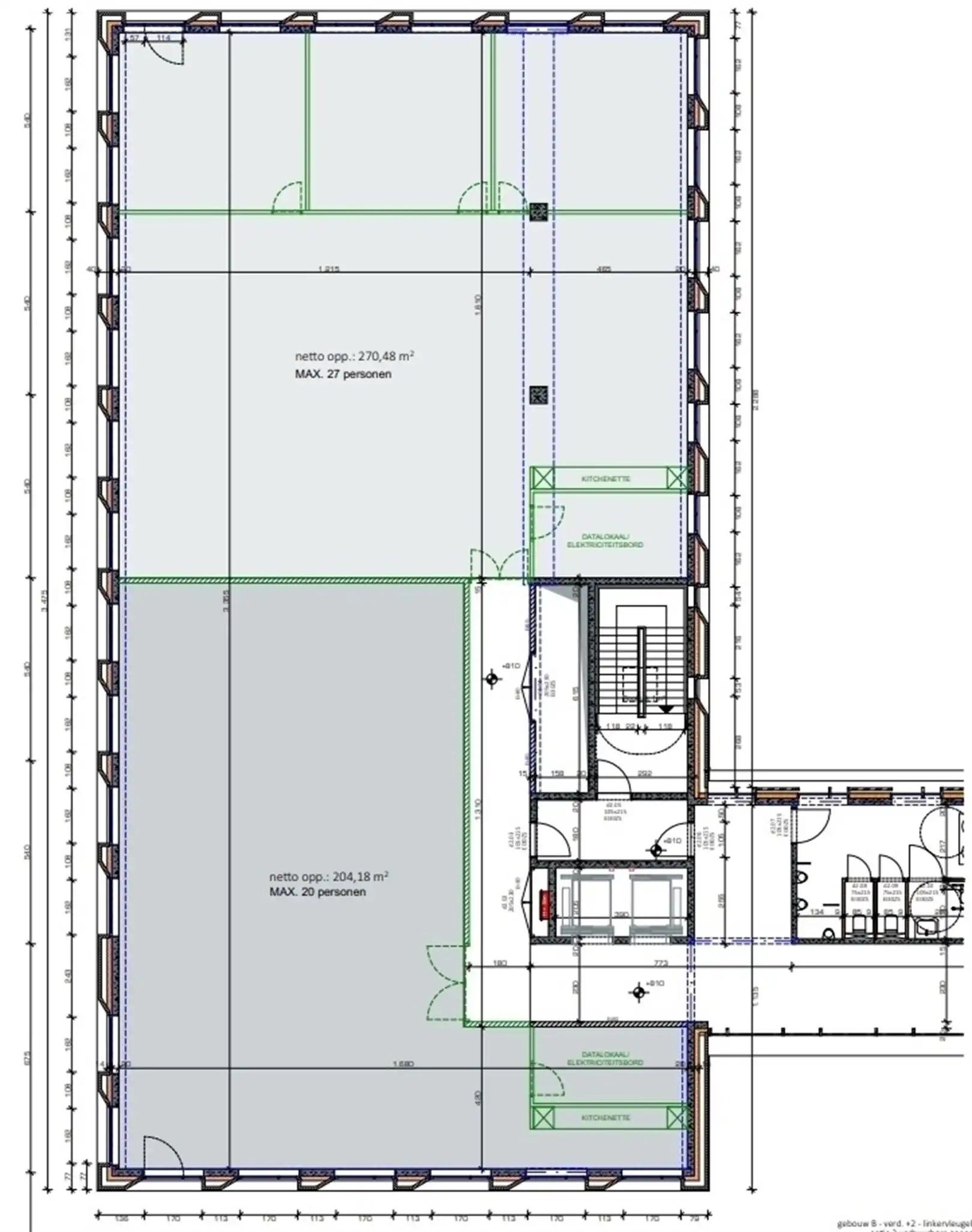
Overzicht
- 435 m² bewoonbaar
Beschrijving
Duurzaam nieuwbouwproject met BREEAM Excellent certification genaamd "Networks Gent" gelegen binnen het projectontwikkelingsgebied 'The Loop' aan Flanders Expo.
Het project bestaat uit 2 gebouwen van telkens 6 kantoorverdiepingen.
De site is voorzien van een zogenaamd Beo-veld voor verwarming en koeling en daardoor heel ecologisch in verbruik.
De kantoren worden landscape afgewerkt en zijn voorzien van alle moderne comfort zoals verhoogde vloer met tapijtbekleding, klimaatplafond Ledverlichting, ... en veel natuurlijke lichtinval.
Laatste halfverdiep beschikbaar.
Verder worden gemeenschappelijke vergaderzalen en ruimtes voor gedeelde diensten voorzien zoals een eetruimte, lockers, afhaalpunt voor pakjes, douches, ...
Laatste beschikbare plateaus in gebouw 'ONE'
Parkeren onder de gebouwen met slim parkeermanagement. Diverse laadpunten voor wagens en fietsen zullen aanwezig zijn.
(P 1/76, meer bespreekbaar)
Mogelijkheid gebruik 'Swap Fiets'
De huurprijzen zijn telkens exclusief 21% BTW.
Ideaal voor bedrijven die een vlotte bereikbaarheid vooropstellen:
- Sint-Pietersstation op 7min fietsen
- Openbaar vervoer (bus/tram) op wandelafstand
- Vlotte ontsluiting naar de E40 en R4 (ring rond Gent) via de Pégoudlaan, de centrale ruggengraat doorheen 'The Loop'
Energie
![]() |
- Energieverbruik: 1 kWh/m²/jaar
- E-peil: E0
- Beglazing: Onbekend
Op de kaart

Financieel
| Prijs | |
|---|---|
| Maandelijkse kosten | € 0 |
| Kadastraal inkomen (niet geïndexeerd) | € 0 |
| Kadastraal inkomen (geïndexeerd) | € 0 |
Bijkomende info
Gebouw
| Bouwcertificaat | Ja |
|---|---|
| Bewoonbaar (m²) | 435 |
| Verdieping | 0 |
| Badkamers | 0 |
| Slaapkamers | 0 |
| Verdiepingen | 0 |
| Garages | 0 |
| Parkeerplaatsen | 0 |
| Doucheruimtes | 0 |
| Toiletten | 0 |
Faciliteiten
| Elektrisch keuringsattest | Ja |
|---|
Perceel
| Overstromingsgevoelig | Geen |
|---|---|
| Voorkeurrecht | Nee |
| Bebouwde oppervlakte (m²) | 0 |
| Tuin oppervlakte (m²) | 0 |
| Oppervlakte terras (m²) | 0 |
Vergunning
| Vergunning | Vergunning beschikbaar |
|---|---|
| Verkavelingsvergunning | Geen beschikbaar |
Uitrusting
| Investeringspand | Nee |
|---|---|
| Geschikt voor praktijk | Nee |
| Parking | Nee |
| Garage | Nee |
| Thuiskantoor | Nee |
| Kelder | Nee |
| Zolder | Nee |
| Tuin | Nee |
| Terras | Nee |
| Lift | Nee |
| Rioolaansluiting | Ja |
| Gasaansluiting | Ja |
| Wateraansluiting | Ja |
| Elektriciteitsaansluiting | Ja |
| TV aansluiting | Ja |
| Internetaansluiting | Ja |
| Telefoonaansluiting | Ja |
Appartementsblok
| Naam residentie | Networks Gent |
|---|---|
| Lift | Nee |
