Nieuw
Gelijkvloers nieuwbouwappartement met tuin en twee slaapkamers
Een pand van IMMO JET
Overzicht
- 79 m² bewoonbaar
- 2 Slaapkamer(s)
- 1 Badkamer(s)
- 1 Toilet(ten)
- 1 Tuin
Beschrijving
Ontdek dit moderne gelijkvloers appartement, waar comfort, licht en energiezuinig wonen perfect samenkomen.
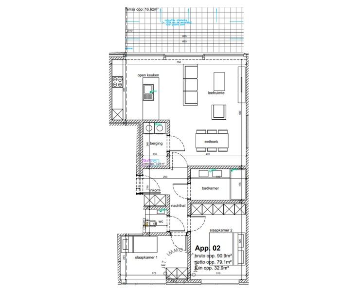
Indeling: inkom, apart toilet, badkamer met inloopdouche, lavabomeubel en handdoekradiator, ruime woonkamer met open keuken, berging en 2 comfortabele slaapkamers.
Buiten: privatieve, omheinde tuin.
Parkeren & berging: ondergrondse autostaanplaats en privatieve berging met elektriciteit inbegrepen in de huurprijs.
Afwerking: volledig geschilderd opgeleverd, voorzien van armaturen, gordijnrails en lichte deuren.
Duurzaam & energiezuinig: verwarming via geothermie en zonnepanelen per appartement, E-peil ≤ 20.
Beschikbaar: februari
Algemene onkosten: 115 euro / maand
Benieuwd naar dit project? Neem contact met ons op voor meer informatie of een rondleiding:
📞 03/775.44.10
📧 info@immo-jet.be
Indeling: inkom, apart toilet, badkamer met inloopdouche, lavabomeubel en handdoekradiator, ruime woonkamer met open keuken, berging en 2 comfortabele slaapkamers.
Buiten: privatieve, omheinde tuin.
Parkeren & berging: ondergrondse autostaanplaats en privatieve berging met elektriciteit inbegrepen in de huurprijs.
Afwerking: volledig geschilderd opgeleverd, voorzien van armaturen, gordijnrails en lichte deuren.
Duurzaam & energiezuinig: verwarming via geothermie en zonnepanelen per appartement, E-peil ≤ 20.
Beschikbaar: februari
Algemene onkosten: 115 euro / maand
Benieuwd naar dit project? Neem contact met ons op voor meer informatie of een rondleiding:
📞 03/775.44.10
📧 info@immo-jet.be
Energie
- E-peil: E0
- Beglazing: Standaard dubbel
Zelfcheck
Op de kaart

Financieel
| Prijs | |
|---|---|
| Maandelijkse kosten | € 0 |
Bijkomende info
Gebouw
| Bouwjaar | 2025 |
|---|---|
| Bewoonbaar (m²) | 79 |
| Verdieping | 0 |
| Badkamers | 1 |
| Slaapkamers | 2 |
| Verdiepingen | 3 |
| Garages | 0 |
| Parkeerplaatsen | 0 |
| Toiletten | 1 |
Faciliteiten
| Beglazing | Standaard dubbel |
|---|---|
| Septische tank | Nee |
Perceel
| Bebouwde oppervlakte (m²) | 0 |
|---|---|
| Tuin oppervlakte (m²) | 0 |
Vergunning
| Verkavelingsvergunning | Geen beschikbaar |
|---|
Uitrusting
| Investeringspand | Nee |
|---|---|
| Parking | Nee |
| Garage | Nee |
| Opslagruimte | Ja |
| Tuin | Ja |
| Lift | Ja |
| Rioolaansluiting | Nee |
| Gasaansluiting | Nee |
| Wateraansluiting | Nee |
| Elektriciteitsaansluiting | Nee |
| Internetaansluiting | Ja |
| Telefoonaansluiting | Ja |
| Zonnepanelen | Ja |
| Zonneboiler | Nee |
| Alarm | Nee |
| Videofoon | Nee |
| Grondwaterput | Nee |
Appartementsblok
| Aantal verdiepingen | 3 |
|---|---|
| Lift | Ja |
| Intercom | Nee |
Een pand van
IMMO JET
Matchmakers in vastgoed
IMMO JET is een toegevoegde waarde voor vastgoed in het Waasland. Met haar vestiging op de Grote Markt van Beveren biedt ze een makkelijke toegang en duidelijke visualiteit. IMMO JET biedt een volwaardige vastgoedbeleving aan voor de verkoop en verhuur van woningen in diverse prijsklassen. Een bewuste keuze, zo wordt niemand uitgesloten en kan iedereen bij hun terecht. Iedere verkoper, koper, verhuurder en huurder verdient dezelfde onverdeelde aandacht en service. U wordt er met een glimlach verwelkomd, twijfel niet en maak een afspraak om te ontdekken wat deze straffe madammen voor u kunnen betekenen.
25123
Leer meer over vastgoed
26 October 2025
Fake huuradvertenties op Facebook
06 July 2025
Wie betaalt herstellingen aan de huurwoning?
01 July 2025
Ik wil mijn huurcontract opzeggen. Hoe doe ik dit?
20 April 2025