NIEUW APPT MET 2 SLPKS EN AUTOSTAANPL.
Een pand van Smet Vastgoed & Landmeten BV
Overzicht
- 84 m² bewoonbaar
- 2 Slaapkamer(s)
- 1 Badkamer(s)
- 1 Toilet(ten)
Beschrijving
Aantrekkelijk en energiezuinig nieuwbouwappartement te huur in hartje Haasdonk
In een kleinschalige nieuwbouwresidentie stellen we graag één van de nog slechts 2 beschikbare appartementen voor.
Het gebouw beschikt over een lift, werd hoogwaardig afgewerkt en biedt alle modern comfort.
Dankzij het gebruik van energiezuinige technieken geniet u hier van een aangename woonervaring én lage verbruikskosten.
Gelegen in het centrum van Haasdonk, op een boogscheut van belangrijke invalswegen, woont u hier rustig maar toch uiterst vlot bereikbaar.
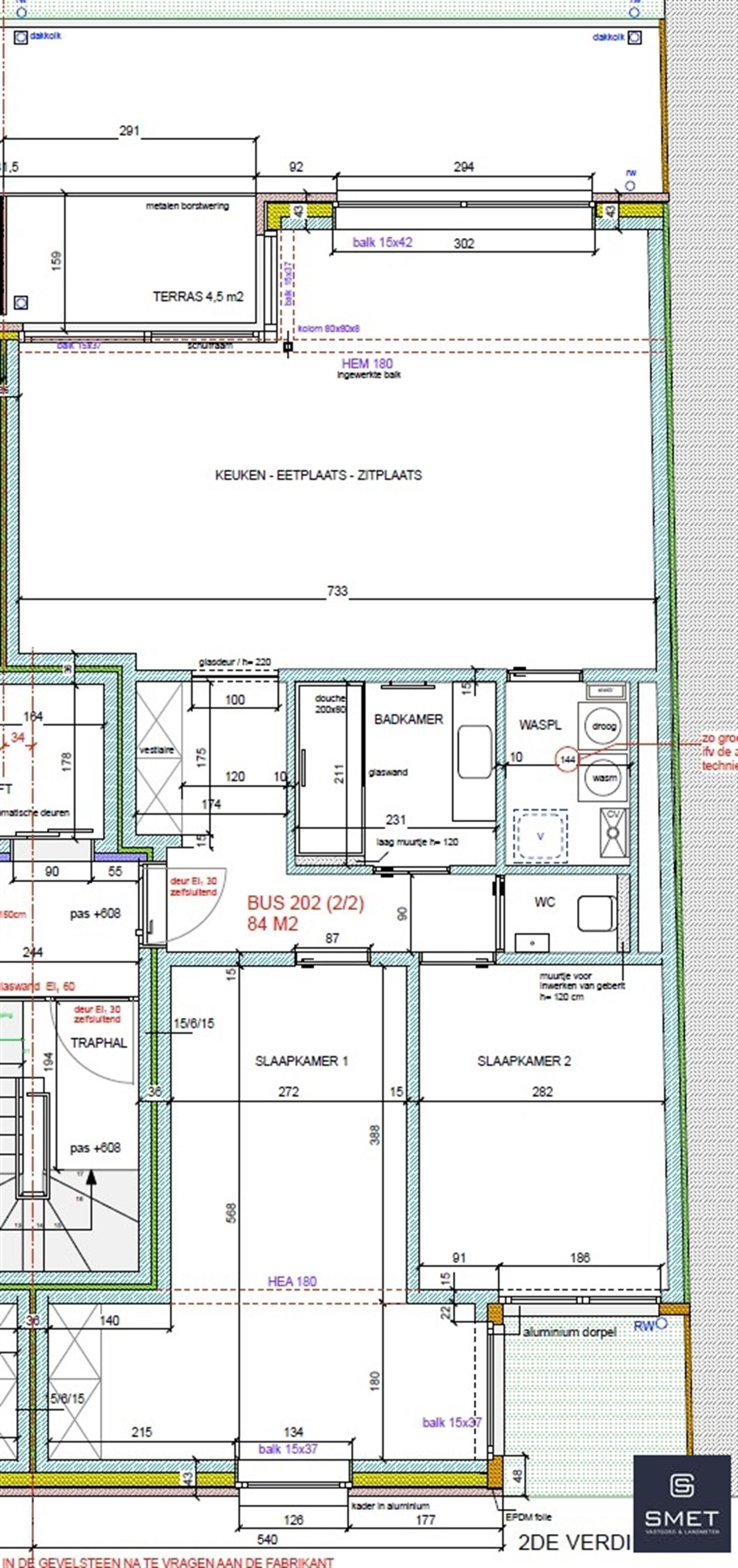
Indeling (2e verdieping rechts)
- Inkomhal met vestiairemogelijkheden
- Apart gastentoilet
- Lichtrijke leefruimte met grote raampartijen
- Open, volledig ingerichte keuken met praktisch kookeiland
- Zonnig terras (zuidelijke oriëntatie)
- Berging/wasruimte
- Badkamer met inloopdouche en lavabomeubel
- 2 volwaardige slaapkamers
Verder beschikt u over :
- een privatieve kelderberging
- een autostaanplaats
- een fietsenberging.
Belangrijke info :
- Huurprijs: € 975/maand
- Gemeenschappelijke kosten: € 75/maand
- Waarborg : € 2.925 (3x maandhuur)
- Plaatsbeschijving : € 175 (deel huurder)
ONMIDDELLIJK BESCHIKBAAR!
Bent u op zoek naar een stijlvol, comfortabel en energiezuinig nieuwbouwappartement op een centrale ligging?
Dan is dit beslist een bezoek waard!
Wenst u graag meer info of bent u geïnteresseerd in een plaatsbezoek?
Gelieve ons dan te contacteren op het nummer 03 775 41 88 of mail naar christel@vastgoed-smet.be
De verstrekte gegevens/informatie (zowel online als gedrukt) worden vrijblijvend verstrekt, enkel ter inlichting, zonder contractuele verbintenis of garantie van onzentwege en kunnen op ieder ogenblik gewijzigd worden.
Energie
![]() |
- Energieverbruik: 23 kWh/m²/jaar
- E-peil: E23
- Beglazing: Standaard dubbel
Zelfcheck
Op de kaart

Financieel
| Prijs | |
|---|---|
| Maandelijkse kosten | € 0 |
| Kadastraal inkomen (niet geïndexeerd) | € 0 |
| Kadastraal inkomen (geïndexeerd) | € 0 |
Bijkomende info
Gebouw
| Staat | Nieuw |
|---|---|
| Bouwcertificaat | Nee |
| Bewoonbaar (m²) | 84 |
| Verdieping | 2 |
| Badkamers | 1 |
| Slaapkamers | 2 |
| Verdiepingen | 3 |
| Garages | 0 |
| Parkeerplaatsen | 1 |
| Doucheruimtes | 0 |
| Toiletten | 1 |
Faciliteiten
| Keuken uitrusting | Luxueus uitgerust |
|---|---|
| Beglazing | Standaard dubbel |
| Elektrisch keuringsattest | Ja |
Perceel
| Overstromingsgevoelig | Geen |
|---|---|
| P-score | B |
| G-score | B |
| Voorkeurrecht | Nee |
| Bebouwde oppervlakte (m²) | 0 |
| Tuin oppervlakte (m²) | 0 |
| Oppervlakte terras (m²) | 0 |
Uitrusting
| Investeringspand | Nee |
|---|---|
| Geschikt voor praktijk | Nee |
| Parking | Ja |
| Garage | Nee |
| Thuiskantoor | Nee |
| Kelder | Ja |
| Zolder | Nee |
| Tuin | Nee |
| Terras | Ja |
| Lift | Nee |
| Rioolaansluiting | Nee |
| Gasaansluiting | Nee |
| Wateraansluiting | Nee |
| Elektriciteitsaansluiting | Nee |
| TV aansluiting | Nee |
| Internetaansluiting | Nee |
| Telefoonaansluiting | Nee |
Appartementsblok
| Aantal verdiepingen | 3 |
|---|---|
| Lift | Nee |
