andere
Een pand van Smet Vastgoed & Landmeten BV
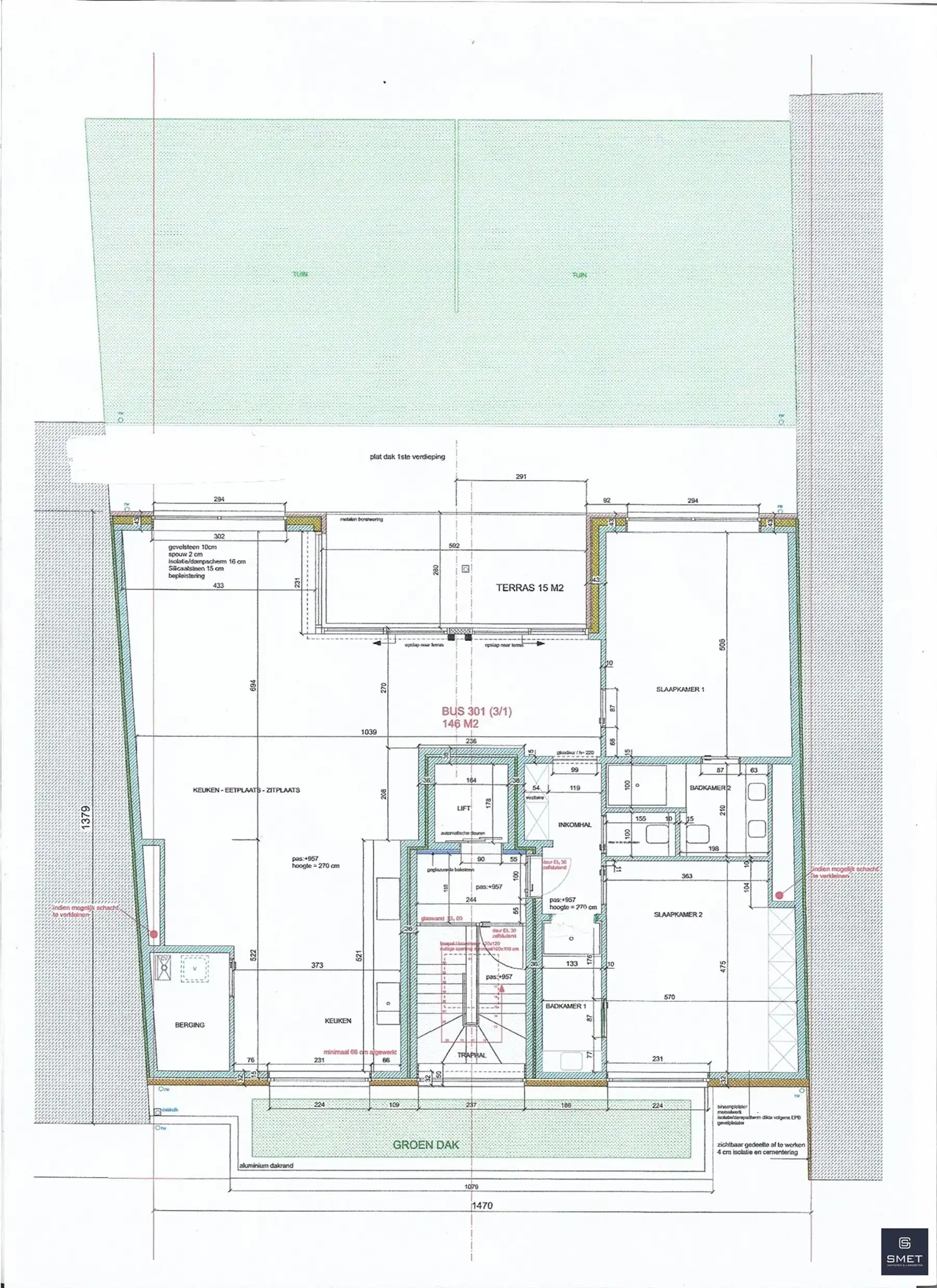
Overzicht
- 146 m² bewoonbaar
- 2 Slaapkamer(s)
- 2 Badkamer(s)
- 2 Toilet(ten)
Beschrijving
EXCLUSIEF NIEUWBOUW PENTHOUSE : LICHT, RUIMTE EN LUXE
Ontdek dit uitzonderlijk ruime penthouse van maar liefst 146 m², waar comfort en elegantie perfect samenkomen.
Bij het binnenkomen word je verwelkomd in een mooie inkomhal met vestiairemogelijkheden, gescheiden van de leefruimte door een stijlvolle pivoterende glas-in-stalen deur die meteen een moderne toets geeft.
De riante en lichtrijke woonkamer van > 60 m² sluit naadloos aan op de open keuken, die volledig uitgerust werd met alle hedendaags comfort.
Een praktische en ruime berging is vlakbij.
Aansluitend aan de woonkamer bevindt zich het zuidgericht terras van 15 m², dat toegankelijk is via een groot schuifraam.
Het dakappartement beschikt over twee zeer ruime slaapkamers (20 m² en 21,5 m²). De masterbedroom heeft een ensuite badkamer, terwijl de tweede slaapkamer gebruik maakt van een aparte naastgelegen douchekamer.
Verder zijn er twee toiletten, waarvan één apart.
Extra troeven zijn de privatieve kelderberging, een dubbele autostaanplaats en een fietsenberging die mee inbegrepen zijn in de huurprijs.
Tevens werden alle kamers reeds voorzien van overgordijnen en verlichting !
BELANGRIJKE INFO :
- Huurprijs: €1.325,-/maand
- Gemeenschappelijke kosten: €75,-/maand
- Huurwaarborg : 3 maanden huur
- Plaatsbeschrijving ingang huur : €400,- + BTW (€200,- + BTW voor de nieuwe huurder en €200,- + BTW voor de verhuurder)
- BESCHIKBAAR VANAF MAART 2026
Een uniek aanbod voor wie op zoek is naar ruimte, comfort en een verfijnde afwerking.
Dit penthouse moet je gezien hebben !
Interesse ? Wenst u graag meer info of bent u geïnteresseerd in een plaatsbezoek?
Gelieve ons dan te contacteren op het nummer 03 775 41 88 of mail naar christel@vastgoed-smet.be
De verstrekte gegevens/informatie (zowel online als gedrukt) worden vrijblijvend verstrekt, enkel ter inlichting, zonder contractuele verbintenis of garantie van onzentwege en kunnen op ieder ogenblik gewijzigd worden.
Energie
![]() |
- Energieverbruik: 22 kWh/m²/jaar
- E-peil: E0
- Beglazing: Standaard dubbel
Zelfcheck
Op de kaart

Financieel
| Prijs | |
|---|---|
| Maandelijkse kosten | € 0 |
| Kadastraal inkomen (niet geïndexeerd) | € 0 |
| Kadastraal inkomen (geïndexeerd) | € 0 |
Bijkomende info
Gebouw
| Bouwcertificaat | Nee |
|---|---|
| Bewoonbaar (m²) | 146 |
| Verdieping | 0 |
| Badkamers | 2 |
| Slaapkamers | 2 |
| Verdiepingen | 0 |
| Garages | 0 |
| Parkeerplaatsen | 2 |
| Doucheruimtes | 0 |
| Toiletten | 2 |
Faciliteiten
| Materiaal ramenomlijstingen | PVC |
|---|---|
| Beglazing | Standaard dubbel |
| Elektrisch keuringsattest | Ja |
Perceel
| Overstromingsgevoelig | Geen |
|---|---|
| Voorkeurrecht | Ja |
| Bebouwde oppervlakte (m²) | 0 |
| Tuin oppervlakte (m²) | 0 |
| Oppervlakte terras (m²) | 0 |
Vergunning
| Vergunning | Geen beschikbaar |
|---|---|
| Verkavelingsvergunning | Geen beschikbaar |
Uitrusting
| Investeringspand | Nee |
|---|---|
| Geschikt voor praktijk | Nee |
| Parking | Ja |
| Garage | Nee |
| Thuiskantoor | Nee |
| Kelder | Ja |
| Zolder | Nee |
| Tuin | Nee |
| Terras | Nee |
| Lift | Ja |
| Rioolaansluiting | Nee |
| Gasaansluiting | Nee |
| Wateraansluiting | Nee |
| Elektriciteitsaansluiting | Nee |
| TV aansluiting | Nee |
| Internetaansluiting | Nee |
| Telefoonaansluiting | Nee |
Appartementsblok
| Lift | Ja |
|---|
