Polyvalent pand
Prijs op aanvraag
Een pand van CEUSTERS
Jouw zoektocht
Overzicht
- 925 m² bewoonbaar
Beschrijving
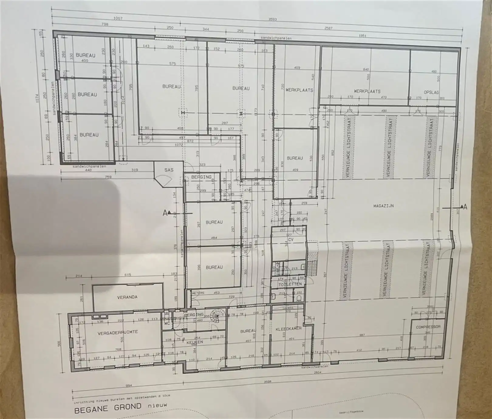
Dit veelzijdige bedrijfsgebouw in Verrebroek is ideaal voor ondernemers die op zoek zijn naar een ruime en goed uitgeruste werkplaats. Het pand heeft een moderne uitstraling met strakke gevels en opvallende accenten.
Binnen vindt u een uitgestrekte werkruimte die perfect is voor diverse industriële activiteiten, compleet met stevige constructies en uitstekende verlichting. De werkplaats is ruim genoeg om verschillende operationele activiteiten te huisvesten, en de aanwezigheid van hoogten biedt mogelijkheden voor het hanteren van grotere machines of opslag.
Het gebouw beschikt ook over meerdere kantoren en vergaderruimtes die licht, goed geventileerd en comfortabel zijn, ideaal voor administratieve taken en teamvergaderingen. De kantine biedt medewerkers een gezellige plek om te ontspannen tijdens pauzes.
Parkeergelegenheid is aanwezig (ca. 12 parkings) waardoor de bereikbaarheid makkelijk is voor zowel medewerkers als bezoekers. Deze strategisch gelegen locatie in Verrebroek, direct naast de haven van Antwerpen, biedt snelle toegang tot belangrijke wegen, wat transport en logistiek efficiënter maakt.
Deze accommodatie is een uitstekende mogelijkheid voor bedrijven die hun activiteiten willen centraliseren in een efficiënte en goed uitgeruste faciliteit.
- De huurprijs is exclusief kosten onroerende voorheffingen exclusief gebruik van nutsvoorzieningen/energie.
-De vooropgestelde huurprijs is steeds te vermeerderen met BTW.
Energie
- E-peil: E0
- Beglazing: Onbekend
Op de kaart

Financieel
| Maandelijkse kosten | € 0 |
|---|---|
| Kadastraal inkomen (niet geïndexeerd) | € 0 |
| Kadastraal inkomen (geïndexeerd) | € 0 |
Bijkomende info
Gebouw
| Bouwcertificaat | Nee |
|---|---|
| Bewoonbaar (m²) | 925 |
| Verdieping | 0 |
| Badkamers | 0 |
| Slaapkamers | 0 |
| Verdiepingen | 0 |
| Garages | 0 |
| Parkeerplaatsen | 0 |
| Doucheruimtes | 0 |
| Toiletten | 0 |
Faciliteiten
| Elektrisch keuringsattest | Nee |
|---|
Perceel
| Overstromingsgevoelig | Geen |
|---|---|
| Voorkeurrecht | Nee |
| Bebouwde oppervlakte (m²) | 0 |
| Tuin oppervlakte (m²) | 0 |
| Oppervlakte terras (m²) | 0 |
Uitrusting
| Investeringspand | Nee |
|---|---|
| Geschikt voor praktijk | Nee |
| Parking | Nee |
| Garage | Nee |
| Thuiskantoor | Nee |
| Kelder | Nee |
| Zolder | Nee |
| Tuin | Nee |
| Terras | Nee |
| Lift | Nee |
| Rioolaansluiting | Ja |
| Gasaansluiting | Ja |
| Wateraansluiting | Ja |
| Elektriciteitsaansluiting | Ja |
| TV aansluiting | Nee |
| Internetaansluiting | Nee |
| Telefoonaansluiting | Ja |
Appartementsblok
| Naam residentie | AVEN ACKERS 9 VERREBROEK |
|---|---|
| Lift | Nee |