Nieuwbouw appartement met scheldezicht
€ 1.000 (+€ 70)
Een pand van immobilienkantoor Hylebos
Overzicht
- 65 m² bewoonbaar
- 1 Slaapkamer(s)
- 1 Badkamer(s)
- 1 Toilet(ten)
- 1 Garage(s)
Beschrijving
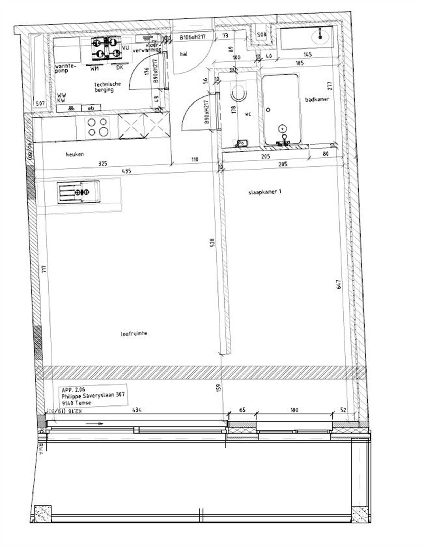
Dit prachtig nieuwbouwappartement met scheldezicht staat klaar voor zijn eerste bewoning en combineert hedendaags wooncomfort met energiezuinige technieken. Het appartement beschikt over één comfortabele slaapkamer en geniet van een aangename lichtinval dankzij de grote raampartijen die uitgeven op het mooie terras met zicht op de Schelde. De moderne badkamer is uitgerust met een douche en lavabo, terwijl het afzonderlijk toilet en de praktische berging zorgen voor extra gebruiksgemak. Verder is er een kelder voorzien en een ondergrondse autostaanplaats met mogelijkheid tot elektrisch laden. Het appartement is uiterst energiezuinig met een E-peil van 20 en is uitgerust met een warmtepomp en zonnepanelen, wat resulteert in lage energiekosten en duurzaam wonen. Bovendien wordt het appartement nog volledig nieuw geschilderd, zodat u kan verhuizen naar een instapklare, frisse woonomgeving in een aantrekkelijke en rustige setting aan de Schelde.
Energie
![]() |
- Energieverbruik: 40 kWh/m²/jaar
- E-peil: E20
- Beglazing: Onbekend
Zelfcheck
Op de kaart

Financieel
| Prijs | |
|---|---|
| Maandelijkse kosten | € 70 |
| Kadastraal inkomen (niet geïndexeerd) | € 0 |
| Kadastraal inkomen (geïndexeerd) | € 0 |
Bijkomende info
Gebouw
| Bouwjaar | 2025 |
|---|---|
| Staat | Goed onderhouden |
| Bouwcertificaat | Ja |
| Bewoonbaar (m²) | 65 |
| Verdieping | 2 |
| Badkamers | 1 |
| Slaapkamers | 1 |
| Verdiepingen | 3 |
| Garages | 1 |
| Parkeerplaatsen | 0 |
| Doucheruimtes | 0 |
| Toiletten | 1 |
Faciliteiten
| Keuken uitrusting | Luxueus uitgerust |
|---|---|
| Materiaal ramenomlijstingen | Aluminium |
| Elektrisch keuringsattest | Ja |
Perceel
| Overstromingsgevoelig | Geen |
|---|---|
| Voorkeurrecht | Nee |
| Bebouwde oppervlakte (m²) | 0 |
| Tuin oppervlakte (m²) | 0 |
| Oppervlakte terras (m²) | 15 |
Vergunning
| Vergunning | Vergunning beschikbaar |
|---|---|
| Verkavelingsvergunning | Vergunning beschikbaar |
Uitrusting
| Investeringspand | Nee |
|---|---|
| Geschikt voor praktijk | Nee |
| Parking | Nee |
| Garage | Ja |
| Thuiskantoor | Nee |
| Kelder | Ja |
| Zolder | Nee |
| Tuin | Nee |
| Terras | Ja |
| Lift | Ja |
| Rioolaansluiting | Ja |
| Gasaansluiting | Nee |
| Wateraansluiting | Ja |
| Elektriciteitsaansluiting | Ja |
| TV aansluiting | Ja |
| Internetaansluiting | Ja |
| Telefoonaansluiting | Ja |
Appartementsblok
| Aantal verdiepingen | 3 |
|---|---|
| Lift | Ja |
