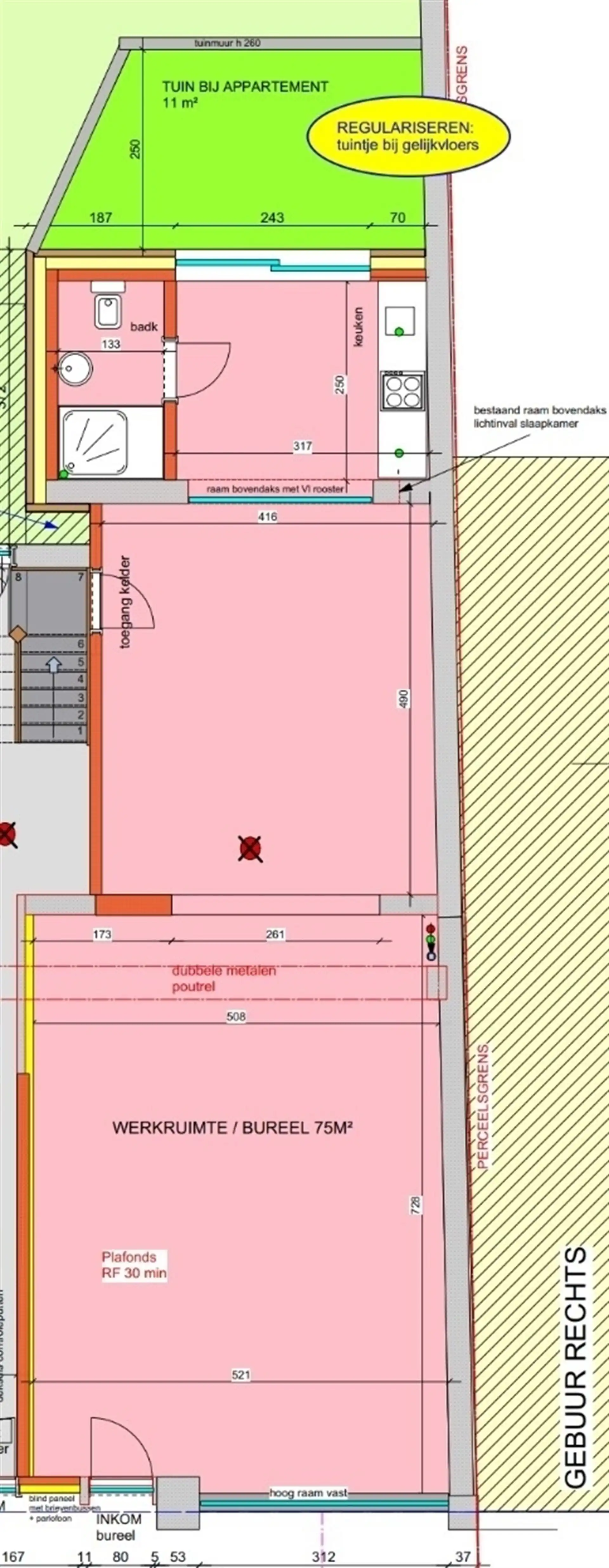
Gelijkvloerse kantoorruimte met kelder en terras.
€ 820 (+€ 80)
Een pand van Immo Zone
Favoriet
Jouw zoektocht
Jouw scoretabel voor dit pand
Aan het laden...
Jouw geplande bezichtigingen
Aan het laden...
Overzicht
- 82 m² bewoonbaar
- 1 Badkamer(s)
- 1 Toilet(ten)
Beschrijving
Kantoorruimte met uitstekende ligging in Wetteren centrum.
Op 200 meter van Markt Wetteren.
Kan afgesloten worden in 2 delen.
Toilet met lavabo en douche.
Gezellig terras.
CV met aardgas.
EPC label C (komt overeen met label B voor een woning).
+ €80,00/maand gemeenschappelijke kosten (met inbegrip van voorschot aardgas en onderhoud CV-ketel).
Dit kantoor is beschikbaar vanaf heden.
Energie
![]() |
- EPC Certificaat: 20251121-0003736493-KNR-1
- Energieverbruik: 302 kWh/m²/jaar
- E-peil: E0
- Verwarming: Gas
- Beglazing: Standaard dubbel
Op de kaart

Financieel
| Prijs | |
|---|---|
| Maandelijkse kosten | € 80 |
| Kadastraal inkomen (niet geïndexeerd) | € 0 |
| Kadastraal inkomen (geïndexeerd) | € 0 |
Bijkomende info
Gebouw
| Bouwcertificaat | Nee |
|---|---|
| Bewoonbaar (m²) | 82 |
| Verdieping | 0 |
| Badkamers | 1 |
| Slaapkamers | 0 |
| Verdiepingen | 0 |
| Garages | 0 |
| Parkeerplaatsen | 0 |
| Doucheruimtes | 1 |
| Toiletten | 1 |
Faciliteiten
| Beglazing | Standaard dubbel |
|---|---|
| Brandstof primaire verwarming | Gas |
| Elektrisch keuringsattest | Nee |
Perceel
| Overstromingsgevoelig | Geen |
|---|---|
| Voorkeurrecht | Ja |
| Bebouwde oppervlakte (m²) | 0 |
| Tuin oppervlakte (m²) | 0 |
| Oppervlakte terras (m²) | 0 |
Vergunning
| Vergunning | Geen beschikbaar |
|---|---|
| Verkavelingsvergunning | Geen beschikbaar |
Uitrusting
| Investeringspand | Nee |
|---|---|
| Geschikt voor praktijk | Nee |
| Parking | Nee |
| Garage | Nee |
| Thuiskantoor | Nee |
| Kelder | Ja |
| Zolder | Nee |
| Tuin | Nee |
| Terras | Ja |
| Lift | Nee |
| Rioolaansluiting | Nee |
| Gasaansluiting | Ja |
| Wateraansluiting | Ja |
| Elektriciteitsaansluiting | Ja |
| TV aansluiting | Ja |
| Internetaansluiting | Ja |
| Telefoonaansluiting | Ja |
Appartementsblok
| Lift | Nee |
|---|
Een pand van
Immo Zone
thuis in uw regio
Wenst u uw pand zonder zorgen en aan de voordeligste voorwaarden te verkopen ? Of wilt u een pand te huur aanbieden ?
Aantrekkelijke presentatie, online en offline campagnes, professioneel verloop van bezoeken. Immo Zone hecht belang aan een open en transparante communicatie.
Wij doen net dat tikkeltje extra om u zoveel mogelijk te ontzorgen.
Of bent u op zoek naar een Spaans vastgoed in zonzeker gebied? Ook daarvoor bent u aan het goede adres.
Elke dag opnieuw zetten wij ons beste beentje voor om uw nieuwe thuis te vinden, uw panden te verhuren of te verkopen. Vastgoed is onze passie en daar maakt u als klant deel van uit.
WETTEREN LIBBRECHTSTRAAT 11
Leer meer over vastgoed
04 January 2026
Zoek je een kantoor, een magazijn of… iets ertussenin? Bedrijfsvastgoed uitgelegd
05 November 2024
Bedrijfsvastgoed in transitie: ontdek de toekomst van werkplekken
16 October 2024
Opbrengsteigendom: een slim pad naar passief inkomen en vermogensgroei
09 September 2024
