Gerenoveerd kantoor/handelspand in centrum Oudenaarde
Een pand van CEUSTERS
Overzicht
- 160 m² bewoonbaar
Beschrijving
Moderne kantoren/winkelruimte/praktijkruimte op het gelijkvloers in een volledig gerenoveerd appartementsgebouw met 21 appartementen.
Gelegen in het centrum van Oudenaarde aan het water, naast het rusthuis Heilig Hart, de FOD belastingadministratie, horeca en detailhandel.
Directe buren: Vdk bank en Accent
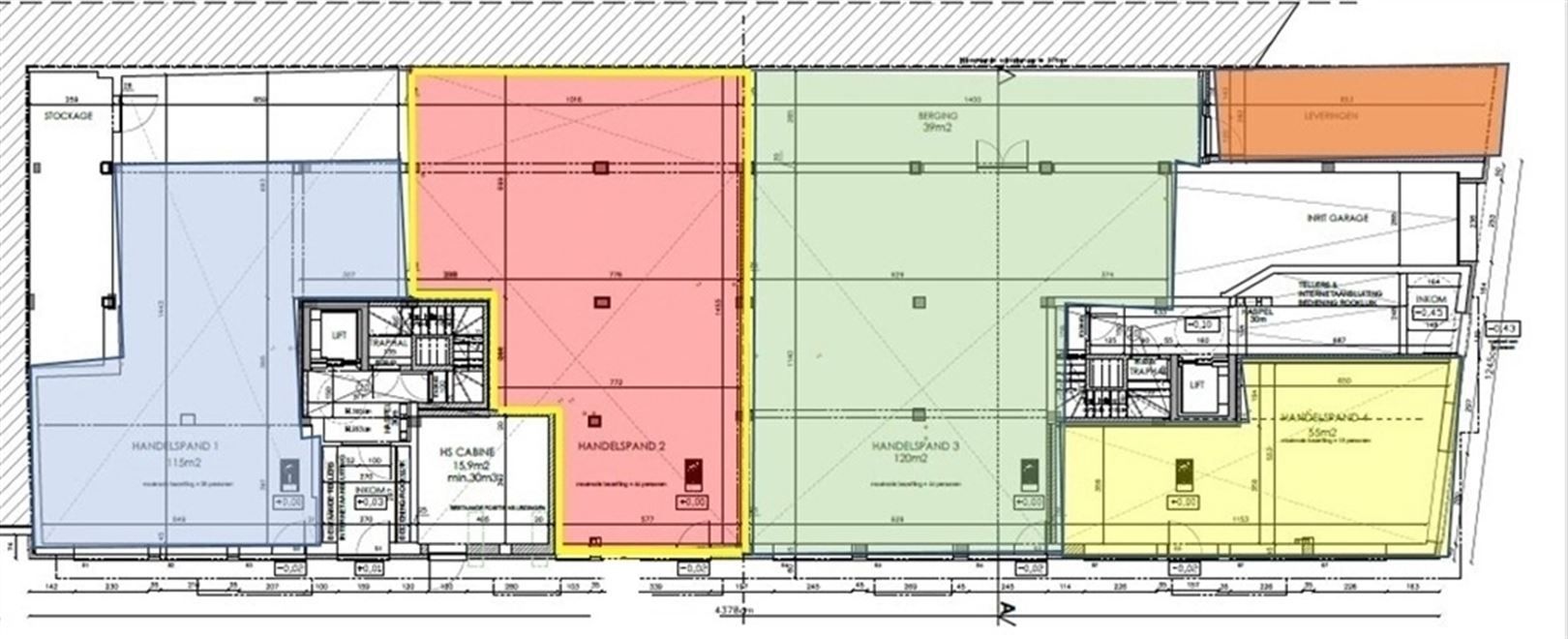
De laatst beschikbare ruimte is een multifunctionele ruimte, laatst gebruikt als kapperszaak.
Er zijn 14 publieke (gratis) parkeerplaatsen (waaronder 4 met laadpaal) beschikbaar voor het gebouw en 13 betalende publieke parkeerplaatsen op 25m.
Openbaar vervoer is aanwezig in de nabije omgeving met onder andere verbind naar station Oudenaarde.
Het betreft handelspand 2 op het grondplan.
Bijkomende kosten:
- Geen gemeenschappelijke kosten van toepassing.
- De onroerende voorheffing voor de ruimte van 160m² bedroeg 1.176,03 Euro voor aanslagjaar 2024.
EPC-label A.
Energie
![]() |
- EPC Certificaat: 20250521-0003603657-KNR-1
- E-peil: E0
- Beglazing: Onbekend
Op de kaart

Financieel
| Prijs | |
|---|---|
| Maandelijkse kosten | € 0 |
| Kadastraal inkomen (niet geïndexeerd) | € 0 |
| Kadastraal inkomen (geïndexeerd) | € 0 |
Bijkomende info
Gebouw
| Bouwcertificaat | Nee |
|---|---|
| Bewoonbaar (m²) | 160 |
| Verdieping | 0 |
| Badkamers | 0 |
| Slaapkamers | 0 |
| Verdiepingen | 0 |
| Garages | 0 |
| Parkeerplaatsen | 0 |
| Doucheruimtes | 0 |
| Toiletten | 0 |
Faciliteiten
| Elektrisch keuringsattest | Ja |
|---|
Perceel
| Overstromingsgevoelig | Geen |
|---|---|
| P-score | B |
| G-score | B |
| Voorkeurrecht | Nee |
| Bebouwde oppervlakte (m²) | 0 |
| Tuin oppervlakte (m²) | 0 |
| Oppervlakte terras (m²) | 0 |
Vergunning
| Vergunning | Vergunning beschikbaar |
|---|
Uitrusting
| Investeringspand | Nee |
|---|---|
| Geschikt voor praktijk | Nee |
| Parking | Nee |
| Garage | Nee |
| Thuiskantoor | Nee |
| Kelder | Nee |
| Zolder | Nee |
| Tuin | Nee |
| Terras | Nee |
| Lift | Nee |
| Rioolaansluiting | Nee |
| Gasaansluiting | Nee |
| Wateraansluiting | Nee |
| Elektriciteitsaansluiting | Nee |
| TV aansluiting | Nee |
| Internetaansluiting | Nee |
| Telefoonaansluiting | Nee |
Appartementsblok
| Naam residentie | MARLBOROUGHLAAN 1 & 2 OUDENAARDE |
|---|---|
| Lift | Nee |
