Beschikbaar vanaf 1 jan. 2026
Twee nieuwbouw loodsen met zichtlocatie E17
€ 43.582,25
Een pand van CEUSTERS
Favoriet
Jouw zoektocht
Jouw scoretabel voor dit pand
Aan het laden...
Jouw geplande bezichtigingen
Aan het laden...
Overzicht
- 8072 m² bewoonbaar
Beschrijving
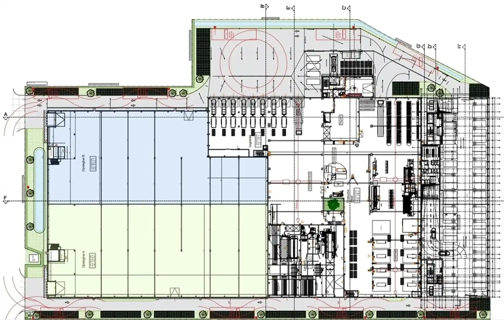
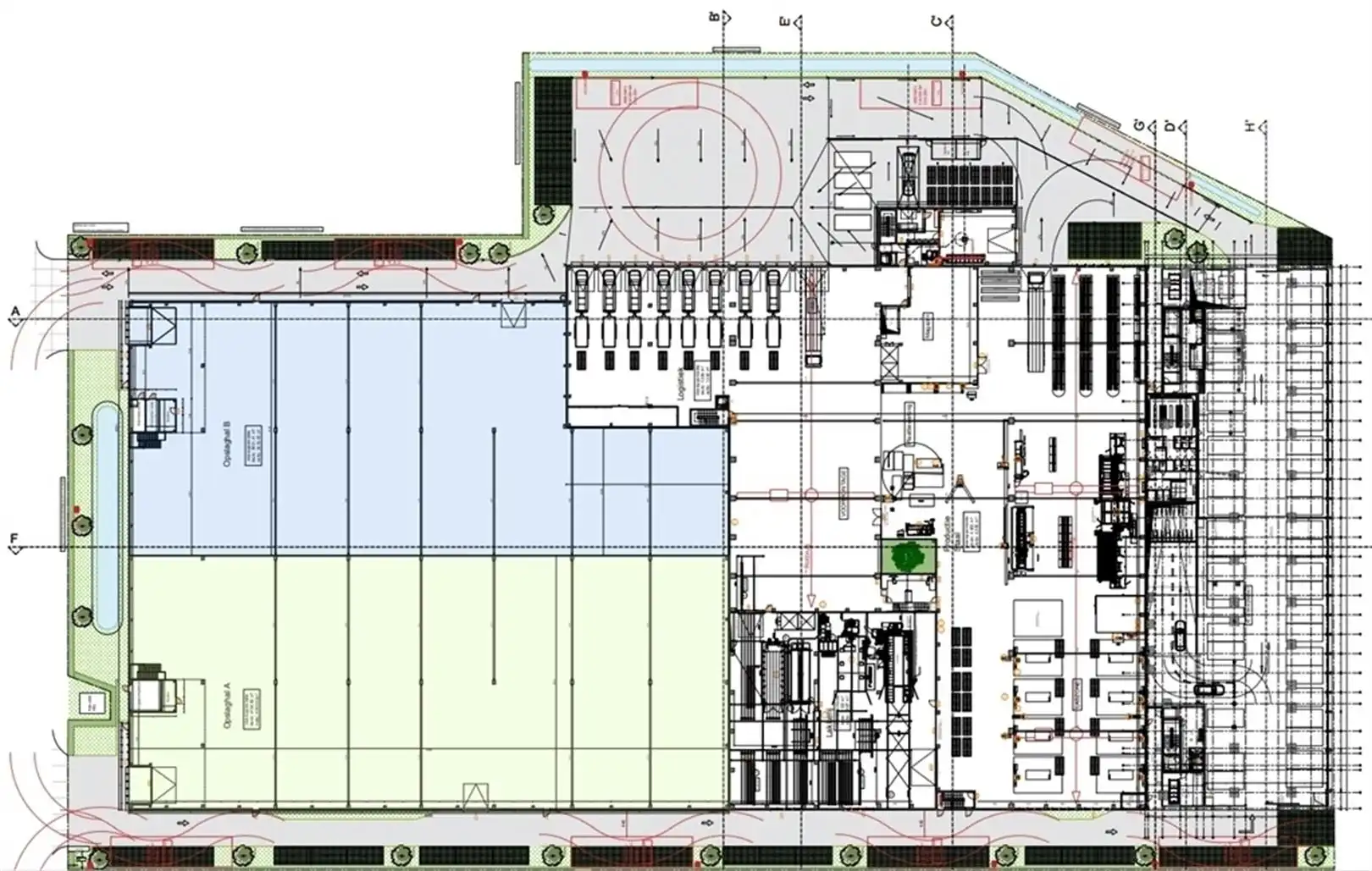
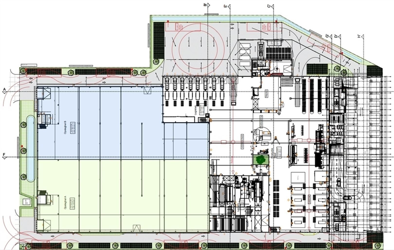
Op een strategische zichtocatie in Nazareth bieden wij twee nieuwbouw magazijnen aan met uitstekende faciliteiten en hoogwaardige afwerking. Beide loodsen zijn opgetrokken in duurzame betonconstructie en behalen een BREEAM Excellent-score.
Kan aparte of samen verhuurd worden.
Belangrijkste troeven:
- Ruime oppervlaktes:
- Loods A: ca. 4.155 m² bruto (4.046 m² opslagruimte + 257 m² kantoren)
- Loods B: ca. 3.601 m² bruto (3.510 m² opslagruimte + 259 m² kantoren)
- Vrije hoogte: 7,83 m
- Mezzanines geschikt voor kantoor of lichte goederenopslag (500 kg/m²)
- Hoogwaardige constructie: gepolierde betonvloer (20.000 kg/m²), energiezuinige dak- en muurisolatie, grote lichtstraten voor natuurlijke lichtinval
- Toegankelijkheid: brede poorten (6,00 m x 4,50 m en 4,00 m x 4,50 m) + meerdere toegangsdeuren
- Voorzieningen: aansluitingen voor water, elektriciteit (200 kVa), sanitair en laadinfrastructuur
- Extra mogelijkheden: consoles voor rolbruggen (tot 4 ton), regenwaterput (20.000 L), rookschermen conform RWA
- Professionele uitstraling dankzij moderne vliesgevels en verzorgde groenaanleg
- Parkeer- en laadplaatsen voor elektrische wagens zijn overeen te komen
- Hoogspanningscabine
- Groenaanleg
- Dak met 12 cm PIR
- Wanden met 9 cm PIR
- Lichtstraten met verbeterde energetische waarde
Ligging & bereikbaarheid
- Afrit Nazareth/Deinze (Eke) ligt op slechts enkele minuten rijden (± 2 km). Deze oprit/afrit geeft rechtstreeks toegang tot de E17 met een vlotte verbinding naar Gent, Kortrijk, Antwerpen en Frankrijk
- De site is ook vlot bereikbaar vanaf de E40 (Brussel Oostende), via de knooppunten in Gent. Hierdoor is er een directe link naar Brussel, de kust en de luchthaven van Zaventem.
Dankzij de nabijheid van de E17 en E40 ligt het terrein centraal tussen de hubs van Antwerpen en Gent, ideaal voor distributie, productie of opslag met nationale en internationale reikwijdte.Ideaal voor bedrijven die op zoek zijn naar kwalitatieve opslagruimte met uitbreidingsmogelijkheden en uitstekende logistieke troeven.
Intersesse? Neem vandaag nog contact op met Ceusters voor meer informatie.
Energie
- E-peil: E0
- Beglazing: Onbekend
Op de kaart

Financieel
| Prijs | |
|---|---|
| Maandelijkse kosten | € 0 |
| Kadastraal inkomen (niet geïndexeerd) | € 0 |
| Kadastraal inkomen (geïndexeerd) | € 0 |
Bijkomende info
Gebouw
| Bouwcertificaat | Nee |
|---|---|
| Bewoonbaar (m²) | 8072 |
| Verdieping | 0 |
| Badkamers | 0 |
| Slaapkamers | 0 |
| Verdiepingen | 0 |
| Garages | 0 |
| Parkeerplaatsen | 0 |
| Doucheruimtes | 0 |
| Toiletten | 0 |
Faciliteiten
| Elektrisch keuringsattest | Nee |
|---|
Perceel
| Overstromingsgevoelig | Geen |
|---|---|
| Voorkeurrecht | Nee |
| Bebouwde oppervlakte (m²) | 0 |
| Tuin oppervlakte (m²) | 0 |
| Oppervlakte terras (m²) | 0 |
Vergunning
| Vergunning | Vergunning beschikbaar |
|---|---|
| Verkavelingsvergunning | Geen beschikbaar |
Uitrusting
| Investeringspand | Nee |
|---|---|
| Geschikt voor praktijk | Nee |
| Parking | Nee |
| Garage | Nee |
| Thuiskantoor | Nee |
| Kelder | Nee |
| Zolder | Nee |
| Tuin | Nee |
| Terras | Nee |
| Lift | Nee |
| Rioolaansluiting | Nee |
| Gasaansluiting | Nee |
| Wateraansluiting | Nee |
| Elektriciteitsaansluiting | Nee |
| TV aansluiting | Nee |
| Internetaansluiting | Nee |
| Telefoonaansluiting | Nee |
Appartementsblok
| Naam residentie | NIJVERHEIDSTRAAT 6 NAZARETH |
|---|---|
| Lift | Nee |
Een pand van
CEUSTERS
CEUSTERS
Onze experts in property management en vastgoedadvies stellen een kwalitatieve dienstverlening voorop. Creatief en flexibel gaat ons team op zoek naar kansen en oplossingen voor elke klant. Telkens een stapje verder. Naast onze kantoren in Antwerpen, Gent, Brussel, Hasselt en Rotterdam (Nederland), opereert CEUSTERS vanuit zes andere vestigingen verspreid over heel België. In deze snel veranderende wereld staat ons sterk inzicht in de lokale markt garant voor continuïteit.
NIJVERHEIDSTRAAT 6 NAZARETH
Leer meer over vastgoed
04 January 2026
Zoek je een kantoor, een magazijn of… iets ertussenin? Bedrijfsvastgoed uitgelegd
05 November 2024
Bedrijfsvastgoed in transitie: ontdek de toekomst van werkplekken
16 October 2024
Opbrengsteigendom: een slim pad naar passief inkomen en vermogensgroei
09 September 2024