Gelijkvloers kantoren op zichtlocatie langs Kortrijksesteenweg
Een pand van CEUSTERS
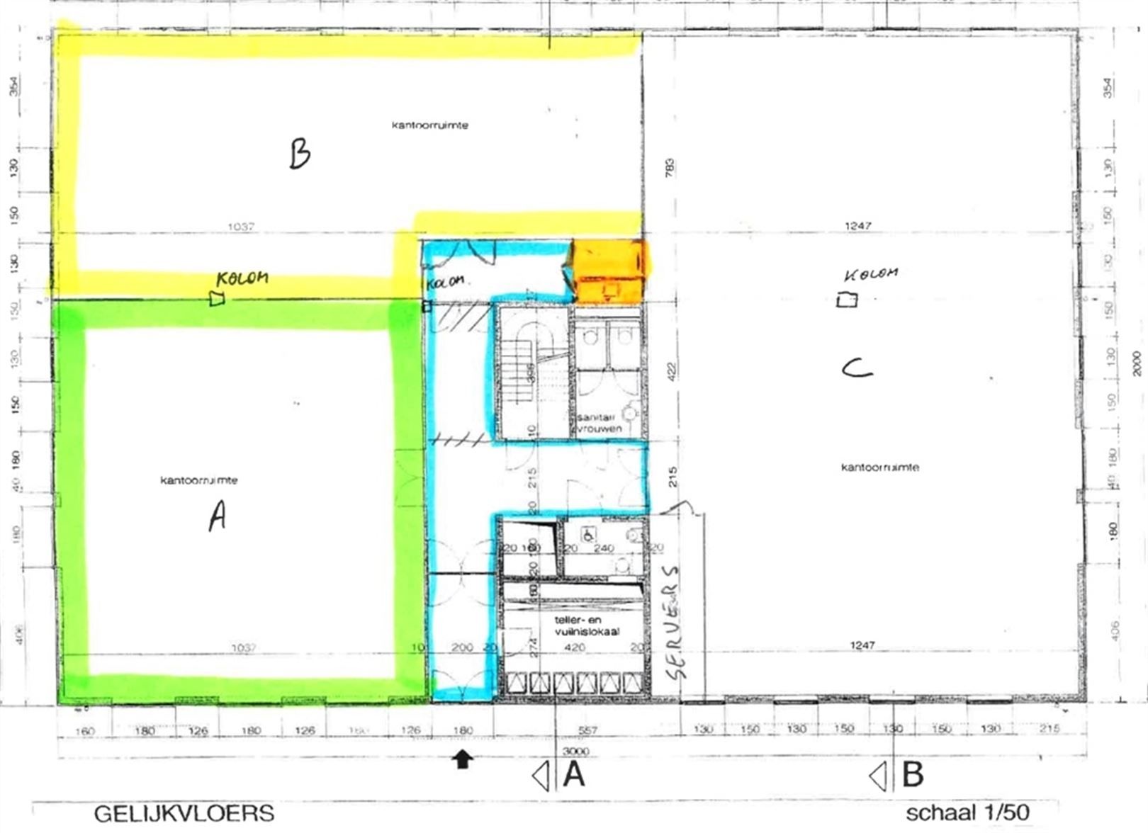
Overzicht
- 151 m² bewoonbaar
Beschrijving
Instapklare kantoren op het gelijkvloers langs de Kortrijksesteenweg te Sint-Martens-Latem.
De burelen zijn lichtrijk en voorzien van alle moderne comfort.
De unit van 151 m² bestaat uit een open space, meeting room, kitchenette, gemeenschappelijk sanitair en douche.
Het kantoor van 257 m² is als volgt ingedeeld: open space, 2 aparte burelen, een meetingroom en een kitchenette.
Zeer goed gelegen langs de invalsweg naar Gent en nabij op-en aftrit E40 (Flanders Expo), E17 en R4.
Makkelijk bereikbaar met het openbaar vervoer, bushalte op 100m.
Vooraan het gebouw zijn er parkeerplaatsen beschikbaar aan €750/parking/jaar, alsook de mogelijkheid tot straatparkeren op de Kortrijksesteenweg.
Elektrische laadvoorzieningen aanwezig op het terrein.
Publiciteit mogelijk op totem.
De maandelijkse provisie van de gemeenschappelijke lasten voor het kantoor van 151 m² bedraagt 615,00 EUR excl. BTW, voor het kantoor van 257 m² is dit 1.300,00 EUR excl. BTW.
Betreft :
- Nutsvoorzieningen (water, gas elektriciteit) van de burelen en gemeenschappelijke delen
- Cleaning gemeenschappelijke delen (gangen, inkom, …)
- Ramen buiten van de burelen en gemeenschappelijke delen
- Ophaling afval
- Verzekering
- Onderhoud gemeenschappelijke delen ( tuin, parking)
- Keuring en telefoonlijn lift
- Onderhoud airco
- Toegangscontrole , badges
De onroerende voorheffing bedroeg voor 2025 868,69 EUR voor het kantoor van 151 m² en 1.363,86 EUR voor het kantoor van 257 m².
Energie
- E-peil: E0
- Beglazing: Onbekend
Op de kaart

Financieel
| Prijs | |
|---|---|
| Maandelijkse kosten | € 0 |
| Kadastraal inkomen (niet geïndexeerd) | € 0 |
| Kadastraal inkomen (geïndexeerd) | € 0 |
Bijkomende info
Gebouw
| Bouwcertificaat | Nee |
|---|---|
| Bewoonbaar (m²) | 151 |
| Verdieping | 0 |
| Badkamers | 0 |
| Slaapkamers | 0 |
| Verdiepingen | 0 |
| Garages | 0 |
| Parkeerplaatsen | 0 |
| Doucheruimtes | 0 |
| Toiletten | 0 |
Faciliteiten
| Elektrisch keuringsattest | Nee |
|---|
Perceel
| Overstromingsgevoelig | Geen |
|---|---|
| P-score | B |
| G-score | A |
| Voorkeurrecht | Ja |
| Bebouwde oppervlakte (m²) | 0 |
| Tuin oppervlakte (m²) | 0 |
| Oppervlakte terras (m²) | 0 |
Vergunning
| Vergunning | Geen beschikbaar |
|---|---|
| Verkavelingsvergunning | Geen beschikbaar |
Uitrusting
| Investeringspand | Nee |
|---|---|
| Geschikt voor praktijk | Nee |
| Parking | Nee |
| Garage | Nee |
| Thuiskantoor | Nee |
| Kelder | Nee |
| Zolder | Nee |
| Tuin | Nee |
| Terras | Nee |
| Lift | Nee |
| Rioolaansluiting | Nee |
| Gasaansluiting | Nee |
| Wateraansluiting | Nee |
| Elektriciteitsaansluiting | Nee |
| TV aansluiting | Nee |
| Internetaansluiting | Nee |
| Telefoonaansluiting | Nee |
Appartementsblok
| Lift | Nee |
|---|