KMO-unit van 207m² in bedrijventerrein De Melkerij in Evergem-Sleidinge
€ 1.045
Een pand van Verdegem Vastgoed
Jouw zoektocht
Overzicht
Beschrijving
Locatie
De Melkerij, een innovatief en energiezuinig vernieuwbouw bedrijventerrein, een verwijzing naar het rijke zuivelverleden van de site.
Uitstekende bereikbaarheid nabij N9.
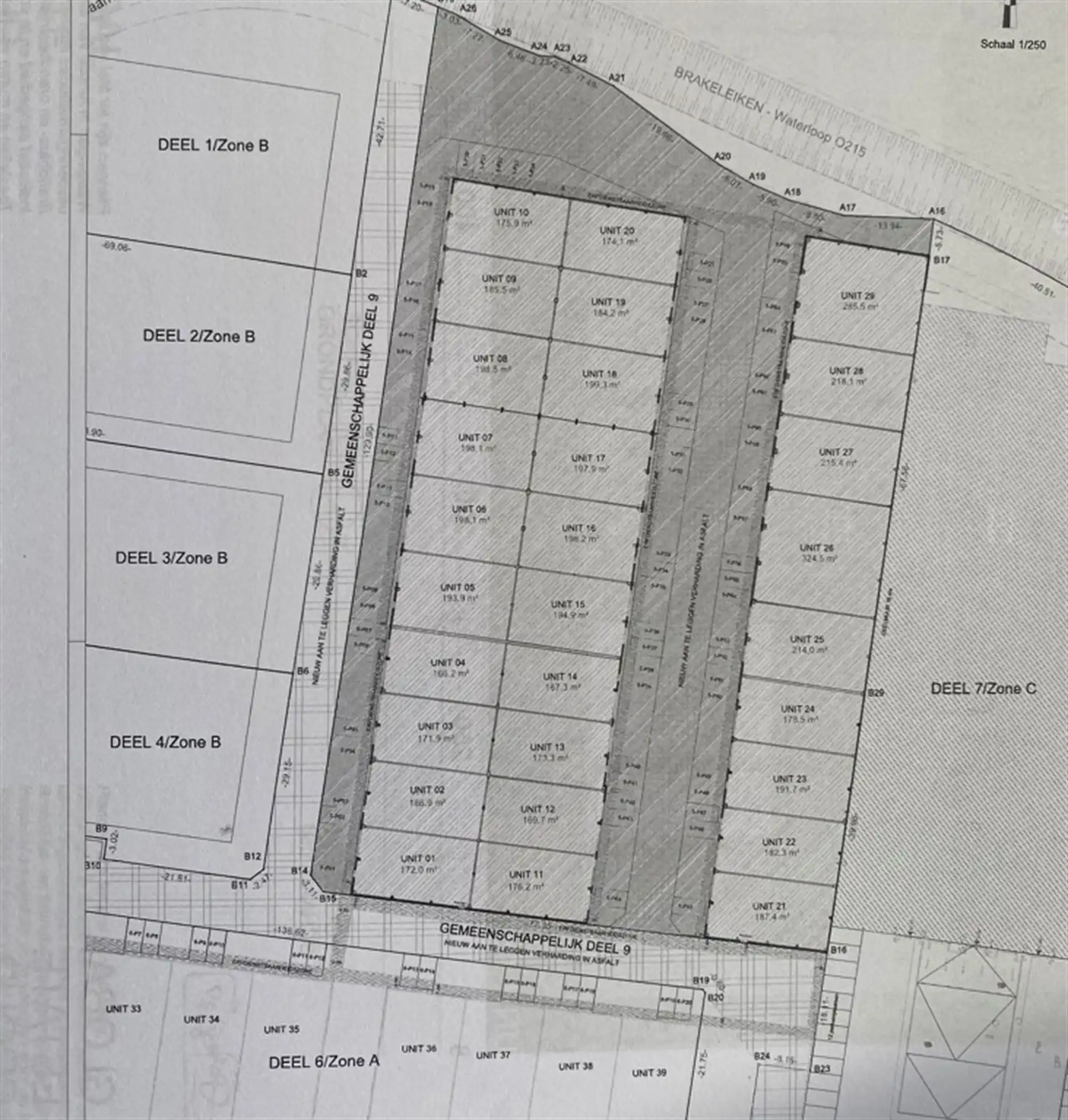
KMO-unit van 207m²
/ casco oplevering, incl. toilet en lavabo
/ ledverlichting, poly-betonvloer, steeldeck, alu raamwerk, RWA-verluchter
/ vrije hoogte: 4,30
/ sectionale poort van 4x4,2 m met codeklavier en aparte deur
/ zonnepanelen + regenwaterput 5000l + septische put
/ frame voor buitenreclame
/ 2 parkeerplaatsen
/ elektriciteit: 3 fase
/ 2 publieke laadpalen op de site
/ inrichting bespreekbaar
Beschikbaar vanaf: 01/06/2026
De huurprijs is 1045 euro (excl. BTW), de eigenaar draagt de lasten van het KI en de syndic
Indien u graag een afspraak wenst voor een bezoek, gelieve contact op te nemen via joy@verdegemvastgoed.be ofwel via 09258 11 44
Energie
- E-peil: E0
- Beglazing: Standaard dubbel
Op de kaart

Financieel
| Prijs | |
|---|---|
| Maandelijkse kosten | € 0 |
| Kadastraal inkomen (niet geïndexeerd) | € 0 |
| Kadastraal inkomen (geïndexeerd) | € 0 |
Bijkomende info
Gebouw
| Bouwjaar | 2024 |
|---|---|
| Bouwcertificaat | Nee |
| Verdieping | 0 |
| Badkamers | 0 |
| Slaapkamers | 0 |
| Verdiepingen | 0 |
| Garages | 0 |
| Parkeerplaatsen | 0 |
| Doucheruimtes | 0 |
| Toiletten | 0 |
Faciliteiten
| Materiaal ramenomlijstingen | Aluminium |
|---|---|
| Beglazing | Standaard dubbel |
| Elektrisch keuringsattest | Nee |
Perceel
| Overstromingsgevoelig | Geen |
|---|---|
| Voorkeurrecht | Nee |
| Bebouwde oppervlakte (m²) | 207 |
| Tuin oppervlakte (m²) | 0 |
| Oppervlakte terras (m²) | 0 |
Uitrusting
| Investeringspand | Nee |
|---|---|
| Geschikt voor praktijk | Nee |
| Parking | Nee |
| Garage | Nee |
| Thuiskantoor | Nee |
| Kelder | Nee |
| Zolder | Nee |
| Tuin | Nee |
| Terras | Nee |
| Lift | Nee |
| Rioolaansluiting | Nee |
| Gasaansluiting | Nee |
| Wateraansluiting | Nee |
| Elektriciteitsaansluiting | Nee |
| TV aansluiting | Nee |
| Internetaansluiting | Nee |
| Telefoonaansluiting | Nee |
Appartementsblok
| Lift | Nee |
|---|