> Te koop > Nieuwbouw residentie van halfvrijstaande villa's in Los Balcones

Nieuwbouw residentie van halfvrijstaande villa's in Los Balcones

€ 277.000

03182 Torrevieja

Een pand van Immo Colpin

Volledige aanbod

Overzicht


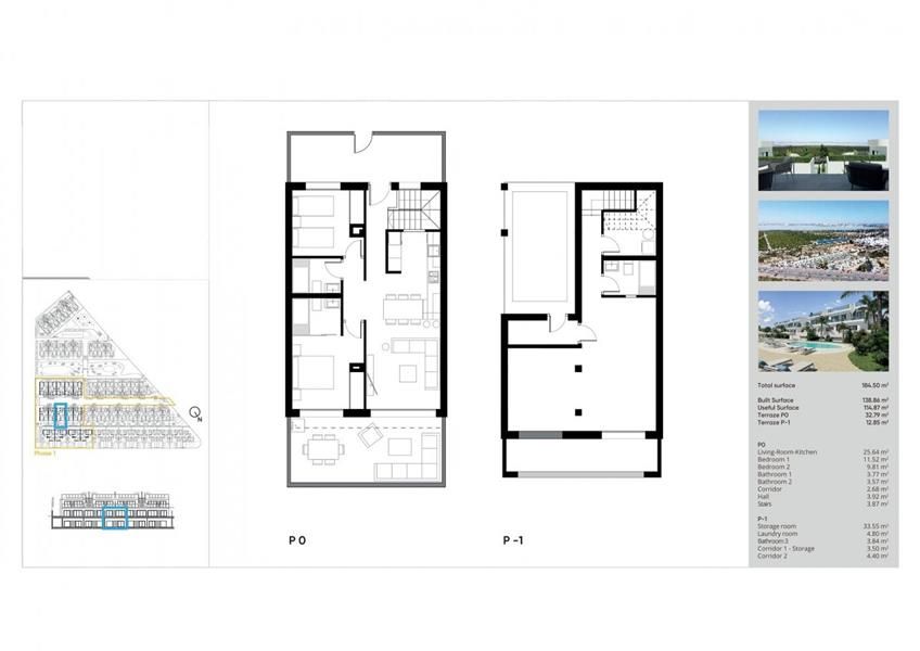
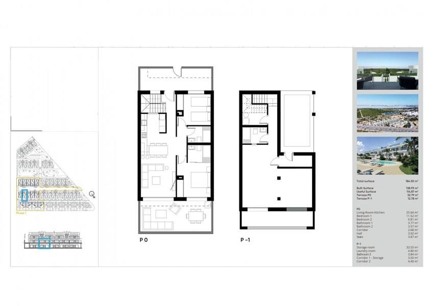
  • 75 m² bewoonbaar
  • 2 Slaapkamer(s)
  • 2 Badkamer(s)

Beschrijving


NIEUWBOUW WOONCOMPLEX IN LOS BALCONES, TORREVIEJA Nieuwbouw residentieel complex van halfvrijstaande
Nieuwbouw residentieel complex van halfvrijstaande villa's en bungalows gelegen in Los Balcones met het uitzicht op het roze meer. Nieuwbouw bungalows op de bovenste verdieping heeft 2 slaapkamers, 2 badkamers, open keuken met ruime woonkamer, inbouwkasten, terras, privé solarium en ondergrondse parkeerplaats. Nieuwe exclusieve residentie met grote gemeenschappelijke ruimtes; tuinen, tuin-gym, speeltuin, 2 grote gemeenschappelijke zwembaden - een van hen voor volwassenen, en de andere voor kinderen. Los Balcones is een kleine stad gelegen nabij Torrevieja zuid. Torrevieja is een Spaanse stad in de provincie Alicante, aan de Costa Blanca. Het staat bekend om zijn typisch mediterrane klimaat en kustlijn. Het heeft promenades met resorts langs de zandstranden. Het kleine Museum van de Zee en het Zout herbergt tentoonstellingen over de visserij- en zoutgeschiedenis van de stad. In het binnenland heeft het natuurpark Lagunas de La Mata-Torrevieja paden en twee zoute lagunes, een roze en de andere groen. De luchthaven van Alicante ligt op 40 minuten afstand en die van Murcia op ongeveer 1 uur.

Energie


  • E-peil: E0
  • Beglazing: Onbekend

Financieel


Prijs € 277.000

Bijkomende info


Gebouw
Bouwjaar 2023
Bewoonbaar (m²) 75
Verdieping 0
Badkamers 2
Slaapkamers 2
Verdiepingen 0
Garages 0
Parkeerplaatsen 0
Toiletten 0
Faciliteiten
Septische tank Nee
Perceel
P-score A
G-score A
Bebouwde oppervlakte (m²) 65
Oppervlakte terras (m²) 18
Vergunning
Verkavelingsvergunning Geen beschikbaar
Uitrusting
Investeringspand Nee
Parking Nee
Garage Nee
Opslagruimte Ja
Terras Ja
Lift Nee
Rioolaansluiting Nee
Gasaansluiting Nee
Wateraansluiting Nee
Elektriciteitsaansluiting Nee
Internetaansluiting Nee
Telefoonaansluiting Nee
Zonnepanelen Nee
Zonneboiler Ja
Alarm Nee
Videofoon Ja
Grondwaterput Nee

Een pand van


Immo Colpin
Logo van makelaar: Immo Colpin
Immo Colpin, meer dan 30 jaar ervaring in vastgoed in Knokke-Heist!
Immo Colpin biedt exclusieve kwaliteit én pure klasse aan met prestigieuze projecten en panden in Knokke-Heist en omgeving. Persoonlijk contact, service en vertrouwen staan bij Immo Colpin voorop.
Logo van makelaar: Immo Colpin
N6848
Nieuwbouw residentie van halfvrijstaande villa's in Los Balcones foto {{pictureIndex}}

Nieuwbouw residentie van halfvrijstaande villa's in Los Balcones

€ 277.000

03182 Torrevieja

Bezoek het pand

Vul jouw contactgegevens hieronder in en de makelaar contacteert je.

Leer meer over vastgoed

24 November 2025
Uitgezocht voor jouw gemeente: Hoeveel stijgt de waarde van je woning door een renovatie?
22 October 2025
Hoeveel kan ik lenen om een huis te kopen?
11 June 2025
Huis kopen met bouwovertreding? Dit moet je weten
11 May 2025
Renoveren? Vraag je Mijn VerbouwPremie aan