Nieuwbouw villa's in Finestrat
€ 760.000
03509 Finestrat
Een pand van Immo Colpin
Overzicht
- 198 m² bewoonbaar
- 564 m² grond
- 3 Slaapkamer(s)
- 3 Badkamer(s)
Beschrijving
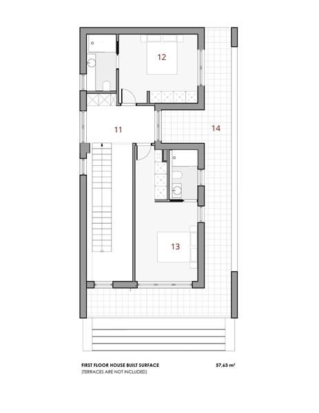
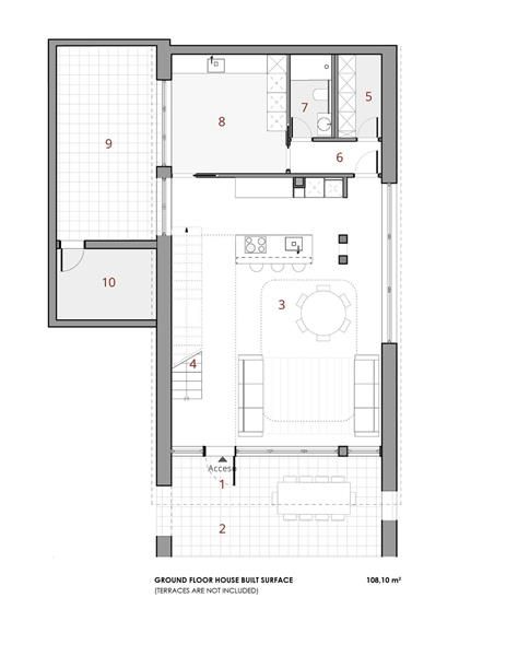
NIEUWBOUW VILLA'S IN FINESTRAT Nieuwbouw Moderne villa's in Finestrat. Villa's met 3 slaapkamers en
Moderne villa's in Finestrat. Villa's met 3 slaapkamers en 3 badkamers, open keuken met zithoek, terras met prachtig uitzicht over Benidorm, privétuin met zwembad en parkeerplaats.
Het is ontworpen als een volledig beloopbare ruimte met binnen- en buitenpaden die onafhankelijke toegang bieden tot elke verdieping. Dit ontwerp biedt verschillende perspectieven op het architectonische complex en de omgeving, met de zee en Sierra Cortina als schilderachtige achtergrond.
De hoofdingang van de villa ligt aan de onderkant van het perceel, met voldoende parkeergelegenheid voor twee voertuigen. Een waterpartij met loungestoelen leidt je naar de begane grond, die wordt gekenmerkt door brede muren versierd met metselwerk. Vanuit de woonkamer loopt een terras naadloos door, mogelijk gemaakt door een groot openslaand raam. Houten luiken op gemetselde muren zorgen voor een gedeeltelijk overdekte buitenruimte voor extra comfort. Het zwembad, met aquamarijne tinten en een bekleding van gresiet, grenst aan een bestrating van antislip porseleinen tegels met een houtachtig uiterlijk. Deze ruimte bevat ook een barbecueplaats die kan worden aangepast aan de behoeften van de gebruiker, met toegang vanaf een verharde zone door het natuurlijke terrein.
Finestrat ligt in de regio Marina Baixa aan de Costa Blanca, vlakbij het naburige Benidorm en op ongeveer 40 kilometer van de stad Alicante en de internationale luchthaven. Het dorp ligt op de berghelling van Puig Campana en biedt prachtig uitzicht op de bergen, de kust en de Middellandse Zee. Benidorm ligt op slechts vijf minuten rijden van de woningen en biedt alle voorzieningen die je nodig hebt, zoals winkels, bars, restaurants, supermarkten, banken, apotheken en verschillende internationale privéscholen.
Het is ontworpen als een volledig beloopbare ruimte met binnen- en buitenpaden die onafhankelijke toegang bieden tot elke verdieping. Dit ontwerp biedt verschillende perspectieven op het architectonische complex en de omgeving, met de zee en Sierra Cortina als schilderachtige achtergrond.
De hoofdingang van de villa ligt aan de onderkant van het perceel, met voldoende parkeergelegenheid voor twee voertuigen. Een waterpartij met loungestoelen leidt je naar de begane grond, die wordt gekenmerkt door brede muren versierd met metselwerk. Vanuit de woonkamer loopt een terras naadloos door, mogelijk gemaakt door een groot openslaand raam. Houten luiken op gemetselde muren zorgen voor een gedeeltelijk overdekte buitenruimte voor extra comfort. Het zwembad, met aquamarijne tinten en een bekleding van gresiet, grenst aan een bestrating van antislip porseleinen tegels met een houtachtig uiterlijk. Deze ruimte bevat ook een barbecueplaats die kan worden aangepast aan de behoeften van de gebruiker, met toegang vanaf een verharde zone door het natuurlijke terrein.
Finestrat ligt in de regio Marina Baixa aan de Costa Blanca, vlakbij het naburige Benidorm en op ongeveer 40 kilometer van de stad Alicante en de internationale luchthaven. Het dorp ligt op de berghelling van Puig Campana en biedt prachtig uitzicht op de bergen, de kust en de Middellandse Zee. Benidorm ligt op slechts vijf minuten rijden van de woningen en biedt alle voorzieningen die je nodig hebt, zoals winkels, bars, restaurants, supermarkten, banken, apotheken en verschillende internationale privéscholen.
Energie
- E-peil: E0
- Beglazing: Onbekend
Financieel
| Prijs |
|---|
Bijkomende info
Gebouw
| Bouwjaar | 2024 |
|---|---|
| Bewoonbaar (m²) | 198 |
| Verdieping | 0 |
| Badkamers | 3 |
| Slaapkamers | 3 |
| Verdiepingen | 0 |
| Garages | 0 |
| Parkeerplaatsen | 0 |
| Toiletten | 0 |
Faciliteiten
| Septische tank | Nee |
|---|
Perceel
| P-score | A |
|---|---|
| G-score | A |
| Totale oppervlakte (m²) | 564 |
| Bebouwde oppervlakte (m²) | 138 |
| Oppervlakte terras (m²) | 0 |
Vergunning
| Verkavelingsvergunning | Geen beschikbaar |
|---|
Uitrusting
| Investeringspand | Nee |
|---|---|
| Parking | Nee |
| Garage | Nee |
| Opslagruimte | Ja |
| Terras | Ja |
| Lift | Nee |
| Rioolaansluiting | Nee |
| Gasaansluiting | Nee |
| Wateraansluiting | Ja |
| Elektriciteitsaansluiting | Ja |
| Internetaansluiting | Nee |
| Telefoonaansluiting | Nee |
| Zonnepanelen | Nee |
| Zonneboiler | Ja |
| Alarm | Nee |
| Videofoon | Ja |
| Grondwaterput | Nee |
Een pand van
Immo Colpin
Immo Colpin, meer dan 30 jaar ervaring in vastgoed in Knokke-Heist!
Immo Colpin biedt exclusieve kwaliteit én pure klasse aan met prestigieuze projecten en panden in Knokke-Heist en omgeving. Persoonlijk contact, service en vertrouwen staan bij Immo Colpin voorop.
N7628
Leer meer over vastgoed
24 November 2025
Uitgezocht voor jouw gemeente: Hoeveel stijgt de waarde van je woning door een renovatie?
22 October 2025
Hoeveel kan ik lenen om een huis te kopen?
11 June 2025
Huis kopen met bouwovertreding? Dit moet je weten
11 May 2025