Unieke opbrengsteigendom te 1000 Brussel, op TOP-locatie.
 € 2.400.000  
Een pand van Altro Vastgoed Brugge
Overzicht
- 680 m² bewoonbaar
 - 230 m² grond
 - 10 Slaapkamer(s)
 - 9 Badkamer(s)
 - 2 Garage(s)
 
Beschrijving
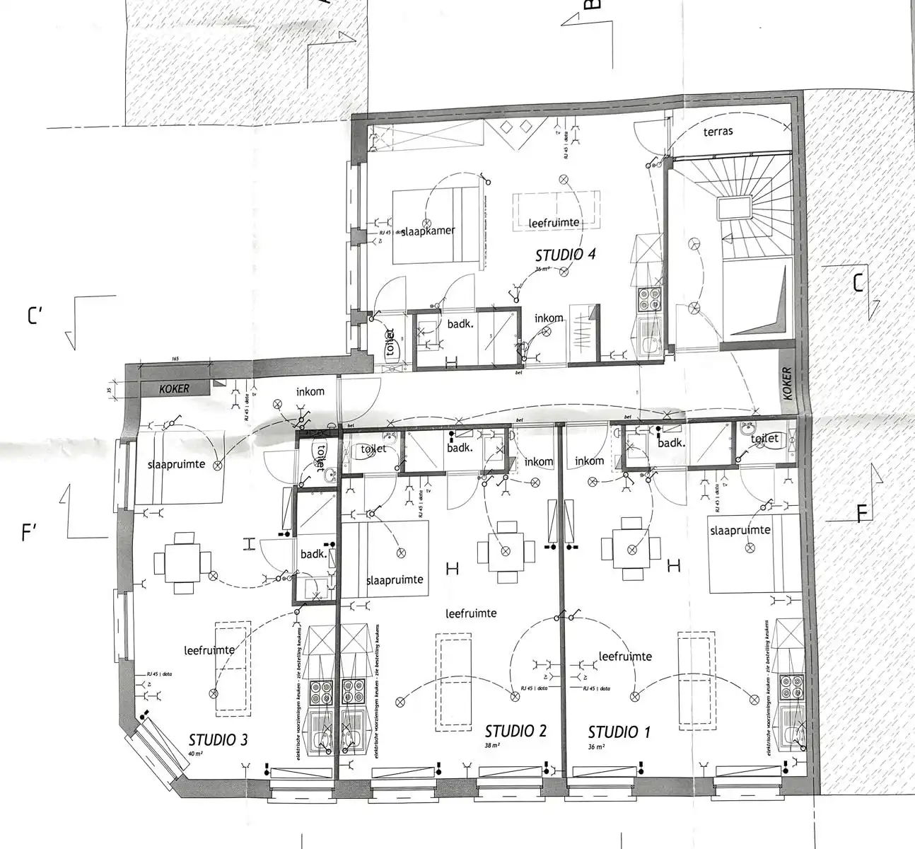
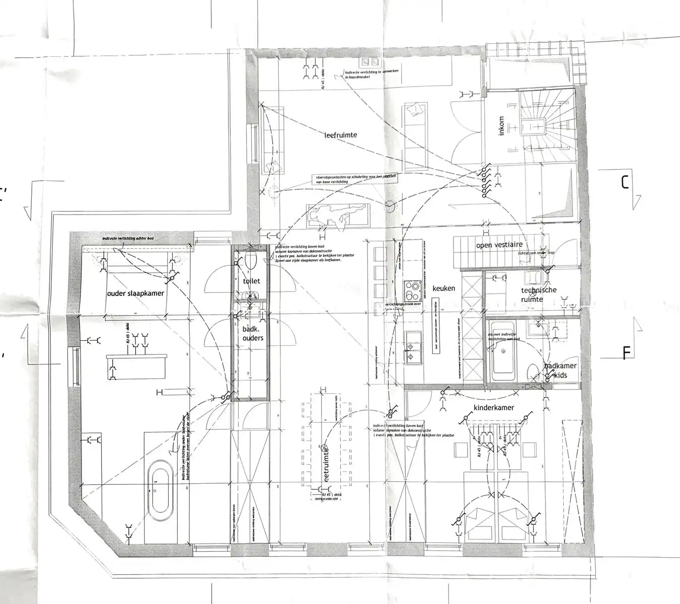
Unieke opbrengsteigendom te 1000 Brussel op TOP-locatie, op 15' wandelen van de Grote Markt. Dit gebouw werd in 2010 volledig gerenoveerd en is vergund als opbrengsteigendom. De centrale inkomdeur (met sleutelvrije toegang) geeft toegang tot de centrale inkomhal. Op het gelijkvloers is deze eigendom voorzien van kantoorruimtes met annex keuken en badkamer alsook 2 garages. Het gebouw is volledig onderkelderd en voorzien van wasmachines met muntsysteem voor de verhuurde entiteiten. De 1e en 2de verdieping bestaan elk uit 4 studio's (volledig bemeubeld én verhuurd). De bovenste verdieping bestaat uit een luxueuze penthouse (tevens verhuurd), voorzien van 2 slaapkamers, volledig uitgeruste keuken, badkamer, ingemaakte kasten, dakterras etc., alles zeer hoogwaardig afgewerkt. Tevens is dit gebouw voorzien van zonnepanelen én een computergestuurd verwarmingssysteem. Heeft u interesse in deze bijzondere eigendom ? Aarzel niet om vandaag uw bezoek vast te leggen en contacteer Katrien via 0477 46 53 11 (7/7) of katrien@altro-vastgoed.be.
Unieke opbrengsteigendom te 1000 Brussel op TOP-locatie, op 15' wandelen van de Grote Markt. Dit gebouw werd in 2010 volledig gerenoveerd en is vergund als opbrengsteigendom. De centrale inkomdeur (met sleutelvrije toegang) geeft toegang tot de centrale inkomhal. Op het gelijkvloers is deze eigendom voorzien van kantoorruimtes met annex keuken en badkamer alsook 2 garages. Het gebouw is volledig onderkelderd en voorzien van wasmachines met muntsysteem voor de verhuurde entiteiten. De 1e en 2de verdieping bestaan elk uit 4 studio's (volledig bemeubeld én verhuurd). De bovenste verdieping bestaat uit een luxueuze penthouse (tevens verhuurd), voorzien van 2 slaapkamers, volledig uitgeruste keuken, badkamer, ingemaakte kasten, dakterras etc., alles zeer hoogwaardig afgewerkt. Tevens is dit gebouw voorzien van zonnepanelen én een computergestuurd verwarmingssysteem. Heeft u interesse in deze bijzondere eigendom ? Aarzel niet om vandaag uw bezoek vast te leggen en contacteer Katrien via 0477 46 53 11 (7/7) of katrien@altro-vastgoed.be.
Energie
![]()  | 
- EPC Certificaat: 20200522-0000568447-01-4
 - Energieverbruik: 144 kWh/m²/jaar
 
Op de kaart

Downloads
- odemattesten.pdf (pdf)
 - rtificat PEB nr 53.pdf (pdf)
 - kadastraal plan 53.pdf (pdf)
 - keuring electriciteit 53.pdf (pdf)
 - stedebouwkundige inlichtingen 53.pdf (pdf)
 - odemattesten.pdf (pdf)
 - rtificat PEB nr 53.pdf (pdf)
 - kadastraal plan 53.pdf (pdf)
 - keuring electriciteit 53.pdf (pdf)
 - stedebouwkundige inlichtingen 53.pdf (pdf)
 
Financieel
| Prijs | 
|---|
Berekening kosten
Je aankoopkosten? Die heb je snel berekent via de knop hieronder.
Bijkomende info
Gebouw
| Bouwjaar | 2010 | 
|---|---|
| Staat | Zo goed als nieuw | 
| Bewoonbaar (m²) | 680 | 
| Gevels | 3 | 
| Badkamers | 9 | 
| Slaapkamers | 10 | 
| Garages | 2 | 
| Parkeerplaatsen | 4 | 
Faciliteiten
| Type vloer | |
|---|---|
| Elektrisch keuringsattest | Ja | 
Perceel
| Voorkeurrecht | Nee | 
|---|---|
| Totale oppervlakte (m²) | 230 | 
| Tuin oppervlakte (m²) | 0 | 
Vergunning
| Vergunning | Vergunning beschikbaar | 
|---|---|
| Verkavelingsvergunning | Geen beschikbaar | 
| Bouwovertreding | Geen | 
| Bouwovertreding dagvaardiging | Geen | 
Uitrusting
| Parking | Ja | 
|---|---|
| Garage | Ja | 
| Thuiskantoor | Ja | 
| Kelder | Ja | 
| Zolder | Nee | 
| Tuin | Nee | 
| Terras | Ja | 
| Lift | Ja | 
| Zonnepanelen | Ja | 
| Videofoon | Ja | 
Een pand van
Altro Vastgoed Brugge
 Wij verkopen uw vastgoed, anders én beter! 
 Bij Altro Vastgoed vinden we een persoonlijke aanpak erg belangrijk, hierbij stellen we de klant steeds centraal en staan we hem/haar bij in het complexe proces van verkopen, aankopen, verhuren en huren van vastgoed. We beschikken over een kwalitatief kantorennetwerk in Vlaanderen en Brussel met een sterke, lokale verankering. 
 5420985 
Leer meer over vastgoed
 Nieuw 
 22 October 2025 
Hoeveel kan ik lenen om een huis te kopen?
 11 June 2025 
Huis kopen met bouwovertreding? Dit moet je weten
 11 May 2025 
Renoveren? Vraag je Mijn VerbouwPremie aan
 22 April 2025 
