> Te koop > SINT-JANS-MOLENBEEK > Appartement > Charmant 1-slaapkamerappartement met terras met mogelijkheid aankoop van garage
Virtual tour

Charmant 1-slaapkamerappartement met terras met mogelijkheid aankoop van garage

Ontdek de virtuele tour

Een pand van Immo BPC

Volledige aanbod

Overzicht


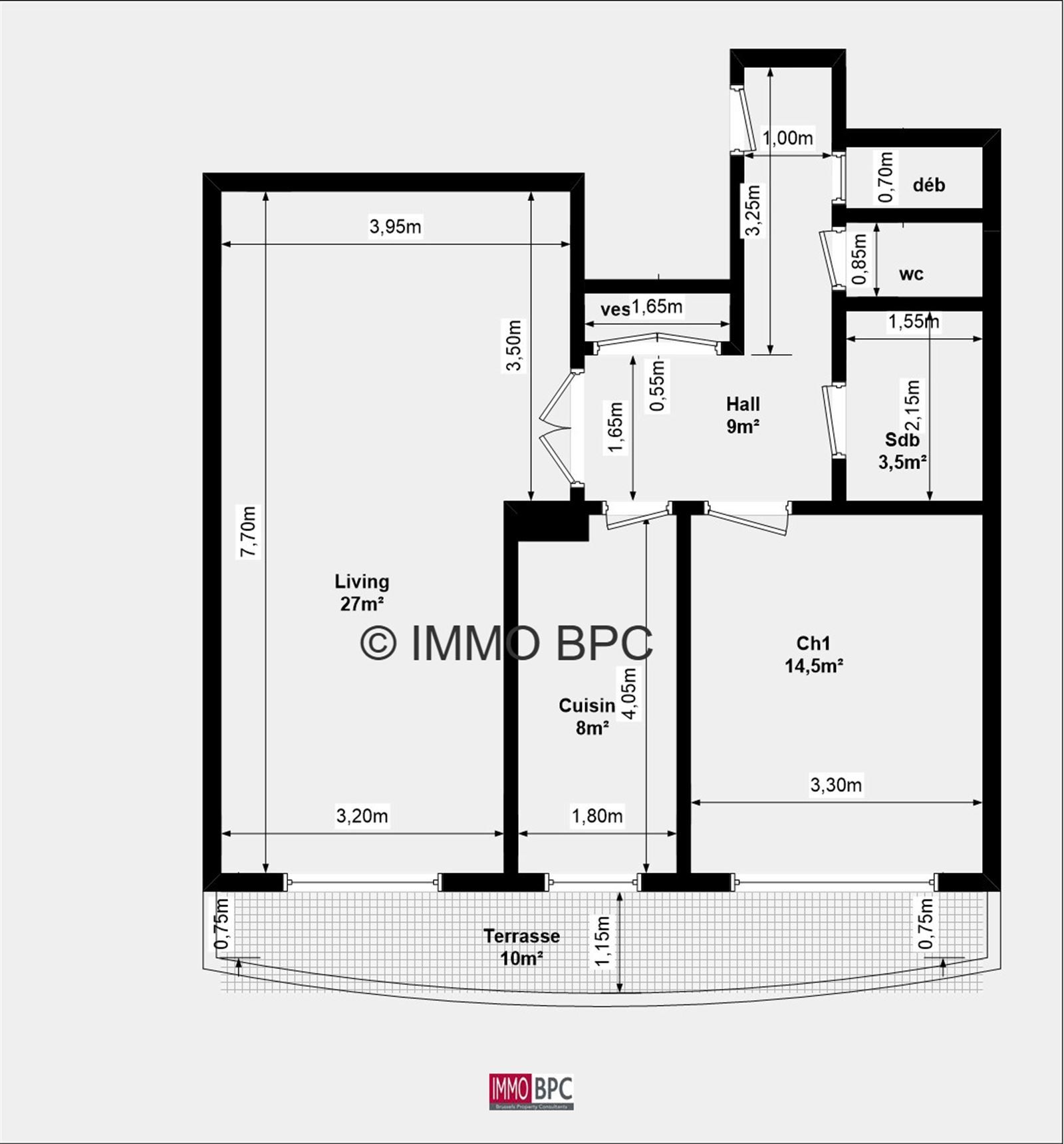
  • 73 m² bewoonbaar
  • 1 Slaapkamer(s)
  • 1 Badkamer(s)
  • 1 Toilet(ten)
  • 1 Garage(s)

Beschrijving


Ontdek dit charmante en lichtrijke éénslaapkamerappartement met een bewoonbare oppervlakte van 73 m². Het appartement combineert comfort met functionaliteit en biedt een aangename leefomgeving.Bij het binnenkomen word je verwelkomd in een ruime inkomhal met vestiaire, die toegang geeft tot alle vertrekken. De lichte woonkamer geniet van grote ramen die voor overvloedig daglicht zorgen en directe toegang bieden tot een zuidgericht terras – ideaal om in alle rust te ontspannen.De aparte keuken (8 m²) is volledig uitgerust, beschikt over veel opbergruimte en biedt voldoende plaats voor een gezellig ontbijt of een snelle maaltijd.Het appartement telt een ruime slaapkamer met plaats voor een grote kast. De badkamer is voorzien van een ligbad en aansluitingen voor een wasmachine. Daarnaast is er een apart toilet en een handige berging aanwezig.Extra troef is het balkon met uitzicht op de levendige straat, én de privégarage van 17 m², een waardevolle aanvulling die het dagelijks wooncomfort verhoogt.Gelegen in een rustige buurt, met vlotte toegang tot openbaar vervoer, winkels en groene zones, vormt dit appartement de ideale keuze voor wie een comfortabele woonplek zoekt in het dynamische Sint-Jans-Molenbeek.Mis deze unieke kans niet en ontdek zelf het kwalitatieve wooncomfort dat dit appartement te bieden heeft!

 

Energie


Epc E
  • EPC Certificaat: 724746
  • Energieverbruik: 220 kWh/m²/jaar
  • E-peil: E0
  • Beglazing: Enkel

Op de kaart


map placeholder

Financieel


Prijs € 165.000
Kadastraal inkomen (niet geïndexeerd) € 1.343
Kadastraal inkomen (geïndexeerd) € 0

Berekening kosten


Je aankoopkosten? Die heb je snel berekent via de knop hieronder.

Bijkomende info


Gebouw
Bouwjaar 1970
Staat Goed onderhouden
Bouwcertificaat Nee
Bewoonbaar (m²) 73
Verdieping 2
Badkamers 1
Slaapkamers 1
Verdiepingen 8
Garages 1
Parkeerplaatsen 0
Doucheruimtes 0
Toiletten 1
Faciliteiten
Materiaal ramenomlijstingen Hout
Beglazing Enkel
Elektrisch keuringsattest Nee
Perceel
Overstromingsgevoelig Geen
Voorkeurrecht Nee
Bebouwde oppervlakte (m²) 0
Tuin oppervlakte (m²) 0
Oppervlakte terras (m²) 10
Vergunning
Vergunning Vergunning beschikbaar
Verkavelingsvergunning Vergunning beschikbaar
Uitrusting
Investeringspand Nee
Geschikt voor praktijk Nee
Parking Nee
Garage Ja
Thuiskantoor Nee
Kelder Ja
Zolder Nee
Tuin Nee
Terras Ja
Lift Ja
Rioolaansluiting Nee
Gasaansluiting Nee
Wateraansluiting Nee
Elektriciteitsaansluiting Nee
TV aansluiting Nee
Internetaansluiting Nee
Telefoonaansluiting Nee
Appartementsblok
Aantal verdiepingen 8
Lift Ja

Een pand van


Immo BPC
Logo van makelaar: Immo BPC
IMMO BPC - Brussels Property Consultants
Specialist in Schattingen ; Verkoop en Verhuur : van Woningen; opbrengsteigendommen; Appartementen en kantoren. Bij IMMOBPC ligt onze expertise vooral in het schatten en verkopen en verhuren van onroerend goed. Of u nu uw huis of appartement wilt verkopen in Ganshoren, Sint-Agatha-Berchem, Jette, Sint-Jans-Molenbeek, Koekelberg, of de randgemeentes zoals Wemmel, Dilbeek, Zellik, Asse, en Groot-Bijgaarden: wij bieden u een naadloos verkooptraject. Met uitgebreide marktkennis en een strategische marketingaanpak helpen wij u om uw eigendom snel en tegen de beste prijs te verkopen Al meer dan 25 jaar is IMMOBPC dé vertrouwde partner voor vastgoed in het noordwesten van Brussel, met een sterke focus op Ganshoren, Sint-Agatha-Berchem, Jette, Sint-Jans-Molenbeek, en Koekelberg. Wij zijn gespecialiseerd in de schatting, verkoop, verhuur, en van huizen en appartementen, opbrengsteigendommen, kantoren in deze gemeentes. Onze uitgebreide lokale kennis en jarenlange ervaring maken ons uw ideale partner voor al uw vastgoedbehoeften, inclusief de omliggende randgemeentes zoals Wemmel; Zellik, Asse, Dilbeek, Groot-Bijgaarden - Uitgebreide Marketingstrategie voor een Succesvolle Verkoop Om uw woning op de markt te brengen, maken we gebruik van een breed scala aan marketingtechnieken: •Professionele fotografie en virtuele rondleidingen om uw eigendom op zijn best te presenteren. •Doelgerichte publiciteit op toonaangevende vastgoedplatforms en sociale media om een breed publiek te bereiken. •Een gepersonaliseerd marketingplan waarmee uw eigendom snel onder de aandacht wordt gebracht bij potentiële kopers. -Een Complete Vastgoeddienstverlening Ons team begeleidt u van schatting tot verkoopakte of huurovereenkomst, met een persoonlijke en transparante aanpak. Ons kantoor op de Keizer Karellaan 114 te Ganshoren is centraal gelegen en gemakkelijk bereikbaar. Onze opvallende etalage nodigt u uit om binnen te stappen en kennis te maken met ons gedreven team.
Logo van makelaar: Immo BPC
BPC 4362 - EDMOND MACHTENSLAAN 145
Charmant 1-slaapkamerappartement met terras met mogelijkheid aankoop van garage foto {{pictureIndex}}

Charmant 1-slaapkamerappartement met terras met mogelijkheid aankoop van garage

€ 165.000

Edmond Machtenslaan 145 - 1080 SINT-JANS-MOLENBEEK

Bezoek het pand

Vul jouw contactgegevens hieronder in en de makelaar contacteert je.

Leer meer over vastgoed

11 June 2025
Huis kopen met bouwovertreding? Dit moet je weten
11 May 2025
Renoveren? Vraag je Mijn VerbouwPremie aan
22 April 2025
Je allereerste renovatieproject selecteren én budgetteren: met de praktische hulp van Spotto
17 February 2025
Levenslang wonen: slaapkamer inrichten voor nieuwe invulling