Karaktervolle woning met garage.
Een pand van Immo BPC
Overzicht
- 125 m² grond
- 3 Slaapkamer(s)
- 1 Badkamer(s)
- 2 Toilet(ten)
- 1 Garage(s)
Beschrijving
Ontdek de charme en mogelijkheden van deze te renoveren woning in het hart van Berchem-Sainte-Agathe. Dit karaktervolle pand combineert ruimte en elegantie dankzij authentieke architecturale details en een rijke geschiedenis. Met een perceeloppervlakte van 125 m², drie ruime slaapkamers en een badkamer, is dit de ideale gezinswoning.
Bij binnenkomst betreedt u een royale en uitnodigende hal die leidt naar de lichte leefruimtes. De open indeling zorgt voor een vlotte overgang tussen de woon- en eetkamer, waarbij klassieke elementen zoals sierlijke kroonluchters en originele schouwen elke ruimte een unieke uitstraling geven.
De keuken grenst aan een knusse eetruimte, ideaal voor gezellige maaltijden. De woning beschikt over drie ruime slaapkamers met veel natuurlijk licht en charmante details. De badkamer is functioneel ingericht.
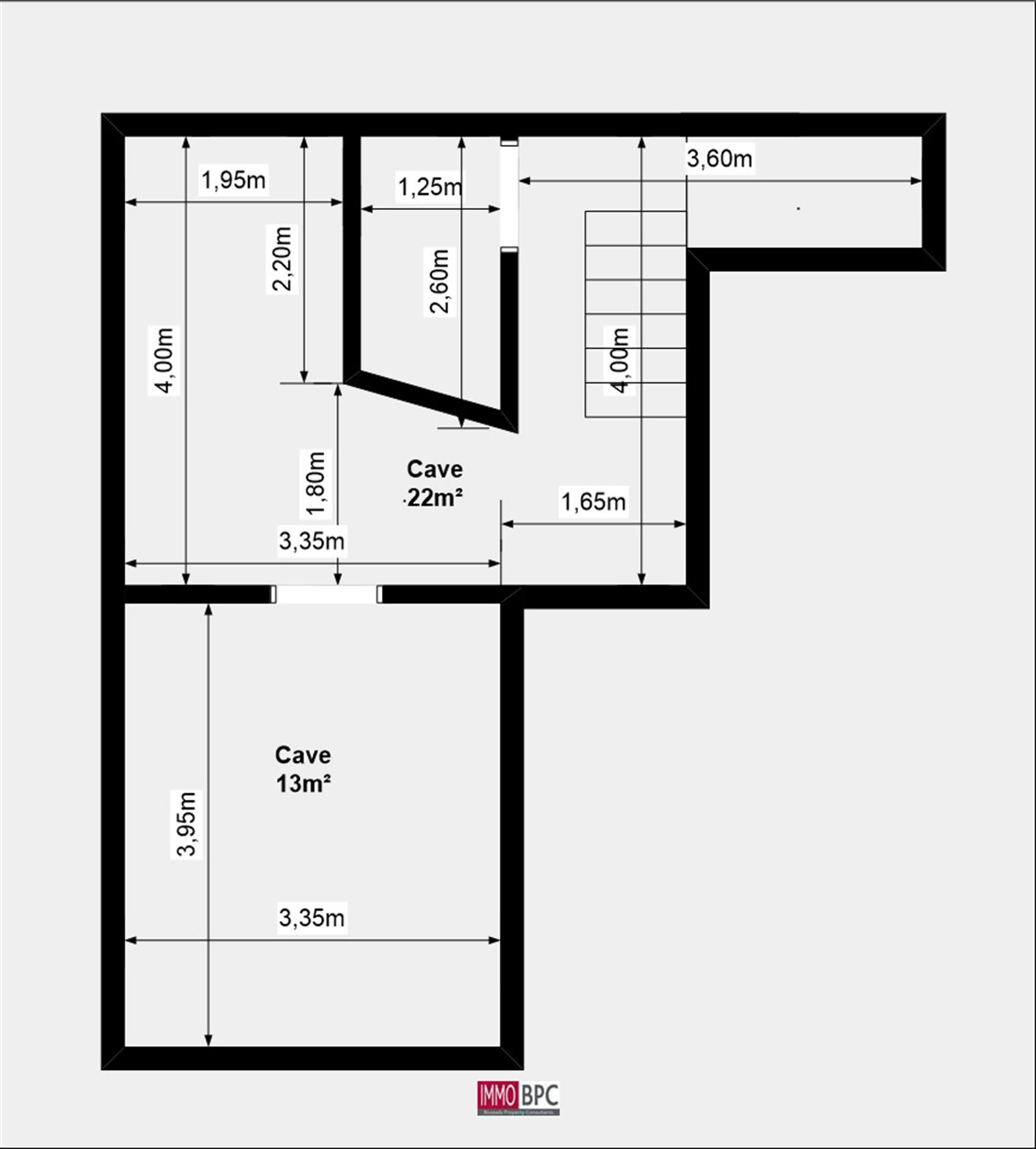
Extra troeven van deze woning zijn de ruime kelders, een garage en een zolderruimte die nog verder kan worden ingericht naar wens. Bovendien beschikt de woning over een aangename koer van 20 m².
Grijp deze unieke kans en ontdek het potentieel van deze woning waar klassieke elegantie en moderne mogelijkheden samenkomen!
Energie
![]() |
- EPC Certificaat: 710898
- Energieverbruik: 993 kWh/m²/jaar
- E-peil: E0
- Verwarming: Gas
- Beglazing: Standaard dubbel
Op de kaart

Financieel
| Prijs | |
|---|---|
| Kadastraal inkomen (niet geïndexeerd) | € 1.249 |
| Kadastraal inkomen (geïndexeerd) | € 0 |
Berekening kosten
Je aankoopkosten? Die heb je snel berekent via de knop hieronder.
Bijkomende info
Gebouw
| Bouwjaar | 1933 |
|---|---|
| Staat | Op te frissen |
| Bouwcertificaat | Nee |
| Verdieping | 0 |
| Badkamers | 1 |
| Slaapkamers | 3 |
| Verdiepingen | 0 |
| Garages | 1 |
| Parkeerplaatsen | 0 |
| Doucheruimtes | 0 |
| Toiletten | 2 |
Faciliteiten
| Materiaal ramenomlijstingen | PVC |
|---|---|
| Beglazing | Standaard dubbel |
| Brandstof primaire verwarming | Gas |
| Elektrisch keuringsattest | Nee |
Perceel
| Diepte (m) | 12 |
|---|---|
| Breedte (m) | 10 |
| Overstromingsgevoelig | Geen |
| Voorkeurrecht | Nee |
| Totale oppervlakte (m²) | 125 |
| Bebouwde oppervlakte (m²) | 149 |
| Tuin oppervlakte (m²) | 0 |
| Oppervlakte terras (m²) | 20 |
Vergunning
| Vergunning | Vergunning beschikbaar |
|---|---|
| Verkavelingsvergunning | Geen beschikbaar |
Uitrusting
| Investeringspand | Nee |
|---|---|
| Geschikt voor praktijk | Nee |
| Parking | Nee |
| Garage | Ja |
| Thuiskantoor | Nee |
| Kelder | Ja |
| Zolder | Ja |
| Tuin | Nee |
| Terras | Ja |
| Lift | Nee |
| Rioolaansluiting | Ja |
| Gasaansluiting | Ja |
| Wateraansluiting | Ja |
| Elektriciteitsaansluiting | Ja |
| TV aansluiting | Ja |
| Internetaansluiting | Ja |
| Telefoonaansluiting | Ja |
