Assistentie-appartement
€ 249.000
Een pand van Immo Roelands
Jouw zoektocht
Overzicht
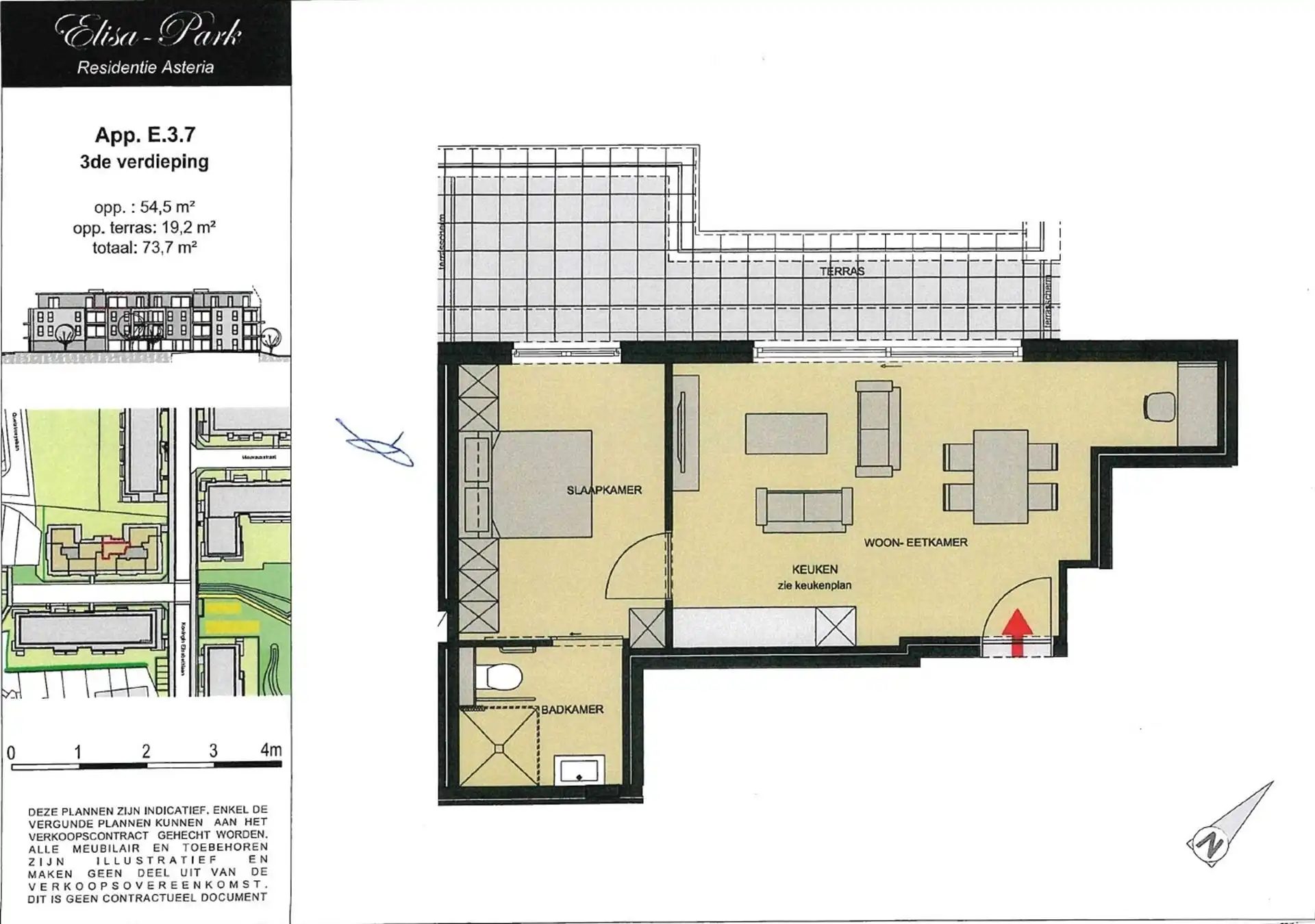
- 55 m² bewoonbaar
- 1 Slaapkamer(s)
- 1 Badkamer(s)
- 1 Toilet(ten)
Beschrijving
Penthouse in Asteria, het Elisa park.
Standingvol appartement vlakbij Halle centrum.
Indeling: vestiaire, woonkamer met prachtig zicht op het Elisa Park.
Ingerichte keuken.
Slaapkamer en badkamer met inloopdouche.
Zeer ruim terras.
Overdekte staanplaats en kelder 25.000 €
Dankzij de prachtige gemeenschappelijke ruimte op het gelijkvloers en het restaurant "Brasserie Asteria" komen de bewoners makkelijk in contact met elkaar.De woonadviseurs staan de bewoners bij voor administratieve als sociale ondersteuning en organiseren leuke activiteiten voor de bewoners.
U kan rekenen op: crisiszorg (24u/24u, 7dagen op 7), begeleiding en ondersteuning bij uw dagelijkse zorg zowel administratie, sociaal als psychologisch, , overbruggingszorg, vrije deelname aan activiteiten en evenementen. In de residentie kan u eveneens genieten van de fitness, kapper en restauratie. Ook uw wagen en fietsen kan u veilig kwijt.
Optioneel kan u eveneens beroepen op: poetshulp, (para-)medische zorgen, boodschappendienst, wassen, strijkdiensten, maaltijden, kapper, mani- en pedicure, kinesist, verpleegkundige zorgen, gezins- en bejaardenzorg, apotheekdienst,...
Vlakbij apotheek, dokter, bakker, Carrefour Express in een residentiële omgeving.
Energie
![]() |
- E-peil: E54
- Verwarming: Gas
- Beglazing: Standaard dubbel
Op de kaart

Financieel
| Prijs | |
|---|---|
| Kadastraal inkomen (niet geïndexeerd) | € 892 |
| Kadastraal inkomen (geïndexeerd) | € 0 |
Berekening kosten
Je aankoopkosten? Die heb je snel berekend via de knop hieronder.
Bijkomende info
Gebouw
| Bouwjaar | 2019 |
|---|---|
| Staat | Nieuw |
| Bouwcertificaat | Nee |
| Bewoonbaar (m²) | 55 |
| Verdieping | 3 |
| Badkamers | 1 |
| Slaapkamers | 1 |
| Verdiepingen | 3 |
| Garages | 0 |
| Parkeerplaatsen | 1 |
| Doucheruimtes | 0 |
| Toiletten | 1 |
Faciliteiten
| Keuken uitrusting | Luxueus uitgerust |
|---|---|
| Materiaal ramenomlijstingen | PVC |
| Beglazing | Standaard dubbel |
| Brandstof primaire verwarming | Gas |
| Elektrisch keuringsattest | Ja |
Perceel
| Overstromingsgevoelig | Geen |
|---|---|
| P-score | C |
| G-score | C |
| Voorkeurrecht | Nee |
| Bebouwde oppervlakte (m²) | 0 |
| Tuin oppervlakte (m²) | 0 |
| Oppervlakte terras (m²) | 19 |
Vergunning
| Vergunning | Vergunning beschikbaar |
|---|---|
| Verkavelingsvergunning | Geen beschikbaar |
Uitrusting
| Investeringspand | Nee |
|---|---|
| Geschikt voor praktijk | Nee |
| Parking | Ja |
| Garage | Nee |
| Thuiskantoor | Nee |
| Kelder | Ja |
| Zolder | Nee |
| Tuin | Nee |
| Terras | Ja |
| Lift | Ja |
| Rioolaansluiting | Ja |
| Gasaansluiting | Ja |
| Wateraansluiting | Ja |
| Elektriciteitsaansluiting | Ja |
| TV aansluiting | Ja |
| Internetaansluiting | Ja |
| Telefoonaansluiting | Ja |
Appartementsblok
| Aantal verdiepingen | 3 |
|---|---|
| Lift | Ja |
