Charmante 3-gevelwoning (8a85) met mogelijkheid tot 5 slaapkamers te Halle
€ 349.000
Een pand van Multimmo
Overzicht
- 145 m² bewoonbaar
- 885 m² grond
- 3 Slaapkamer(s)
- 1 Badkamer(s)
- 2 Toilet(ten)
- 1 Tuin
Overstromingsgevaar perceel
Beschrijving
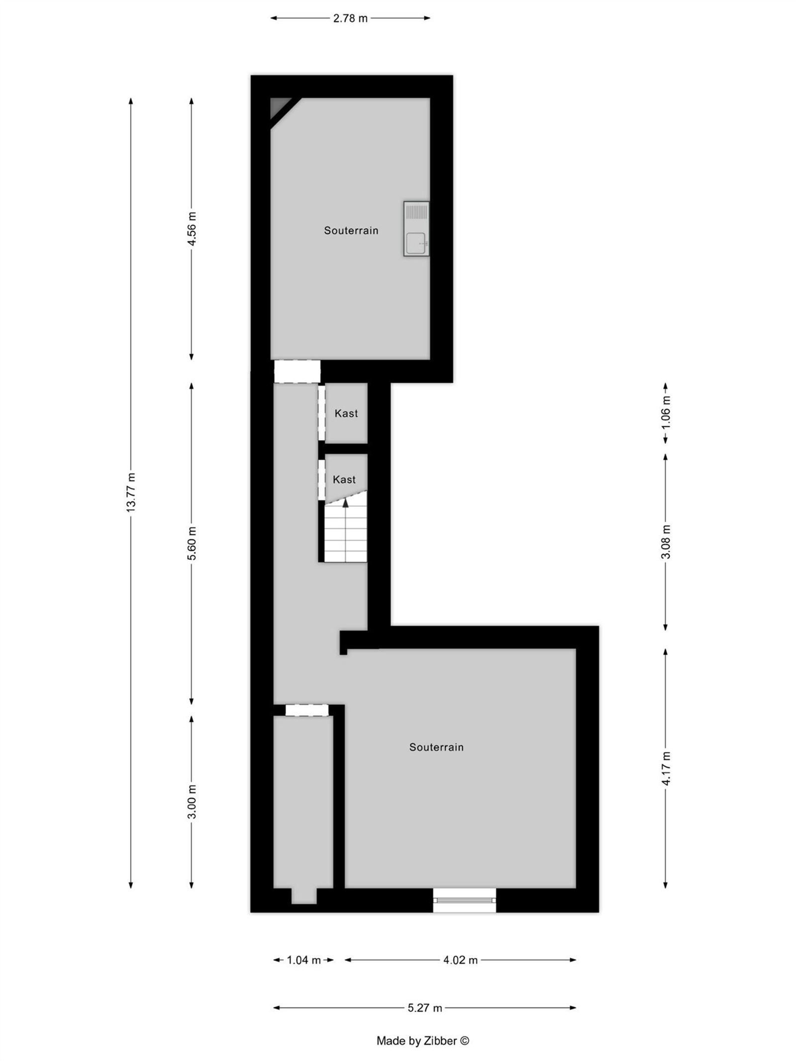
Kelder
Kelder 4,6m x 2,8m = 12,7m² ( beton )
Kelder 5,3m x 4,2m = 22,0m² ( beton )
Kelder 5,6m x 1,0m = 5,8m² ( beton )
Tuin
Tuinberging
Gelijkvloers
Inkomhal 4,3m x 1,2m = 4,9m² ( tegels )
Inkomhal 3,2m x 1,2m = 3,7m² ( tegels )
Eetkamer 4,7m x 6,1m = 28,5m² ( tegels )
Keuken 3,4m x 2,3m = 7,9m² ( tegels , dampkap, gasfornuis, oven )
Living 3,6m x 6,1m = 21,6m² ( tegels )
Terras 5,3m x 2,8m = 15,1m² ( bankirai )
Hal 1,6m x 3,2m = 5,3m² ( tegels )
WC ,9m x 1,8m = 1,5m² ( tegels )
Badkamer 3,2m x 2,3m = 7,5m² ( tegels , dubbele lavabo, bad )
Slaapkamer 4,0m x 4,3m = 17,3m² ( laminaat )
Eerste verdieping
Slaapkamer 4,4m x 5,4m = 23,4m² ( tapijt )
Slaapkamer 4,3m x 3,6m = 15,4m² ( tapijt )
WC 1,7m x 1,0m = 1,7m² ( vinyl )
Tweede verdieping
Zolder 7,0m x 5,4m = 37,7m² ( plancher )
Energie
![]() |
- EPC Certificaat: 20250711-0003644622-RES-1
- Energieverbruik: 552 kWh/m²/jaar
- E-peil: E0
- Verwarming: Gas
- Beglazing: Standaard dubbel
Extra budget nodig voor je renovatie?

Op de kaart

Downloads
- EK_Berendries 34_159642.pdf
- EPC Berendries 34, 1500 Halle.pdf
- Overstromingsrapport Berendries 34 - 1500 Halle.pdf
- SDI - Berendries 34 - 1500 Halle.pdf
- 113358_2D_Eerste_Verdieping_Berendries_34_Halle_02.jpg
- 113358_2D_Gelijkvloers_Berendries_34_Halle_01.jpg
- 113358_2D_Souterrain_Berendries_34_Halle_04.jpg
- 113358_2D_Tweede_Verdieping_Berendries_34_Halle_03.jpg
- Asbestattest Berendries 34 - 1502 Lembeek_.pdf
Financieel
| Prijs | |
|---|---|
| Kadastraal inkomen (niet geïndexeerd) | € 919 |
| Kadastraal inkomen (geïndexeerd) | € 0 |
Berekening kosten
Je aankoopkosten? Die heb je snel berekent via de knop hieronder.
Bijkomende info
Gebouw
| Bouwjaar | 1934 |
|---|---|
| Staat | Op te frissen |
| Bouwcertificaat | Nee |
| Bewoonbaar (m²) | 145 |
| Verdieping | 0 |
| Badkamers | 1 |
| Slaapkamers | 3 |
| Verdiepingen | 0 |
| Garages | 0 |
| Parkeerplaatsen | 3 |
| Doucheruimtes | 0 |
| Toiletten | 2 |
Faciliteiten
| Keuken uitrusting | Standaard |
|---|---|
| Materiaal ramenomlijstingen | Aluminium |
| Beglazing | Standaard dubbel |
| Brandstof primaire verwarming | Gas |
| Elektrisch keuringsattest | Nee |
Perceel
| Overstromingsgevoelig | Geen |
|---|---|
| P-score | D |
| G-score | C |
| Voorkeurrecht | Nee |
| Totale oppervlakte (m²) | 885 |
| Bebouwde oppervlakte (m²) | 0 |
| Tuin oppervlakte (m²) | 0 |
| Oppervlakte terras (m²) | 0 |
| Oriëntatie tuin | Zuidwest |
Vergunning
| Vergunning | Vergunning beschikbaar |
|---|---|
| Verkavelingsvergunning | Geen beschikbaar |
Uitrusting
| Investeringspand | Nee |
|---|---|
| Geschikt voor praktijk | Nee |
| Parking | Ja |
| Garage | Nee |
| Thuiskantoor | Nee |
| Kelder | Ja |
| Zolder | Ja |
| Tuin | Ja |
| Terras | Nee |
| Lift | Nee |
| Rioolaansluiting | Ja |
| Gasaansluiting | Ja |
| Wateraansluiting | Ja |
| Elektriciteitsaansluiting | Ja |
| TV aansluiting | Ja |
| Internetaansluiting | Ja |
| Telefoonaansluiting | Ja |



