Nieuw
Nieuwbouwwoning met 3 slpk op perceel van 6a40ca
€ 555.000
Een pand van De Immobiliers
Favoriet
Jouw zoektocht
Jouw scoretabel voor dit pand
Aan het laden...
Jouw geplande bezichtigingen
Aan het laden...
Overzicht
- 640 m² grond
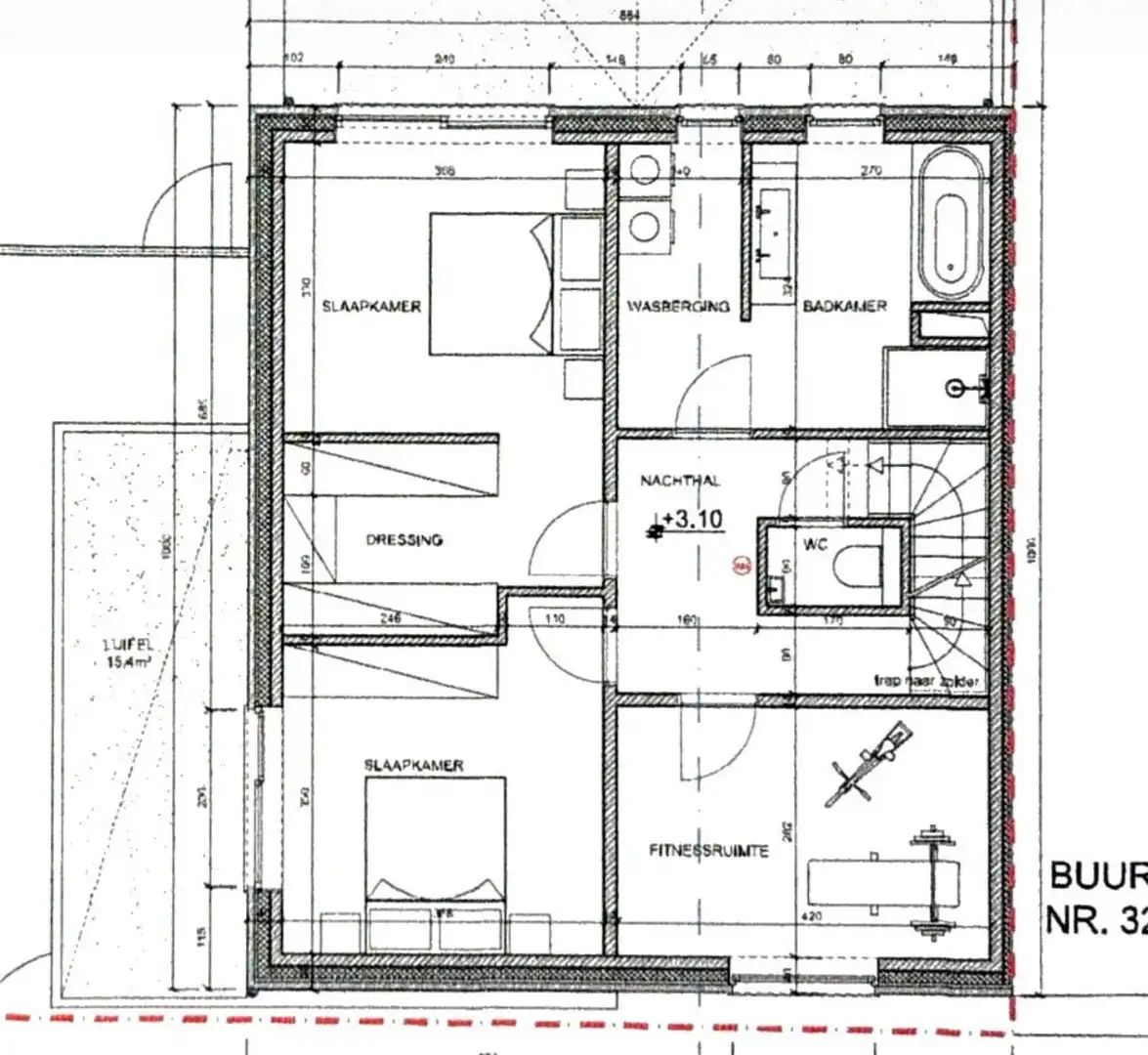
- 3 Slaapkamer(s)
- 1 Badkamer(s)
- 3 Toilet(ten)
- 1 Tuin
Beschrijving
Deze nog op te richten nieuwbouwwoning is gelegen in het landelijke Pajottegem (Herne), biedt een Zuid-Oost georiënteerde tuin en beschikt over een perceelsoppervlakte van 6 are 40 centiare.
De bouwgrond is gelegen in een rustige straat en toch ook in de nabijheid van belangrijke invalswegen en openbaar vervoer, hetgeen zorgt voor een aangename combinatie van rust en bereikbaarheid.
Er werd een omgevingsvergunning voor het bouwen van een ééngezinswoning afgeleverd.
De totale kostprijs voor de aankoop van deze bouwgrond én het oprichten van de woning - volgens de afgeleverde omgevingsvergunning - bedraagt 554.977,42 EUR exclusief BTW en registratierechten, onderverdeeld als volgt:
* Constructie: 410.977,42 euro excl. 21% btw
* Bouwgrond: 139.000 euro excl. 12% registratierechten
* Aankoop vergunning, ARplannen, sondering, epb, stabiliteitsstudie: 5.000 euro
Gescheiden rioleringsstelsel is aanwezig in de straat, aansluiting hierop is reeds voorzien.
Bel voor meer informatie en voor een eventueel bezoek ter plaatse: 02 356 00 00.
De gegeven informatie en opgegeven oppervlaktes zijn louter indicatief en houden geen enkele juridische verbintenis in.
De bouwgrond is gelegen in een rustige straat en toch ook in de nabijheid van belangrijke invalswegen en openbaar vervoer, hetgeen zorgt voor een aangename combinatie van rust en bereikbaarheid.
Er werd een omgevingsvergunning voor het bouwen van een ééngezinswoning afgeleverd.
De totale kostprijs voor de aankoop van deze bouwgrond én het oprichten van de woning - volgens de afgeleverde omgevingsvergunning - bedraagt 554.977,42 EUR exclusief BTW en registratierechten, onderverdeeld als volgt:
* Constructie: 410.977,42 euro excl. 21% btw
* Bouwgrond: 139.000 euro excl. 12% registratierechten
* Aankoop vergunning, ARplannen, sondering, epb, stabiliteitsstudie: 5.000 euro
Gescheiden rioleringsstelsel is aanwezig in de straat, aansluiting hierop is reeds voorzien.
Bel voor meer informatie en voor een eventueel bezoek ter plaatse: 02 356 00 00.
De gegeven informatie en opgegeven oppervlaktes zijn louter indicatief en houden geen enkele juridische verbintenis in.
Energie
- Verwarming: Geen
- Beglazing: Onbekend
Op de kaart

Financieel
| Prijs | |
|---|---|
| Kadastraal inkomen (niet geïndexeerd) | € 5 |
Bijkomende info
Gebouw
| Is beschermd | Nee |
|---|---|
| Badkamers | 1 |
| Slaapkamers | 3 |
| Verdiepingen | 2 |
| Parkeerplaatsen | 2 |
| Toiletten | 3 |
Faciliteiten
| Keuken | Open keuken |
|---|---|
| Luiken | Nee |
| Primair verwarmingstype | Geen verwarming |
| Brandstof primaire verwarming | Geen |
| Warm water type | Geen verwarming |
Perceel
| Overstromingsgevoelig | Geen |
|---|---|
| P-score | A |
| Voorkeurrecht | Nee |
| Totale oppervlakte (m²) | 640 |
| Oriëntatie tuin | ZuidOost |
Vergunning
| Vergunning | Vergunning beschikbaar |
|---|---|
| Verkavelingsvergunning | Geen beschikbaar |
| Bouwovertreding dagvaardiging | Geen |
Uitrusting
| Meerdere eigenaars | Nee |
|---|---|
| Geschikt als kangoeroewoning | Nee |
| Geschikt voor rolstoelgebruikers | Nee |
| Geschikt voor praktijk | Ja |
| Volledig onderkelderd | Nee |
| Parking | Ja |
| Garage | Nee |
| Thuiskantoor | Ja |
| Kelder | Nee |
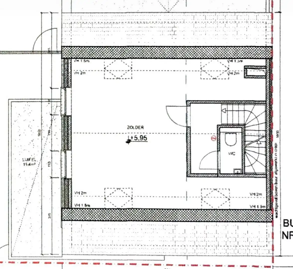
| Zolder | Ja |
| Opslagruimte | Ja |
| Tuin | Ja |
| Terras | Ja |
| Lift | Nee |
| Rioolaansluiting | Ja |
| Gasaansluiting | Nee |
| Wateraansluiting | Nee |
| Elektriciteitsaansluiting | Nee |
| TV aansluiting | Nee |
| Internetaansluiting | Nee |
| Zonnepanelen | Nee |
| Zonneboiler | Nee |
| Alarm | Nee |
| Zwembad | Nee |
| Jacuzzi | Nee |
| Toonzaal | Nee |
| Ventilatie | Nee |
Een pand van
De Immobiliers
De Immobiliers
De vastgoedspecialist in Halle en de ruime regio, toegankelijk voor iedereen.
Wij zijn een jong en dynamisch team vastgoedmakelaars die dagelijks met passie en inzet aan het werk gaan om uw vastgoed te verkopen, te verhuren of te optimaliseren. Elke verkoop is uniek, verkoper en koper hebben hun eigen verhaal. Uw verhaal verdient dan ook de service en expertise van een professional.
Persoonlijke service en vertrouwen, daar kan u bij ons op rekenen.
TK/2026/0086
Leer meer over vastgoed
23 March 2026
Op Spotto zoeken als een pro: 10 slimme tips
21 March 2026
Hoeveel kan ik lenen om een huis te kopen?
01 March 2026
Wanneer heb ik een bouwvergunning of omgevingsvergunning nodig?
17 February 2026