Ruime casco woning
€ 375.000
Een pand van WOONKANTOOR
Overzicht
- 703 m² grond
- 5 Slaapkamer(s)
- 1 Badkamer(s)
- 2 Toilet(ten)
- 1 Tuin
- 1 Garage(s)
Beschrijving
Zeer ruime en rustige gelegen casco woning te koop.
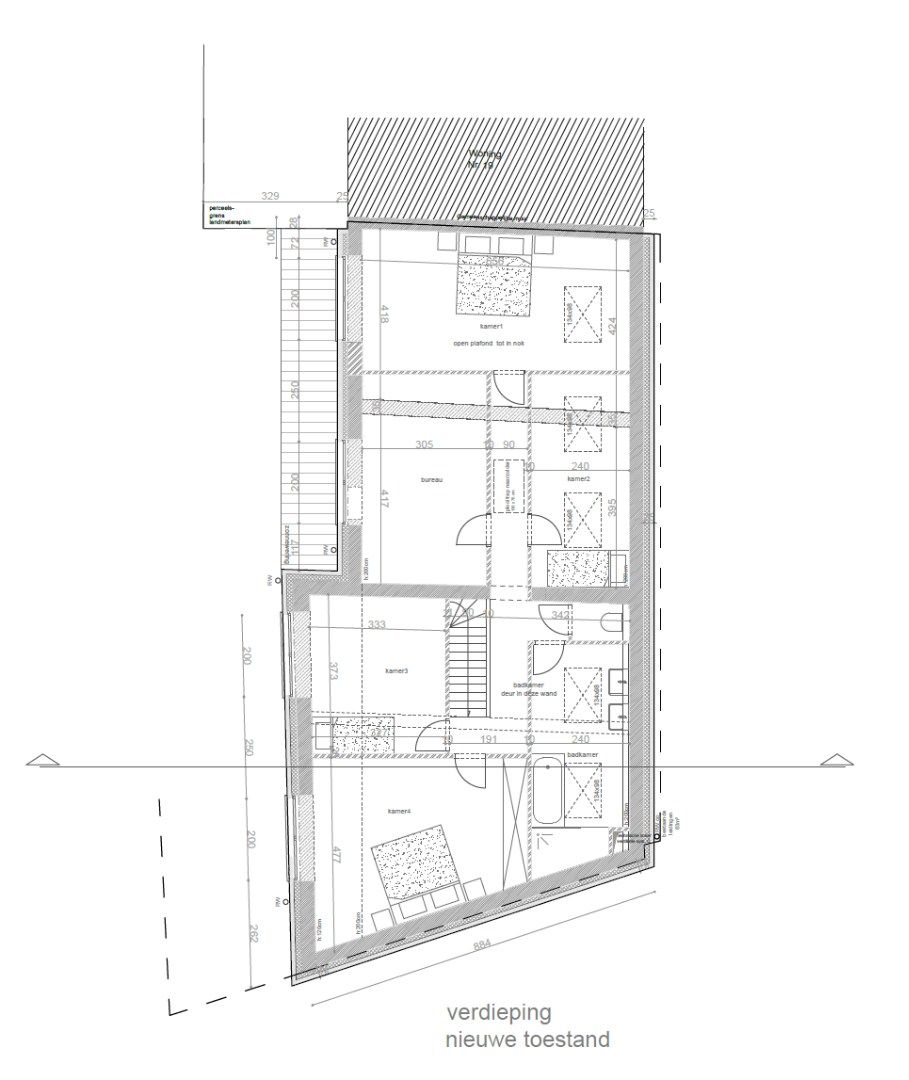
Indeling voorzien volgen plan: gelijkvloers (141 m²): inkomhal, ruime woonkamer met open keuken (58 m²), bering, toilet en garage; verdieping (141 m²): nachthal, 5 slaapkamers, toilet en badkamer; dakverdieping (70m²): zolderruimte. Deze indeling kan nog gewijzigd worden.
Dit pand is gelegen in een rustige buurt en heeft een mooie tuin.
Indeling voorzien volgen plan: gelijkvloers (141 m²): inkomhal, ruime woonkamer met open keuken (58 m²), bering, toilet en garage; verdieping (141 m²): nachthal, 5 slaapkamers, toilet en badkamer; dakverdieping (70m²): zolderruimte. Deze indeling kan nog gewijzigd worden.
Dit pand is gelegen in een rustige buurt en heeft een mooie tuin.
Energie
- Verwarming: Geen
- Beglazing: Hoog efficient dubbel
Op de kaart

Financieel
| Prijs | |
|---|---|
| Kadastraal inkomen (niet geïndexeerd) | € 364 |
Bijkomende info
Gebouw
| Renovatie jaar | 2025 |
|---|---|
| Is beschermd | Nee |
| Badkamers | 1 |
| Slaapkamers | 5 |
| Verdiepingen | 2 |
| Garages | 1 |
| Toiletten | 2 |
Faciliteiten
| Materiaal ramenomlijstingen | Aluminium |
|---|---|
| Beglazing | Hoog efficient dubbel |
| Luiken | Nee |
| Primair verwarmingstype | Geen verwarming |
| Brandstof primaire verwarming | Geen |
| Warm water type | Geen verwarming |
Perceel
| Overstromingsgevoelig | Geen |
|---|---|
| P-score | B |
| G-score | B |
| Voorkeurrecht | Nee |
| Totale oppervlakte (m²) | 703 |
Vergunning
| Vergunning | Vergunning beschikbaar |
|---|---|
| Verkavelingsvergunning | Geen beschikbaar |
| Bouwovertreding dagvaardiging | Geen |
| Type gebied | Landelijk |
Uitrusting
| Meerdere eigenaars | Nee |
|---|---|
| Geschikt als kangoeroewoning | Nee |
| Geschikt voor rolstoelgebruikers | Nee |
| Geschikt voor praktijk | Nee |
| Volledig onderkelderd | Nee |
| Parking | Nee |
| Garage | Ja |
| Thuiskantoor | Nee |
| Kelder | Nee |
| Zolder | Nee |
| Opslagruimte | Nee |
| Tuin | Ja |
| Terras | Ja |
| Lift | Nee |
| Rioolaansluiting | Ja |
| Gasaansluiting | Ja |
| Wateraansluiting | Ja |
| Elektriciteitsaansluiting | Ja |
| TV aansluiting | Nee |
| Internetaansluiting | Nee |
| Zonnepanelen | Nee |
| Zonneboiler | Nee |
| Alarm | Nee |
| Zwembad | Nee |
| Jacuzzi | Nee |
| Toonzaal | Nee |
| Ventilatie | Nee |
Een pand van
WOONKANTOOR
Verkopen en verhuren zonder zorgen!
Een professioneel makelaarskantoor met familiale roots, waar wederzijds vertrouwen, service én vakkennis de maatstaf ziin! Maar ook een professionele opvolging van elk project van A tot Z en duidelijk verstaanbare communicatie & administratie zowel voor de verkoper (verhuurder) als de koper (huurder) zijn dé basis die van het (bescheiden) regionaal succes geen toeval maken.
S/0086/TK/09/2025
Leer meer over vastgoed
Nieuw
24 November 2025
Uitgezocht voor jouw gemeente: Hoeveel stijgt de waarde van je woning door een renovatie?
22 October 2025
Hoeveel kan ik lenen om een huis te kopen?
11 June 2025
Huis kopen met bouwovertreding? Dit moet je weten
11 May 2025