Nieuw
Bouwgrond open bebouwing op 15are12ca in het landelijke Tollembeek
Een pand van CENTURY 21 ATG & Vast Goed
Favoriet
Jouw zoektocht
Jouw scoretabel voor dit pand
Aan het laden...
Jouw geplande bezichtigingen
Aan het laden...
Overzicht
- 243 m² bewoonbaar
- 1512 m² grond
- 1 Tuin
Beschrijving
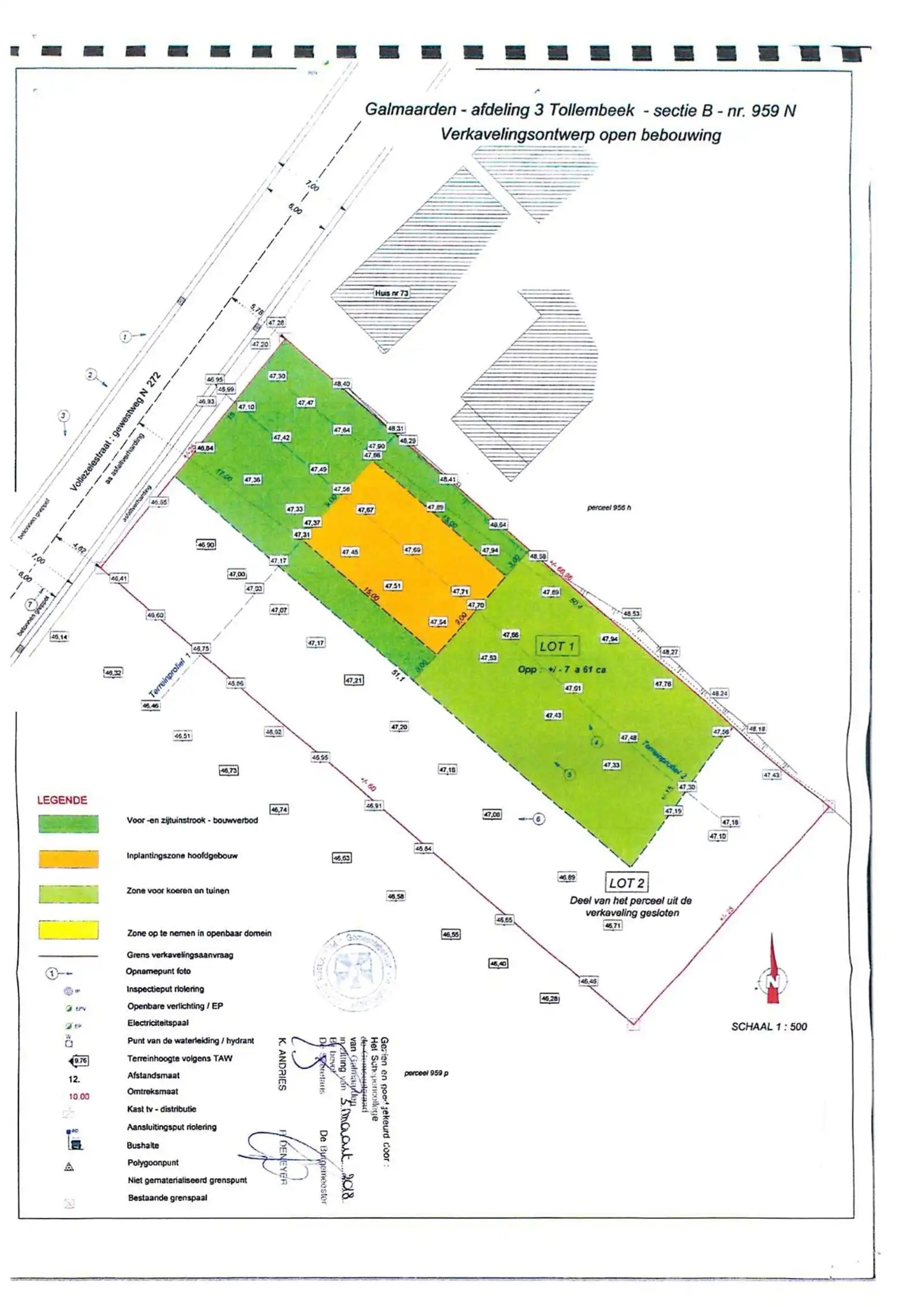
Deze uitstekende bouwgrond voor open bebouwing biedt een unieke kans om uw droomhuis te realiseren in het charmante dorp Tollembeek. Gelegen in een rustige en groene omgeving, is deze ruime perceel ideaal voor wie op zoek is naar een vredige woonplek met voldoende privacy. De grond is 15are12ca groot, 68m diep en 22m grondbreedte. De grond is geschikt voor een eengezinswoning met inbegrip van zorgwoning!
De bouwgrond biedt voldoende ruimte om uw ideale woning te bouwen. Als open bebouwing kunt u genieten van maximale vrijheid in het ontwerp en de indeling van uw huis, met de mogelijkheid om een prachtige tuin of buitenruimte te creëren. Tollembeek ligt gunstig ten opzichte van belangrijke steden en voorzieningen. U bent binnen handbereik van winkels, scholen, openbaar vervoer en andere faciliteiten. Bovendien biedt de nabijheid van natuurgebieden en recreatieve mogelijkheden volop gelegenheid voor ontspanning en buitenactiviteiten. U kunt uw huis volledig naar eigen smaak bouwen en aanpassen, en de waarde van uw eigendom kan in de loop der jaren stijgen. Aarzel niet om deze unieke kans te grijpen en uw droomhuis werkelijkheid te laten worden. Geniet van het landelijke karakter van Tollembeek met zijn weidse landschappen en groene omgeving. Het biedt een aangename leefomgeving weg van de drukte van de stad, maar met alle nodige voorzieningen binnen handbereik.
Gelijkvloers: 15m diep bouwen - 1e verdiep: 12m diep bouwen (dak terras van 3m mogelijk) - Kroonlijsthoogte max 5,3m - Helling dak max 45° of plat dak - bijgebouw is mogelijk van max 32m² & de max bouwhoogte is 3,5m
Neem contact op met ons: 054/34.34.34 of via e-mail: info@c21.be voor meer informatie over deze bouwgrond in Tollembeek.
De bouwgrond biedt voldoende ruimte om uw ideale woning te bouwen. Als open bebouwing kunt u genieten van maximale vrijheid in het ontwerp en de indeling van uw huis, met de mogelijkheid om een prachtige tuin of buitenruimte te creëren. Tollembeek ligt gunstig ten opzichte van belangrijke steden en voorzieningen. U bent binnen handbereik van winkels, scholen, openbaar vervoer en andere faciliteiten. Bovendien biedt de nabijheid van natuurgebieden en recreatieve mogelijkheden volop gelegenheid voor ontspanning en buitenactiviteiten. U kunt uw huis volledig naar eigen smaak bouwen en aanpassen, en de waarde van uw eigendom kan in de loop der jaren stijgen. Aarzel niet om deze unieke kans te grijpen en uw droomhuis werkelijkheid te laten worden. Geniet van het landelijke karakter van Tollembeek met zijn weidse landschappen en groene omgeving. Het biedt een aangename leefomgeving weg van de drukte van de stad, maar met alle nodige voorzieningen binnen handbereik.
Gelijkvloers: 15m diep bouwen - 1e verdiep: 12m diep bouwen (dak terras van 3m mogelijk) - Kroonlijsthoogte max 5,3m - Helling dak max 45° of plat dak - bijgebouw is mogelijk van max 32m² & de max bouwhoogte is 3,5m
Neem contact op met ons: 054/34.34.34 of via e-mail: info@c21.be voor meer informatie over deze bouwgrond in Tollembeek.
Energie
- E-peil: E0
- Beglazing: Onbekend
Op de kaart

Financieel
| Prijs | |
|---|---|
| Kadastraal inkomen (niet geïndexeerd) | € 0 |
| Kadastraal inkomen (geïndexeerd) | € 0 |
Berekening kosten
Je aankoopkosten? Die heb je snel berekend via de knop hieronder.
Bijkomende info
Gebouw
| Bouwcertificaat | Nee |
|---|
Perceel
| Diepte (m) | 68 |
|---|---|
| Breedte (m) | 22 |
| Overstromingsgevoelig | Geen |
| Voorkeurrecht | Ja |
| Totale oppervlakte (m²) | 1512 |
Vergunning
| Vergunning | Aanvraag ingediend |
|---|---|
| Verkavelingsvergunning | Aanvraag ingediend |
Uitrusting
| Investeringspand | Nee |
|---|---|
| Rioolaansluiting | Nee |
| Gasaansluiting | Nee |
| Wateraansluiting | Ja |
| Elektriciteitsaansluiting | Ja |
| TV aansluiting | Ja |
| Internetaansluiting | Ja |
| Telefoonaansluiting | Ja |
Een pand van
CENTURY 21 ATG & Vast Goed
Samen sterker in jouw vastgoedtraject.
CENTURY 21 ATG en Vast Goed helpen je bij al jouw vastgoedplannen.
Onze kennis en ervaring zorgen voor expertise en innovatie. Met ons versterkt team gidsen we jullie beter, sneller én persoonlijker doorheen jullie avontuur.
Bij CENTURY 21 ATG & Vast Goed kan je elke dag vrijblijvend aankloppen om je bij te staan bij al jouw vastgoedplannen.
Onze expertise heeft een focus op het Pajottenland, Oost-Vlaanderen en Brussel van woningen tot opbrengsteigendommen en nieuwbouw.
Ons dynamisch team, gedreven door expertise en innovatie, zoekt nieuwe collega’s voor verschillende regio's. Heb jij een neus en passie voor vastgoed?
TOLLEMBEEK VOLLEZELESTRAAT rechts van 73
Leer meer over vastgoed
23 March 2026
Op Spotto zoeken als een pro: 10 slimme tips
21 March 2026
Hoeveel kan ik lenen om een huis te kopen?
01 March 2026
Wanneer heb ik een bouwvergunning of omgevingsvergunning nodig?
17 February 2026