Totaalrenovatiewoning op plan, op een terrein van 1107m²
€ 565.000
Een pand van Immo Zone
Jouw zoektocht
Overzicht
- 180 m² bewoonbaar
- 1107 m² grond
- 3 Slaapkamer(s)
- 1 Badkamer(s)
- 2 Toilet(ten)
- 1 Tuin
Beschrijving
We treffen dit te bouwen nieuwbouwpand aan in de Rensbergstraat ter hoogte van huisnummer 23 te Vollezele, op een perceel van 1107 m².
Van de huidige woning zullen slechts enkele muren blijven staan en we bieden een totaal herbouwd huis op plan aan. (Wet Breyne)
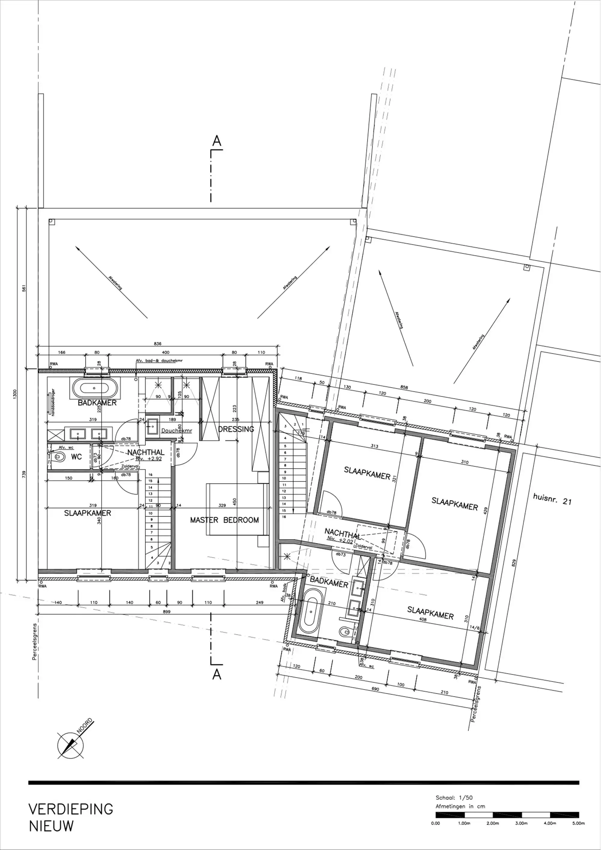
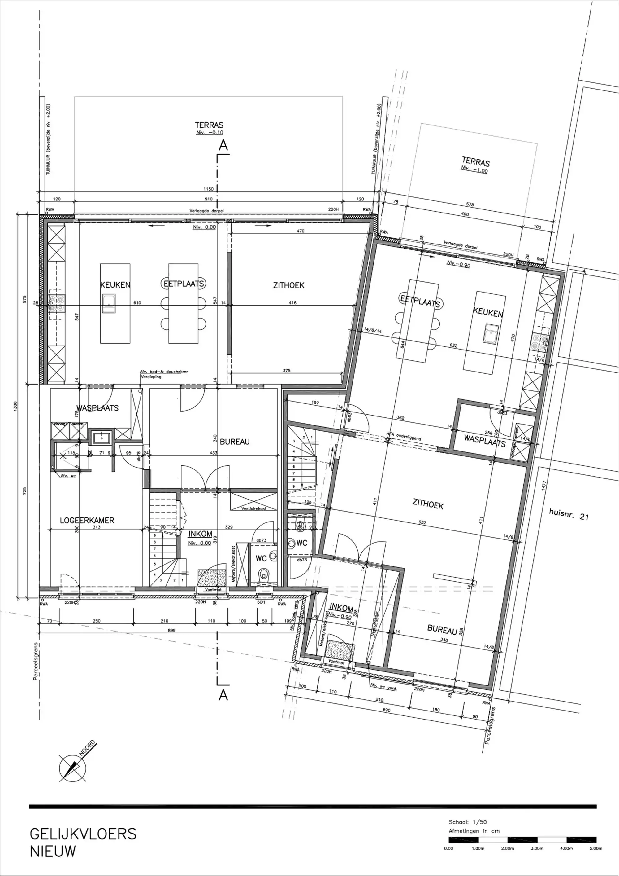
Het betreft de linkse woning op de plannen (zie foto's), met een bewoonbare oppervlakte van ongeveer 180m².
Op de gelijkvloerse verdieping vinden we een ruime inkomhal met aansluitend een toilet. Hier aanpalend bevindt zich een eerste slaapkamer met eigen sanitair. Eveneens aanpalend: een groot bureel. Vervolgens kunnen we de ruime leefruimte met aansluitend de eetplaats en een rijkelijk uitgeruste keuken vinden. Er is een groot terras en een grote tuin. Tot slot is aansluitend aan de keuken nog de wasplaats/berging;
Op de eerste verdieping bevindt zich de nachthal met een toilet, een badkamer met douche en ligbad en nog 2 ruime slaapkamers, waarvan eentje met dressing.
De zolder zal toegankelijk zijn met een zolderluik.
De vraagprijs bedraagt 565.000 euro, bestaande uit 210.000 euro grondwaarde en 355.000 euro constructiewaarde.
- Verkoop onder 6% BTW mogelijk.
- Duurzame afwerking
- Energiezuinig, want EPB-wetgeving van toepassing.
- Inrichting momenteel nog zelf te kiezen!
Voor meer informatie of een bezoek, contacteer Kristof van Immo Zone op het nummer 0484/ 84. 84. 86.
Energie
- EPC Certificaat: EPB van toepassing
- E-peil: E0
- Beglazing: Onbekend
Op de kaart

Financieel
| Prijs | |
|---|---|
| Kadastraal inkomen (niet geïndexeerd) | € 0 |
| Kadastraal inkomen (geïndexeerd) | € 0 |
Berekening kosten
Je aankoopkosten? Die heb je snel berekend via de knop hieronder.
Bijkomende info
Gebouw
| Bouwcertificaat | Nee |
|---|---|
| Bewoonbaar (m²) | 180 |
| Verdieping | 0 |
| Badkamers | 1 |
| Slaapkamers | 3 |
| Verdiepingen | 2 |
| Garages | 0 |
| Parkeerplaatsen | 0 |
| Doucheruimtes | 1 |
| Toiletten | 2 |
Faciliteiten
| Keuken uitrusting | Luxueus uitgerust |
|---|---|
| Materiaal ramenomlijstingen | Aluminium |
| Elektrisch keuringsattest | Ja |
Perceel
| Overstromingsgevoelig | Geen |
|---|---|
| Voorkeurrecht | Ja |
| Totale oppervlakte (m²) | 1107 |
| Bebouwde oppervlakte (m²) | 0 |
| Tuin oppervlakte (m²) | 0 |
| Oppervlakte terras (m²) | 0 |
Vergunning
| Vergunning | Geen beschikbaar |
|---|---|
| Verkavelingsvergunning | Geen beschikbaar |
Uitrusting
| Investeringspand | Nee |
|---|---|
| Geschikt voor praktijk | Nee |
| Parking | Nee |
| Garage | Nee |
| Thuiskantoor | Nee |
| Kelder | Ja |
| Zolder | Nee |
| Tuin | Ja |
| Terras | Ja |
| Lift | Nee |
| Rioolaansluiting | Nee |
| Gasaansluiting | Nee |
| Wateraansluiting | Nee |
| Elektriciteitsaansluiting | Nee |
| TV aansluiting | Nee |
| Internetaansluiting | Nee |
| Telefoonaansluiting | Nee |