Bouwgrond met plan en vergunning op een terrein van 749m²
€ 185.000
Een pand van Immo Zone
Jouw zoektocht
Overzicht
- 160 m² bewoonbaar
- 749 m² grond
- 3 Slaapkamer(s)
- 1 Badkamer(s)
- 2 Toilet(ten)
- 1 Tuin
Beschrijving
Absolute topper! We treffen dit te bouwen nieuwbouwpand aan in de Rensbergstraat ter hoogte van huisnummer 21A te Vollezele.
We bieden een bouwgrond aan met plan en vergunning op een terrein van 749 m² .
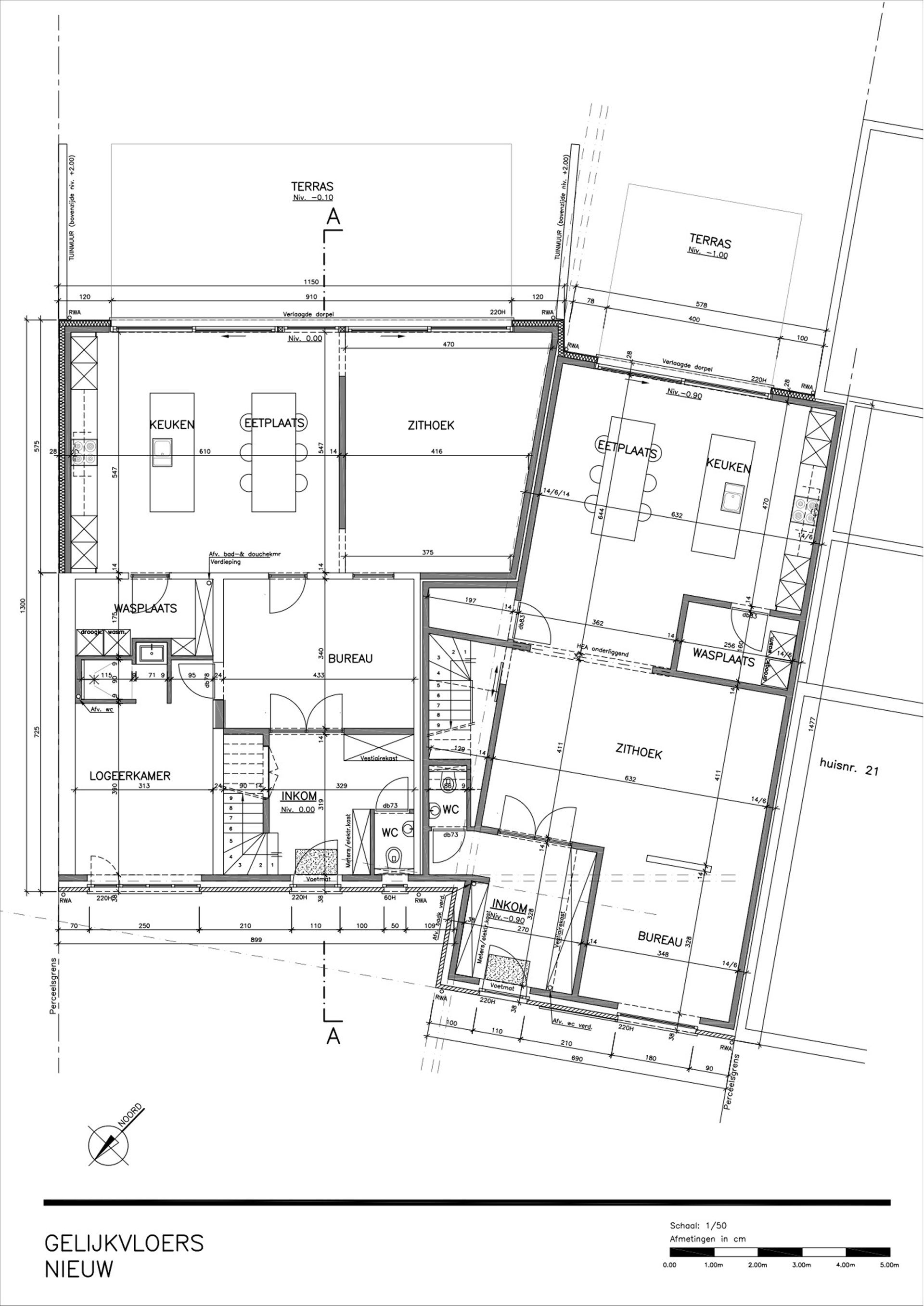
Het betreft de rechtse woning op de plannen (zie foto's), met een bewoonbare oppervlakte van ongeveer 160m².
Op de gelijkvloerse verdieping vinden we een ruime inkomhal met aansluitend een toilet. Hier aanpalend bevindt zich een bureelgedeelte. Vervolgens kunnen we de ruime leefruimte met aansluitend de eetplaats en een rijkelijk uitgeruste keuken vinden. Er is een groot terras en een grote tuin. Tot slot is aansluitend aan de keuken nog de wasplaats en een berging;
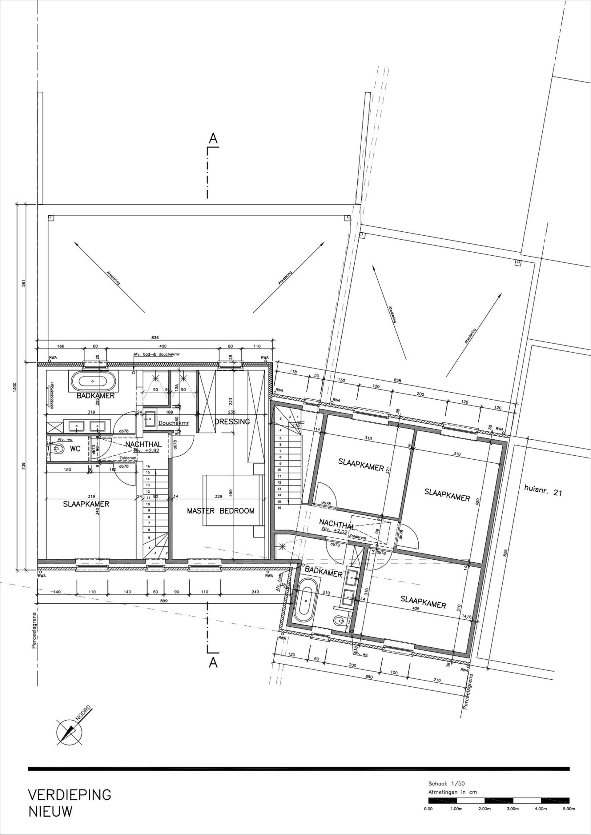
Op de eerste verdieping bevindt zich de nachthal, een badkamer met douche, ligbad en toilet en nog 3 slaapkamers.
De zolder zal toegankelijk zijn met een zolderluik.
Verkoop onder BTW-stelsel.
Voor meer informatie of een bezoek, contacteer Kristof van Immo Zone op het nummer 0484/ 84. 84. 86.
Energie
- EPC Certificaat: EPB van toepassing
- E-peil: E0
- Beglazing: Onbekend
Op de kaart

Financieel
| Prijs | |
|---|---|
| Kadastraal inkomen (niet geïndexeerd) | € 0 |
| Kadastraal inkomen (geïndexeerd) | € 0 |
Berekening kosten
Je aankoopkosten? Die heb je snel berekend via de knop hieronder.
Bijkomende info
Gebouw
| Bouwcertificaat | Nee |
|---|
Perceel
| Overstromingsgevoelig | Geen |
|---|---|
| P-score | A |
| Voorkeurrecht | Ja |
| Totale oppervlakte (m²) | 749 |
Vergunning
| Vergunning | Geen beschikbaar |
|---|---|
| Verkavelingsvergunning | Geen beschikbaar |
Uitrusting
| Investeringspand | Nee |
|---|---|
| Rioolaansluiting | Nee |
| Gasaansluiting | Nee |
| Wateraansluiting | Nee |
| Elektriciteitsaansluiting | Nee |
| TV aansluiting | Nee |
| Internetaansluiting | Nee |
| Telefoonaansluiting | Nee |