Ruime 3-gevel woning (274m²) met 3 slaapkamers, grote garage en mooie tuin
Een pand van Multimmo
Overzicht
- 274 m² bewoonbaar
- 511 m² grond
- 3 Slaapkamer(s)
- 1 Badkamer(s)
- 1 Garage(s)
Beschrijving
Gelijkvloers
Inkomhal 1,9m x 6,2m = 12,0m² ( tegels )
Garage 5,1m x 7,0m = 35,5m² ( tegels )
Berging 5,3m x 4,3m = 22,6m² ( tegels )
Stookkamer 2,7m x 5,3m = 14,2m² ( tegels )
Eerste verdieping
Hal 1,9m x 3,9m = 7,5m² ( tegels )
WC 1,9m x ,8m = 1,6m² ( tegels )
Living en eetkamer 5,0m x 7,0m = 35,0m² ( tegels , open haard )
Keuken 5,2m x 4,3m = 22,4m² ( tegels )
Bijkeuken 5,2m x 2,6m = 13,8m² ( tegels )
Tuin
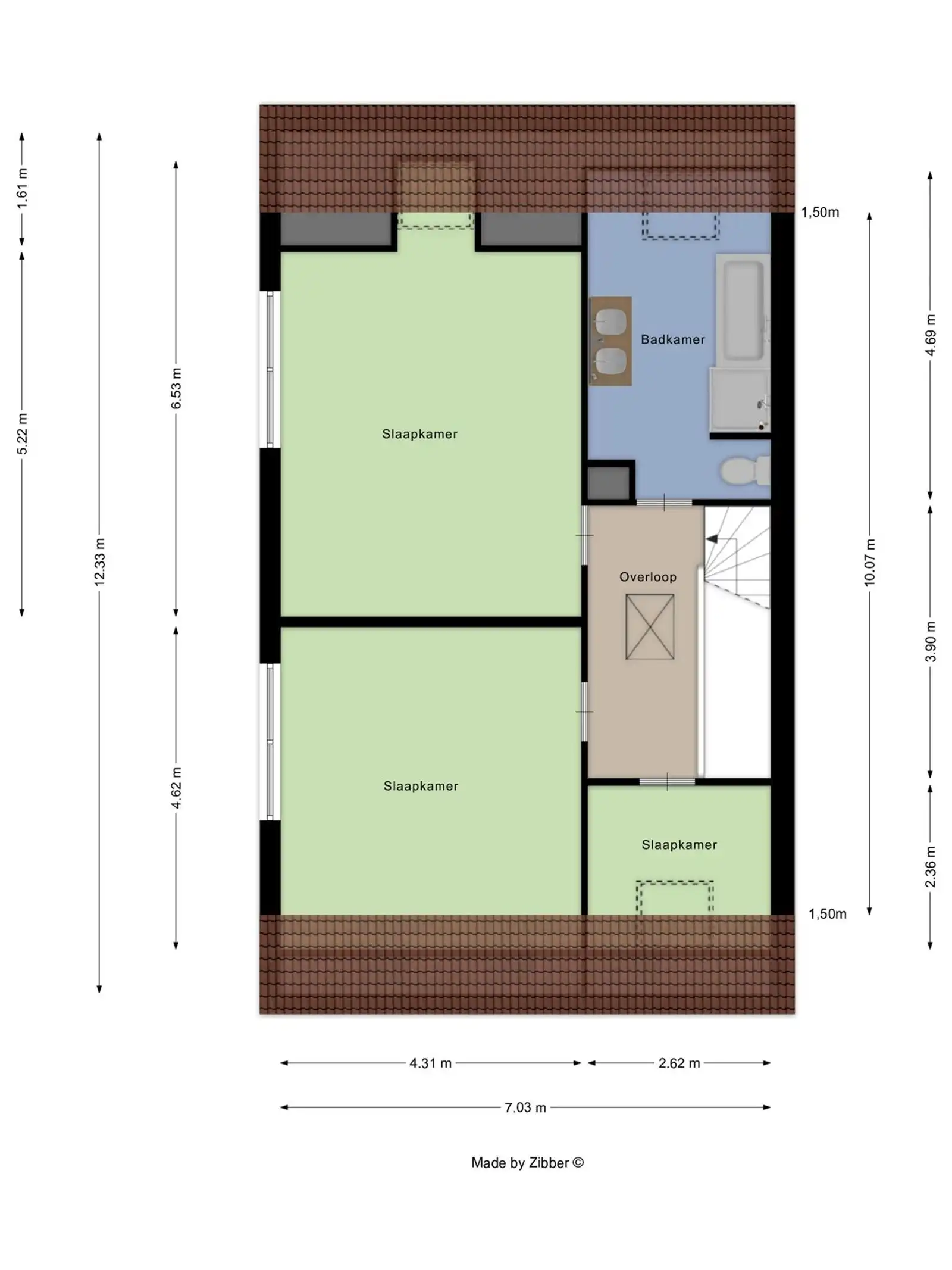
Tweede verdieping
Nachthal 2,6m x 3,9m = 10,2m² ( laminaat )
Slaapkamer 4,3m x 4,6m = 19,9m² ( laminaat )
Slaapkamer 6,5m x 4,3m = 28,1m² ( laminaat )
Slaapkamer 2,6m x 2,4m = 6,3m² ( laminaat )
Badkamer 4,7m x 2,6m = 12,3m² ( tegels , dubbele lavabo, douche, wc, bad )
Derde verdieping
Zolder 5,9m x 5,4m = 31,4m²
Energie
![]() |
- EPC Certificaat: 20260305-0003817342-RES-1
- Energieverbruik: 201 kWh/m²/jaar
- E-peil: E0
- Beglazing: Standaard dubbel
Op de kaart

Downloads
- Asbestattest - Jules Sermonstraat 2C - 1600 SPL.pdf
- EK_JULES SERMONSTRAAT 2C, 1600 SINT-PIETERS-LEEUW_196961.pdf
- EPC Jules Sermonstraat 2C, 1600 Sint-Pieters-Leeuw.pdf
- Bodemattest - Jules Sermonstraat 2C - 1600 SPL.pdf
- 183026131_1630593_jules_eerste_verdiepi_first_design_20260306_9c7537.jpg
- 183026131_1630593_jules_gelijkvloers_first_design_20260306_97249f.jpg
- 183026131_1630593_jules_tweede_verdiepi_first_design_20260306_61fcb3.jpg
- 183026131_1630593_jules_zolder_first_design_20260306_477d17.jpg
Financieel
| Prijs | |
|---|---|
| Kadastraal inkomen (niet geïndexeerd) | € 1.755 |
| Kadastraal inkomen (geïndexeerd) | € 0 |
Berekening kosten
Je aankoopkosten? Die heb je snel berekend via de knop hieronder.
Bijkomende info
Gebouw
| Bouwjaar | 1993 |
|---|---|
| Staat | Op te frissen |
| Bouwcertificaat | Nee |
| Bewoonbaar (m²) | 274 |
| Verdieping | 0 |
| Badkamers | 1 |
| Slaapkamers | 3 |
| Verdiepingen | 0 |
| Garages | 1 |
| Parkeerplaatsen | 4 |
| Doucheruimtes | 0 |
| Toiletten | 0 |
Faciliteiten
| Keuken uitrusting | Standaard |
|---|---|
| Materiaal ramenomlijstingen | Hout |
| Beglazing | Standaard dubbel |
| Elektrisch keuringsattest | Nee |
Perceel
| Overstromingsgevoelig | Geen |
|---|---|
| P-score | A |
| G-score | A |
| Voorkeurrecht | Ja |
| Totale oppervlakte (m²) | 511 |
| Bebouwde oppervlakte (m²) | 0 |
| Tuin oppervlakte (m²) | 0 |
| Oppervlakte terras (m²) | 0 |
| Oriëntatie tuin | Noord |
Vergunning
| Vergunning | Aanvraag ingediend |
|---|---|
| Verkavelingsvergunning | Aanvraag ingediend |
Uitrusting
| Investeringspand | Nee |
|---|---|
| Geschikt voor praktijk | Nee |
| Parking | Ja |
| Garage | Ja |
| Thuiskantoor | Nee |
| Kelder | Ja |
| Zolder | Ja |
| Tuin | Nee |
| Terras | Ja |
| Lift | Nee |
| Rioolaansluiting | Ja |
| Gasaansluiting | Nee |
| Wateraansluiting | Ja |
| Elektriciteitsaansluiting | Ja |
| TV aansluiting | Ja |
| Internetaansluiting | Ja |
| Telefoonaansluiting | Ja |
