Nieuwbouw KMO Units te koop in Drogenbos
€ 429.750
Een pand van Arcade Vastgoed
Favoriet
Jouw zoektocht
Jouw scoretabel voor dit pand
Aan het laden...
Jouw geplande bezichtigingen
Aan het laden...
Overzicht
- 246 m² bewoonbaar
- 246 m² grond
Overstromingsgevaar gebouw
Overstromingsgevaar perceel
Beschrijving
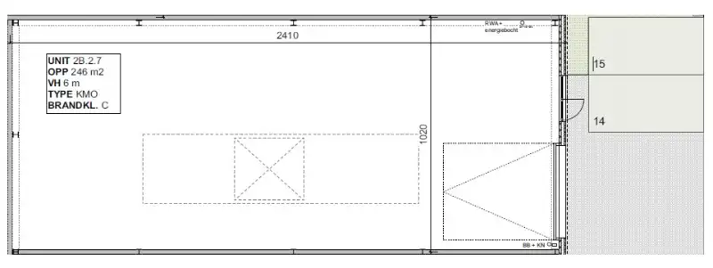
Nieuwbouw ontwikkeling van KMO Units op de voormalige papierfabriek site Catala in Drogenbos. Catala Business Park, bestaande uit 19 KMO-Units (met showroom en kantoren), met een oppervlakte vanaf 155m² tot 471m² (samenvoegbaar tot grotere magazijnen).
De loodsen zullen gebouw worden op deze unieke en strategische locatie aan de zuidrand van Brussel, vlak naast de afrit Ruisbroek, E19 Brussel - Bergen. De Site is in verbinding met het wegennet E40, E19 en A12.
De casco magazijnen zijn opgebouwd uit een staalstructuur met een betonnen plint en geïsoleerde sandwichpanelen, automatisch sectionale poort, steeldeck met lichtstraat en rookluik (brandklasse C), polybetonvloer (1T/m²) en individuele nutsvoorzieningen. De magazijnen hebben een vrije hoogte van 6m en hebben een lichtpunt boven de poort.
Daarnaast zijn de nutsvoorzieningen en 2 privatieve parkeerplaatsen inbegrepen, (bijkomend: mogelijkheid tot plaatsen elektrische laadpaal).
Oplevering voorzien Q3 2025.
Voor meer info aarzel niet ons te contacteren: joost@arcade-vastgoed.be of 0479 49 55 88
De loodsen zullen gebouw worden op deze unieke en strategische locatie aan de zuidrand van Brussel, vlak naast de afrit Ruisbroek, E19 Brussel - Bergen. De Site is in verbinding met het wegennet E40, E19 en A12.
De casco magazijnen zijn opgebouwd uit een staalstructuur met een betonnen plint en geïsoleerde sandwichpanelen, automatisch sectionale poort, steeldeck met lichtstraat en rookluik (brandklasse C), polybetonvloer (1T/m²) en individuele nutsvoorzieningen. De magazijnen hebben een vrije hoogte van 6m en hebben een lichtpunt boven de poort.
Daarnaast zijn de nutsvoorzieningen en 2 privatieve parkeerplaatsen inbegrepen, (bijkomend: mogelijkheid tot plaatsen elektrische laadpaal).
Oplevering voorzien Q3 2025.
Voor meer info aarzel niet ons te contacteren: joost@arcade-vastgoed.be of 0479 49 55 88
Energie
- E-peil: E0
- Beglazing: Onbekend
Op de kaart

Financieel
| Prijs |
|---|
Bijkomende info
Gebouw
| Bouwjaar | 2025 |
|---|---|
| Bouwcertificaat | Nee |
| Bewoonbaar (m²) | 246 |
| Verdieping | 0 |
| Gevelbreedte | 10 |
| Badkamers | 0 |
| Slaapkamers | 0 |
| Verdiepingen | 0 |
| Garages | 0 |
| Parkeerplaatsen | 2 |
| Toiletten | 0 |
Faciliteiten
| Septische tank | Ja |
|---|
Perceel
| Overstromingsgevoelig | Geen |
|---|---|
| P-score | D |
| G-score | D |
| Totale oppervlakte (m²) | 246 |
| Bebouwde oppervlakte (m²) | 246 |
Vergunning
| Verkavelingsvergunning | Geen beschikbaar |
|---|
Uitrusting
| Investeringspand | Nee |
|---|---|
| Parking | Ja |
| Garage | Nee |
| Lift | Nee |
| Rioolaansluiting | Ja |
| Gasaansluiting | Nee |
| Wateraansluiting | Ja |
| Elektriciteitsaansluiting | Ja |
| Internetaansluiting | Ja |
| Telefoonaansluiting | Ja |
| Zonnepanelen | Nee |
| Zonneboiler | Nee |
| Alarm | Nee |
| Videofoon | Nee |
| Grondwaterput | Ja |
Appartementsblok
| Lift | Nee |
|---|---|
| Intercom | Nee |
Een pand van
Arcade Vastgoed
Arcade Vastgoed BV
Arcade Vastgoed is een Gents makelaarskantoor, gespecialiseerd in de verkoop en verhuur van residentieel -en bedrijfsvastgoed in Vlaanderen.
M-0254 - 2B7
Leer meer over vastgoed
04 January 2026
Zoek je een kantoor, een magazijn of… iets ertussenin? Bedrijfsvastgoed uitgelegd
05 November 2024
Bedrijfsvastgoed in transitie: ontdek de toekomst van werkplekken
16 October 2024
Opbrengsteigendom: een slim pad naar passief inkomen en vermogensgroei
09 September 2024