Charmant duplex appartement
€ 269.000
Een pand van Clavis Immo
Jouw zoektocht
Overzicht
- 165 m² bewoonbaar
- 224 m² grond
- 2 Slaapkamer(s)
- 1 Badkamer(s)
- 1 Toilet(ten)
Beschrijving
Clavis Immo stelt met plezier deze aangename duplex voor, gelegen in een kleinschalige mede-eigendom bestaande uit een gebouw met 2 appartementen en een aanpalende woning.
Het gebouw dateert van omstreeks 1900 en werd in 1994 grondig en met zorg gerenoveerd, waarbij het zijn authentiek karakter behield en tegelijk een aangenaam wooncomfort biedt.
Het appartement beschikt over een warme en functionele indeling, vraagt nog enkele opfrissingswerken en heeft een bewoonbare oppervlakte van ±165m² (Volgens opmeting landmeter) en ±104m² (volgens EPC).
En is als volgt ingedeeld:
Op 1ste verdieping:
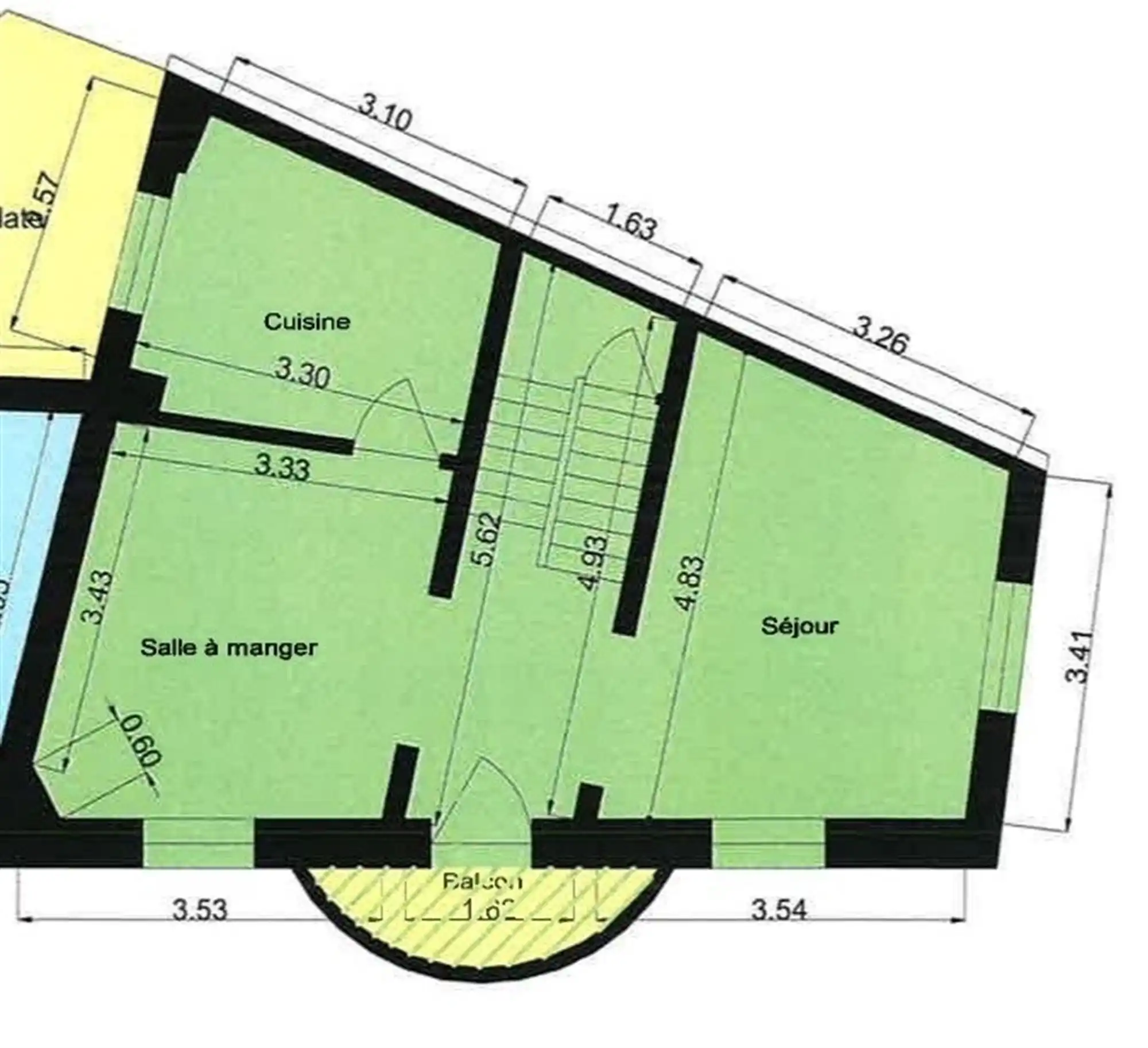
- Een mooie leefruimte met salon en eetplaats met toegang tot balkon van ±2m²;
- Een keuken.
Op 2de verdieping:
- Een nacht hal;
- Twee slaapkamers;
- Een badkamer uitgerust met ligbad, toilet en aansluiting voor een wasmachine.
Op zolderverdieping:
- Inrichtbare zolder.
- Kelderverdieping: Een gemeenschappelijke kelder met toegang tot tellers.
Technische informatie
EPC: D, 388 kWh/(m².jaar) = Geen renovatieplicht
Elektrische installatie: Niet conform
Overstromingsgebied: Niet overstromingsgevoelig, score A.
Asbestattest: Asbest veilig (attest opgesteld op 25 september 2024 beschikbaar op kantoor)
Een rustige woonplek, ideaal voor mensen die op zoek zijn naar een appartement in een groene en serene omgeving. Een echte thuis in alle rust, absoluut een bezoek waard!
Energie
![]() |
- EPC Certificaat: 20231120-0003045129-RES-1
- Energieverbruik: 388 kWh/m²/jaar
- E-peil: E0
- Beglazing: Standaard dubbel
Extra budget nodig voor je renovatie?

Op de kaart

Financieel
| Prijs | |
|---|---|
| Kadastraal inkomen (niet geïndexeerd) | € 1.007 |
| Kadastraal inkomen (geïndexeerd) | € 2.192 |
Berekening kosten
Je aankoopkosten? Die heb je snel berekend via de knop hieronder.
Bijkomende info
Gebouw
| Bouwjaar | 1900 |
|---|---|
| Staat | Op te frissen |
| Bouwcertificaat | Nee |
| Bewoonbaar (m²) | 165 |
| Verdieping | 1 |
| Gevelbreedte | 16 |
| Badkamers | 1 |
| Slaapkamers | 2 |
| Verdiepingen | 2 |
| Garages | 0 |
| Parkeerplaatsen | 0 |
| Doucheruimtes | 0 |
| Toiletten | 1 |
Faciliteiten
| Keuken uitrusting | Standaard |
|---|---|
| Materiaal ramenomlijstingen | Hout |
| Beglazing | Standaard dubbel |
| Elektrisch keuringsattest | Nee |
Perceel
| Overstromingsgevoelig | Geen |
|---|---|
| P-score | A |
| G-score | A |
| Voorkeurrecht | Nee |
| Totale oppervlakte (m²) | 224 |
| Bebouwde oppervlakte (m²) | 153 |
| Tuin oppervlakte (m²) | 0 |
| Oppervlakte terras (m²) | 2 |
| Oriëntatie tuin | ZuidOost |
Vergunning
| Vergunning | Vergunning beschikbaar |
|---|
Uitrusting
| Investeringspand | Nee |
|---|---|
| Geschikt voor praktijk | Nee |
| Parking | Nee |
| Garage | Nee |
| Thuiskantoor | Nee |
| Kelder | Ja |
| Zolder | Nee |
| Tuin | Nee |
| Terras | Ja |
| Lift | Nee |
| Rioolaansluiting | Nee |
| Gasaansluiting | Ja |
| Wateraansluiting | Ja |
| Elektriciteitsaansluiting | Ja |
| TV aansluiting | Ja |
| Internetaansluiting | Ja |
| Telefoonaansluiting | Ja |
Appartementsblok
| Aantal verdiepingen | 2 |
|---|---|
| Lift | Nee |


