Viergevelwoning in felbegeerde wijk
€ 460.000
Een pand van Multimmo
Overzicht
- 154 m² bewoonbaar
- 560 m² grond
- 3 Slaapkamer(s)
- 1 Badkamer(s)
- 1 Tuin
- 1 Garage(s)
Beschrijving
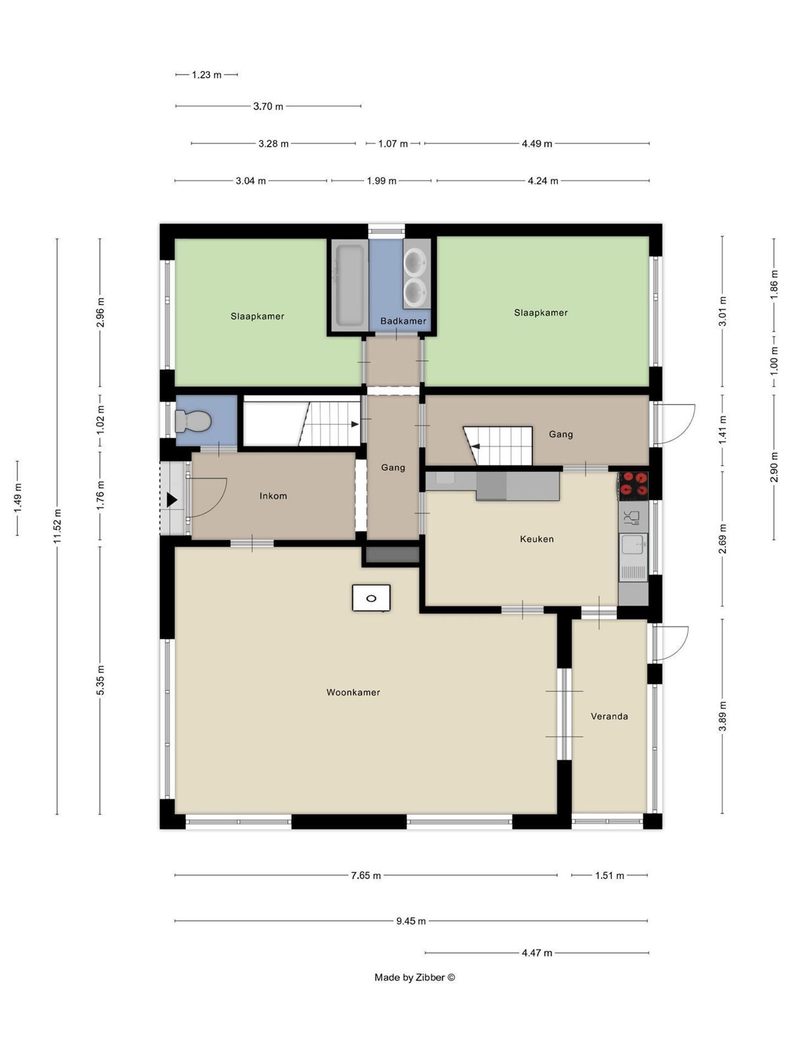
Gelijkvloers
Inkomhal 1,8m x 4,7m = 8,2m²
Living en eetkamer 5,4m x 7,7m = 41,6m²
Keuken 2,7m x 4,4m = 11,9m²
WC 1,0m x 1,2m = 1,0m²
Slaapkamer 3,1m x 3,3m = 10,2m²
Slaapkamer 4,3m x 3,0m = 12,9m²
Badkamer 2,0m x 2,0m = 4,0m² ( bad, lavabo )
Veranda 3,8m x 1,8m = 6,8m²
Verdieping 1
Slaapkamer 5,9m x 3,7m = 21,8m²
Zolder 5,2m x 3,7m = 19,2m²
Energie
![]() |
- Energieverbruik: 1020 kWh/m²/jaar
- E-peil: E0
- Beglazing: Standaard dubbel
Let op, de renovatieverplichting in Vlaanderen verplicht de koper om deze woning na aankoop te renoveren tot een betere energieprestatie. Lees er alles over in dit artikel
Extra budget nodig voor je renovatie?
De overheid helpt je dit pand energetisch te renoveren! Hieronder zie je het premiebedrag dat je mogelijks van de overheid krijgt.
Het huidige EPC-label is:

Op de kaart

Downloads
- 103280_2D_Eerste_Verdieping_Halsendallaan_24_Alsemberg_02.jpg
- 103280_2D_Gelijkvloers_Halsendallaan_24_Alsemberg_01.jpg
- 103280_2D_Kelder_Halsendallaan_24_Alsemberg_03.jpg
- Bodemattest Halsendallaan 24.pdf
- EK Halsendallaan-24-1652-Beersel.pdf
- EPC Halsendallaan-24-1652-Beersel.pdf
- Overstromingsrapport (3).pdf
- asbestattest - Halsendallaan 24, Beersel.pdf
Financieel
Prijs | |
---|---|
Kadastraal inkomen (niet geïndexeerd) | € 2.097 |
Kadastraal inkomen (geïndexeerd) | € 0 |
Berekening kosten
Je aankoopkosten? Die heb je snel berekent via de knop hieronder.
Bijkomende info
Gebouw
Bouwjaar | 1967 |
---|---|
Staat | Op te frissen |
Bouwcertificaat | Nee |
Bewoonbaar (m²) | 154 |
Verdieping | 0 |
Badkamers | 1 |
Slaapkamers | 3 |
Verdiepingen | 0 |
Garages | 1 |
Parkeerplaatsen | 2 |
Doucheruimtes | 0 |
Toiletten | 0 |
Faciliteiten
Keuken uitrusting | Standaard |
---|---|
Materiaal ramenomlijstingen | PVC |
Beglazing | Standaard dubbel |
Elektrisch keuringsattest | Nee |
Perceel
Overstromingsgevoelig | Geen |
---|---|
P-score | A |
G-score | C |
Voorkeurrecht | Ja |
Totale oppervlakte (m²) | 560 |
Bebouwde oppervlakte (m²) | 0 |
Tuin oppervlakte (m²) | 300 |
Oppervlakte terras (m²) | 0 |
Oriëntatie tuin | Noordoost |
Vergunning
Vergunning | Aanvraag ingediend |
---|---|
Verkavelingsvergunning | Aanvraag ingediend |
Uitrusting
Investeringspand | Nee |
---|---|
Geschikt voor praktijk | Nee |
Parking | Ja |
Garage | Ja |
Thuiskantoor | Nee |
Kelder | Ja |
Zolder | Ja |
Tuin | Ja |
Terras | Ja |
Lift | Nee |
Rioolaansluiting | Nee |
Gasaansluiting | Nee |
Wateraansluiting | Nee |
Elektriciteitsaansluiting | Nee |
TV aansluiting | Nee |
Internetaansluiting | Nee |
Telefoonaansluiting | Nee |
Een pand van
Multimmo
Vastgoedkantoor
Multimmo werd in 2000 opgericht door Olivier Degreef en Filip Derkinderen. Een brede ploeg van medewerkers deelt graag zijn ervaring met u. Dankzij onze sterke verbondenheid met en kennis van de regio voelen we goed aan hoe we uw woning het best in de markt zetten.
Ons ruime aanbod trekt sowieso veel kopers en huurders aan. U vindt ons aanbod terug op www.multimmo.be
HALSENDALLAAN 24 ALSEMBERG
Leer meer over vastgoed
11 June 2025
Huis kopen met bouwovertreding? Dit moet je weten
11 May 2025
Renoveren? Vraag je Mijn VerbouwPremie aan
22 April 2025
Je allereerste renovatieproject selecteren én budgetteren: met de praktische hulp van Spotto
17 February 2025