Nieuwbouwappartement in residentie Lindehof te koop
Een pand van IMMO GROOT LEEUW
Favoriet
Jouw zoektocht
Jouw scoretabel voor dit pand
Aan het laden...
Jouw geplande bezichtigingen
Aan het laden...
Overzicht
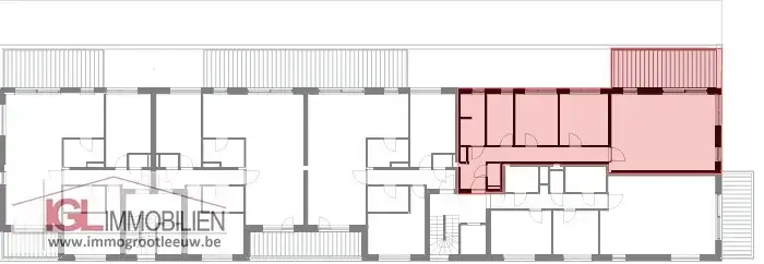
- 107 m² bewoonbaar
- 106 m² grond
- 2 Slaapkamer(s)
- 1 Badkamer(s)
Beschrijving
Aankoop 6% btw mogelijk onder voorwaarden!
Ben je opzoek naar een eigentijds modern appartement? Dan is het project Lindehof zeker iets voor u! Lindehof is een een toekomstgericht project, gebouwd met hoogstaande en duurzame materialen waardoor je voor een zeer lange tijd gerust bent.
Dit lumineus nieuwbouwappartement met een totale bewoonbare oppervlakte van 106,77m² en is voorzien van twee slaapkamers. Met zijn ruim terras van 19m² is dit appartement perfect voor wie op zoek is naar een comfortabele en zorgeloze woonst.
Bij Lindehof wordt elk appartement afgewerkt naar jouw wensen. Van vloer tot keuken, van badkamer tot verfijnde details. Alles is voorzien om jouw droomwoning werkelijkheid te maken.
Door gebruik van zonnepanelen, vloerverwarming en een warmtepomp voldoet dit appartement standaard aan de BEN-norm (Bijna Energie Neutraal) en behalen ze een E-peil van 20 of beter! Zo zit je ook op het vlak van energiezuinigheid veilig. Daardoor profiteer je het hele jaar door van een aangenaam binnenklimaat én levenslang van lage energiefacturen. Doordat dit appartement een e-peil van 20 of beter heeft, geniet u van een vermindering van 50% op de onroerende voorheffing gedurende 5 jaar. Dubbele winst dus!
Lindehof – op de hoek van de L. Devillersstraat en Steenweg naar Alsemberg – is dé plek die eigentijds, comfortabel én betaalbaar wonen in je buurt mogelijk maakt. Alles is dichtbij: winkels, scholen, openbaar vervoer én het prachtige Hallerbos of het provinciedomein van Huizingen.
Door zowel de locatie, afwerking en energiezuinigheid, is dit appartement perfect geschikt voor eigen bewoning als voor investering.
Het is verplicht een een private binnenstaanplaats bij aan te kopen voor de wagen. Deze prijs schommelt tussen 20.000 en 29.000 EUR. U hebt verder nog de mogelijkheid om een extra binnen staanplaats te kopen voor 24.000 EUR.
Aankoop 6% btw mogelijk onder voorwaarden!
Meer info of een brochure? Mis deze kans niet en maak vandaag nog een afspraak via corentin@igl.immo of +32 (0)2 378 04 44 - www.lindehof.immo
Ben je opzoek naar een eigentijds modern appartement? Dan is het project Lindehof zeker iets voor u! Lindehof is een een toekomstgericht project, gebouwd met hoogstaande en duurzame materialen waardoor je voor een zeer lange tijd gerust bent.
Dit lumineus nieuwbouwappartement met een totale bewoonbare oppervlakte van 106,77m² en is voorzien van twee slaapkamers. Met zijn ruim terras van 19m² is dit appartement perfect voor wie op zoek is naar een comfortabele en zorgeloze woonst.
Bij Lindehof wordt elk appartement afgewerkt naar jouw wensen. Van vloer tot keuken, van badkamer tot verfijnde details. Alles is voorzien om jouw droomwoning werkelijkheid te maken.
Door gebruik van zonnepanelen, vloerverwarming en een warmtepomp voldoet dit appartement standaard aan de BEN-norm (Bijna Energie Neutraal) en behalen ze een E-peil van 20 of beter! Zo zit je ook op het vlak van energiezuinigheid veilig. Daardoor profiteer je het hele jaar door van een aangenaam binnenklimaat én levenslang van lage energiefacturen. Doordat dit appartement een e-peil van 20 of beter heeft, geniet u van een vermindering van 50% op de onroerende voorheffing gedurende 5 jaar. Dubbele winst dus!
Lindehof – op de hoek van de L. Devillersstraat en Steenweg naar Alsemberg – is dé plek die eigentijds, comfortabel én betaalbaar wonen in je buurt mogelijk maakt. Alles is dichtbij: winkels, scholen, openbaar vervoer én het prachtige Hallerbos of het provinciedomein van Huizingen.
Door zowel de locatie, afwerking en energiezuinigheid, is dit appartement perfect geschikt voor eigen bewoning als voor investering.
Het is verplicht een een private binnenstaanplaats bij aan te kopen voor de wagen. Deze prijs schommelt tussen 20.000 en 29.000 EUR. U hebt verder nog de mogelijkheid om een extra binnen staanplaats te kopen voor 24.000 EUR.
Aankoop 6% btw mogelijk onder voorwaarden!
Meer info of een brochure? Mis deze kans niet en maak vandaag nog een afspraak via corentin@igl.immo of +32 (0)2 378 04 44 - www.lindehof.immo
Energie
- EPC Certificaat: In opmaa-k - Nieuwb-ou-w
- E-peil: E0
- Beglazing: Standaard dubbel
Op de kaart

Financieel
| Prijs |
|---|
Bijkomende info
Gebouw
| Bouwjaar | 2027 |
|---|---|
| Staat | Nieuw |
| Bewoonbaar (m²) | 107 |
| Verdieping | 1 |
| Badkamers | 1 |
| Slaapkamers | 2 |
| Verdiepingen | 2 |
| Garages | 0 |
| Parkeerplaatsen | 0 |
| Toiletten | 0 |
Faciliteiten
| Keuken uitrusting | Goed uitgerust |
|---|---|
| Beglazing | Standaard dubbel |
| Septische tank | Nee |
Perceel
| Overstromingsgevoelig | Geen |
|---|---|
| P-score | A |
| G-score | A |
| Totale oppervlakte (m²) | 106 |
| Bebouwde oppervlakte (m²) | 0 |
| Oppervlakte terras (m²) | 19 |
| Oriëntatie tuin | Noordoost |
Vergunning
| Verkavelingsvergunning | Vergunning beschikbaar |
|---|
Uitrusting
| Investeringspand | Nee |
|---|---|
| Parking | Nee |
| Garage | Nee |
| Opslagruimte | Ja |
| Terras | Ja |
| Lift | Ja |
| Rioolaansluiting | Ja |
| Gasaansluiting | Nee |
| Wateraansluiting | Ja |
| Elektriciteitsaansluiting | Ja |
| Internetaansluiting | Ja |
| Telefoonaansluiting | Ja |
| Zonnepanelen | Ja |
| Zonneboiler | Ja |
| Alarm | Nee |
| Videofoon | Nee |
| Grondwaterput | Nee |
Appartementsblok
| Aantal verdiepingen | 2 |
|---|---|
| Lift | Ja |
| Intercom | Nee |
Een pand van
IMMO GROOT LEEUW
Wij zorgen voor uw (t)huis!
Welkom op de website van Immo Groot Leeuw.
Sinds 1979 is Immo Groot Leeuw uw betrouwbare partner voor vastgoed. Of u nu een huurpand zoekt of uw droomwoning wilt (ver)kopen, IGL begeleidt u door het gehele proces met als doel een succesvolle transactie waarbij elke partij tevreden is.
Als lokaal en gemotiveerd familiebedrijf hechten wij veel waarde aan persoonlijk contact en professioneel advies op maat, waardoor wij langdurige relaties met onze klanten onderhouden. Deze vertrouwensband heeft ervoor gezorgd dat wij nu een van de langst bestaande vastgoedkantoren in de regio zijn.
Lindehof - Appartement 1.4
Leer meer over vastgoed
23 March 2026
Op Spotto zoeken als een pro: 10 slimme tips
21 March 2026
Hoeveel kan ik lenen om een huis te kopen?
01 March 2026
Wanneer heb ik een bouwvergunning of omgevingsvergunning nodig?
17 February 2026