Nieuw Virtual tour
Hoeve met schuur en groot weiland
€ 449.000
Een pand van Multimmo
Overzicht
- 187 m² bewoonbaar
- 7670 m² grond
- 3 Slaapkamer(s)
- 1 Badkamer(s)
- 1 Tuin
Beschrijving
Gelijkvloers
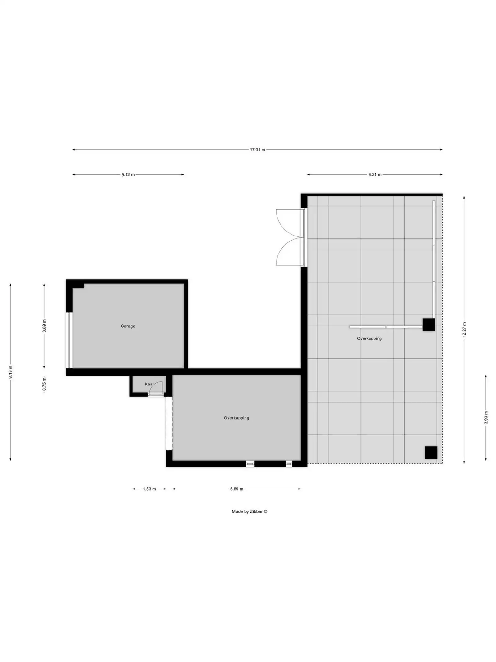
Garage 3,9m x 5,1m = 19,9m²
Inkomhal 2,2m x 3,1m = 6,6m²
Living 4,3m x 5,0m = 21,2m² ( Links )
Living 4,3m x 4,7m = 19,9m² ( Rechts )
Keuken 2,0m x 3,7m = 7,5m²
Berging 1,1m x 1,4m = 1,5m²
Hal 3,3m x 1,3m = 4,4m²
Bijkeuken 2,0m x 2,8m = 5,6m²
Badkamer 2,0m x 2,6m = 5,3m²
Berging 16,5m x 3,9m = 64,2m²
Berging 12,8m x 3,7m = 47,6m²
Eerste verdieping
Overloop 2,1m x 8,2m = 17,4m²
Slaapkamer 4,3m x 4,7m = 20,3m²
Bureau 3,3m x 2,2m = 7,3m²
Slaapkamer 6,9m x 5,2m = 35,7m²
Energie
![]() |
- EPC Certificaat: 20250417-0003580328-RES-1
- Energieverbruik: 536 kWh/m²/jaar
- E-peil: E0
- Beglazing: Standaard dubbel
Let op, de renovatieverplichting in Vlaanderen verplicht de koper om deze woning na aankoop te renoveren tot een betere energieprestatie. Lees er alles over in dit artikel
Extra budget nodig voor je renovatie?
De overheid helpt je dit pand energetisch te renoveren! Hieronder zie je het premiebedrag dat je mogelijks van de overheid krijgt.
Het huidige EPC-label is:

Op de kaart

Downloads
- Overstromingsrapport.pdf
- Bodemattest 10B.pdf
- Bodemattest 10F.pdf
- Bodemattest 12F.pdf
- conformiteitsattest mazouttank.pdf
- EPC.pdf
- Stedenbouw 10B.pdf
- Stedenbouw 10F.pdf
- Stedenbouw 12F.pdf
- Vastgoed info 10B.pdf
- Vastgoedinfo 10F.pdf
- vastgoedinfo 12F.pdf
- Aansluitbaar op aardgas Fluvius.pdf
- asbestattest.pdf
- EK niet conform.pdf
Financieel
| Prijs | |
|---|---|
| Kadastraal inkomen (niet geïndexeerd) | € 844 |
| Kadastraal inkomen (geïndexeerd) | € 0 |
Berekening kosten
Je aankoopkosten? Die heb je snel berekend via de knop hieronder.
Bijkomende info
Gebouw
| Bouwjaar | 1850 |
|---|---|
| Staat | Op te frissen |
| Bouwcertificaat | Nee |
| Bewoonbaar (m²) | 187 |
| Verdieping | 2 |
| Badkamers | 1 |
| Slaapkamers | 3 |
| Verdiepingen | 0 |
| Garages | 0 |
| Parkeerplaatsen | 5 |
| Doucheruimtes | 0 |
| Toiletten | 0 |
Faciliteiten
| Keuken uitrusting | Standaard |
|---|---|
| Materiaal ramenomlijstingen | PVC |
| Beglazing | Standaard dubbel |
| Elektrisch keuringsattest | Nee |
Perceel
| Overstromingsgevoelig | Geen |
|---|---|
| P-score | B |
| G-score | B |
| Voorkeurrecht | Nee |
| Totale oppervlakte (m²) | 7670 |
| Bebouwde oppervlakte (m²) | 0 |
| Tuin oppervlakte (m²) | 0 |
| Oppervlakte terras (m²) | 0 |
Uitrusting
| Investeringspand | Nee |
|---|---|
| Geschikt voor praktijk | Nee |
| Parking | Ja |
| Garage | Nee |
| Thuiskantoor | Nee |
| Kelder | Nee |
| Zolder | Ja |
| Tuin | Ja |
| Terras | Nee |
| Lift | Nee |
| Rioolaansluiting | Nee |
| Gasaansluiting | Nee |
| Wateraansluiting | Nee |
| Elektriciteitsaansluiting | Nee |
| TV aansluiting | Nee |
| Internetaansluiting | Nee |
| Telefoonaansluiting | Nee |
Een pand van
Multimmo
Vastgoedkantoor
Multimmo werd in 2000 opgericht door Olivier Degreef en Filip Derkinderen. Een brede ploeg van medewerkers deelt graag zijn ervaring met u. Dankzij onze sterke verbondenheid met en kennis van de regio voelen we goed aan hoe we uw woning het best in de markt zetten.
Ons ruime aanbod trekt sowieso veel kopers en huurders aan. U vindt ons aanbod terug op www.multimmo.be
MOLENHOFSTRAAT 33 PEPINGEN
Leer meer over vastgoed
Nieuw
01 March 2026
Wanneer heb ik een bouwvergunning of omgevingsvergunning nodig?
17 February 2026
Hoe breng ik een bod uit op een woning?
24 November 2025
Uitgezocht voor jouw gemeente: Hoeveel stijgt de waarde van je woning door een renovatie?
22 October 2025



