Nieuw Virtual tour
PEPINGEN: Uniek, idylisch en energiezuinig vastgoed
€ 799.000
Een pand van Immo-Expert & Co
Overzicht
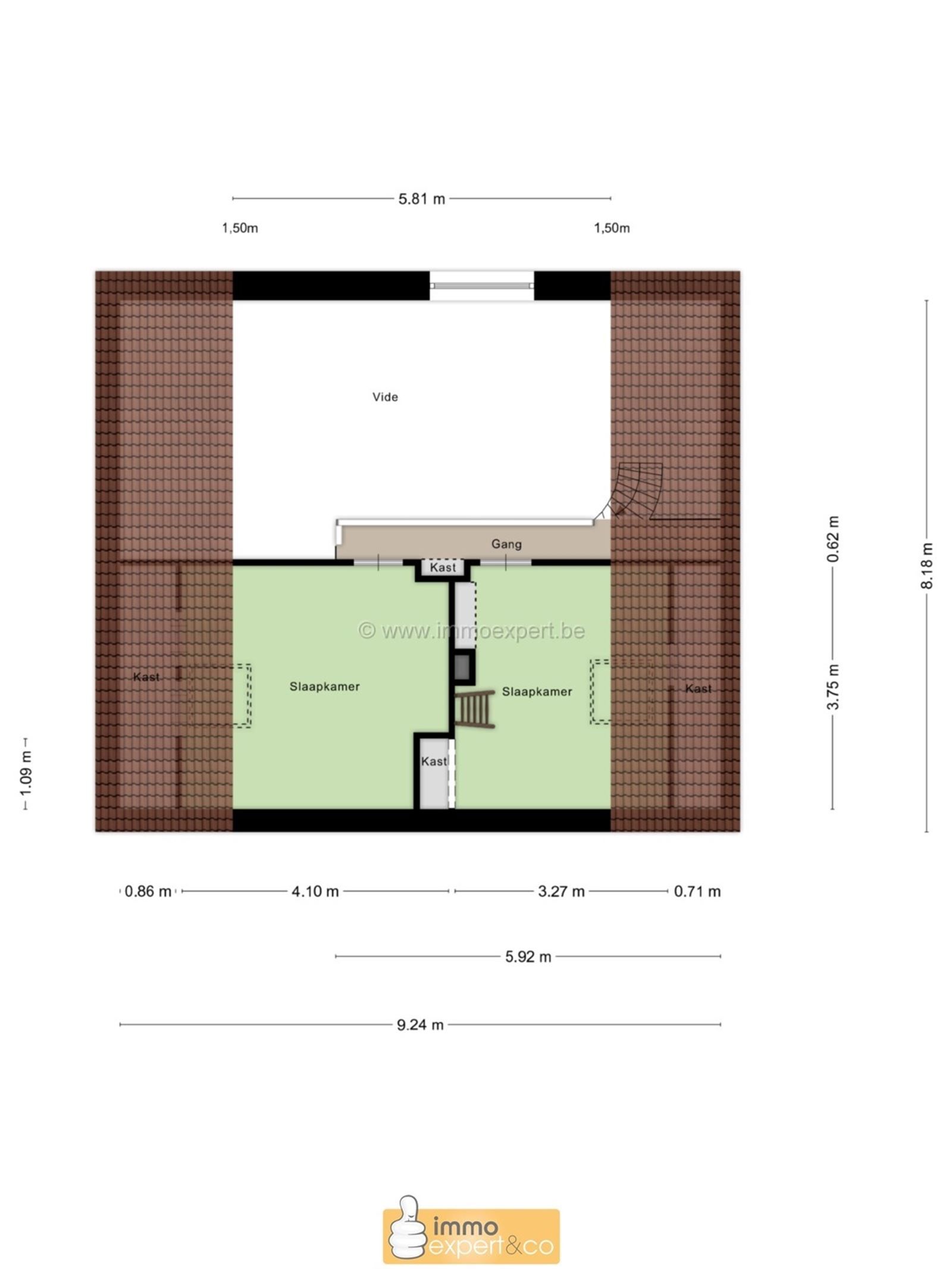
- 432.85 m² bewoonbaar
- 1588 m² grond
- 6 Slaapkamer(s)
- 3 Badkamer(s)
- 4 Toilet(ten)
- 1 Tuin
- 2 Garage(s)
Beschrijving
Oogverblindende prachtwoning in het idyllische Pepingen, waar rust en ruimte elkaar ontmoeten. Deze ruime tweewoonst onder één adres biedt alles wat u zich kunt wensen met zijn indrukwekkende bewoonbare oppervlakte van 432,85 m² op een perceel van maar liefst 1588 m² omgeven in het groen. Opgedeeld in 2 wooneenheden en een aparte ‘tiny’ house, ideaal voor grote en samengestelde gezinnen, of als 2 woonst of mantelzorg, biedt deze woning een totaliteit van zes slaapkamers en drie stijlvolle badkamers. Gerenoveerd met behoud van charme straalt deze woning warmte uit dankzij het behoud van authentieke elementen en de prachtige zichtbare balken. Naast de fijne binnenruimtes biedt deze woning ook volop mogelijkheden buiten met een prachtig uitzicht op de groene omgeving. Geniet van de fraai aangelegde tuin met meerdere terrassen, een zwembad en een vijver, ideaal voor ontspanning en entertainment. Bovendien beschikt het perceel over twee ruime garages die volop opslagruimte bieden of kunnen dienen als hobbyruimte. Deze woning is een uitgelezen kans voor wie op zoek is naar een karaktervolle woning met moderne comfort in een schilderachtige omgeving, perfect gelegen nabij uitgestrekte natuurgebieden en toch dicht bij alle voorzieningen. Ook ideaal om een B&B uit te baten! Superzuinige EPC type B | 116 kWh/m² dankzij de doordachte renovaties met moderne technieken. Driedubbele beglazing aanwezig. Vernieuwde daken geïsoleerd en centrale verwarming met gigantische en ecologische pellet brander alsook warmwaterpompboilers. Aparte sturingen voor beide woonentiteiten. Dus voorzien van alle toeters en bellen. Vrij van enig asbest! Zien is verliefd worden. Mis deze unieke opportuniteit niet om eigenaar te worden van een ware droomwoning in Pepingen! Neem alvast een kijkje: https://youtu.be/gAOXjhpQnh0
Energie
![]() |
- EPC Certificaat: 20250813-0003644890-RES-1
- Energieverbruik: 116 kWh/m²/jaar
- E-peil: E0
- Beglazing: Hoog efficient driedubbel
Op de kaart

Financieel
Prijs | |
---|---|
Kadastraal inkomen (niet geïndexeerd) | € 722 |
Kadastraal inkomen (geïndexeerd) | € 1.621 |
Berekening kosten
Je aankoopkosten? Die heb je snel berekent via de knop hieronder.
Bijkomende info
Gebouw
Bouwjaar | 1918 |
---|---|
Staat | Zo goed als nieuw |
Bouwcertificaat | Nee |
Bewoonbaar (m²) | 432.85 |
Verdieping | 0 |
Badkamers | 3 |
Slaapkamers | 6 |
Verdiepingen | 4 |
Garages | 2 |
Parkeerplaatsen | 5 |
Doucheruimtes | 0 |
Toiletten | 4 |
Faciliteiten
Keuken uitrusting | Luxueus uitgerust |
---|---|
Materiaal ramenomlijstingen | PVC |
Beglazing | Hoog efficient driedubbel |
Elektrisch keuringsattest | Nee |
Perceel
Overstromingsgevoelig | Geen |
---|---|
P-score | A |
G-score | A |
Voorkeurrecht | Nee |
Totale oppervlakte (m²) | 1588 |
Bebouwde oppervlakte (m²) | 0 |
Tuin oppervlakte (m²) | 1101 |
Oppervlakte terras (m²) | 84 |
Oriëntatie tuin | ZuidOost |
Vergunning
Vergunning | Vergunning beschikbaar |
---|---|
Verkavelingsvergunning | Geen beschikbaar |
Type gebied | Landelijk |
Uitrusting
Investeringspand | Nee |
---|---|
Geschikt voor praktijk | Nee |
Parking | Ja |
Garage | Ja |
Thuiskantoor | Nee |
Kelder | Ja |
Zolder | Ja |
Tuin | Ja |
Terras | Ja |
Lift | Nee |
Rioolaansluiting | Nee |
Gasaansluiting | Nee |
Wateraansluiting | Ja |
Elektriciteitsaansluiting | Ja |
TV aansluiting | Ja |
Internetaansluiting | Ja |
Telefoonaansluiting | Ja |
Een pand van
Immo-Expert & Co
Uw on(t)roerend goed specialist
Immo Expert & Co is reeds 25 jaar een begrip in Ternat en heeft nu ook een nieuw thuiskantoor geopend in Gooik.
Klanten vertrouwen op ons omwille van onze ongeëvenaarde persoonlijke service en discretie.
Wij doen alles van A tot Z voor de verkoop en verhuur van uw pand.
Hierbij maken we gebruik van de nieuwste digitale technieken om alles in goede banen te leiden. Zo zijn wij het enige kantoor in de ruime regio dat een 3D virtuele toer aanbiedt voor elk pand in de portefeuille. Kandidaat kopers of huurders wandelen als het ware meteen rond in hun droomwoning!
Wenst u een vrijblijvende schatting van uw vastgoed of heeft u een vraag omtrent verkoop of verhuur , contacteer ons dan vandaag nog op 02/5810980 of mail ons op info@immoexpert.be.
BUVINGEN 4 PEPINGEN
Leer meer over vastgoed
11 June 2025
Huis kopen met bouwovertreding? Dit moet je weten
11 May 2025
Renoveren? Vraag je Mijn VerbouwPremie aan
22 April 2025
Je allereerste renovatieproject selecteren én budgetteren: met de praktische hulp van Spotto
17 February 2025