Jouw zoektocht
Jouw scoretabel voor dit pand
Aan het laden...
Jouw geplande bezichtigingen
Aan het laden...
Overzicht
- 175 m² bewoonbaar
- 516 m² grond
- 3 Slaapkamer(s)
- 1 Badkamer(s)
- 1 Tuin
Beschrijving
Deze woning bevindt zich op een steenworp van het centrum van Sint-Ulriks-Kapelle, een charmant dorpje doordrenkt van natuurlijke schoonheid. De woning wordt volledig op maat én sleutel-op-de-deur gebouwd waarbij de bouwstijl, indeling en zelfs de keuze van materialen en kleuren worden aangepast aan uw wensen, alles onder professionele begeleiding.
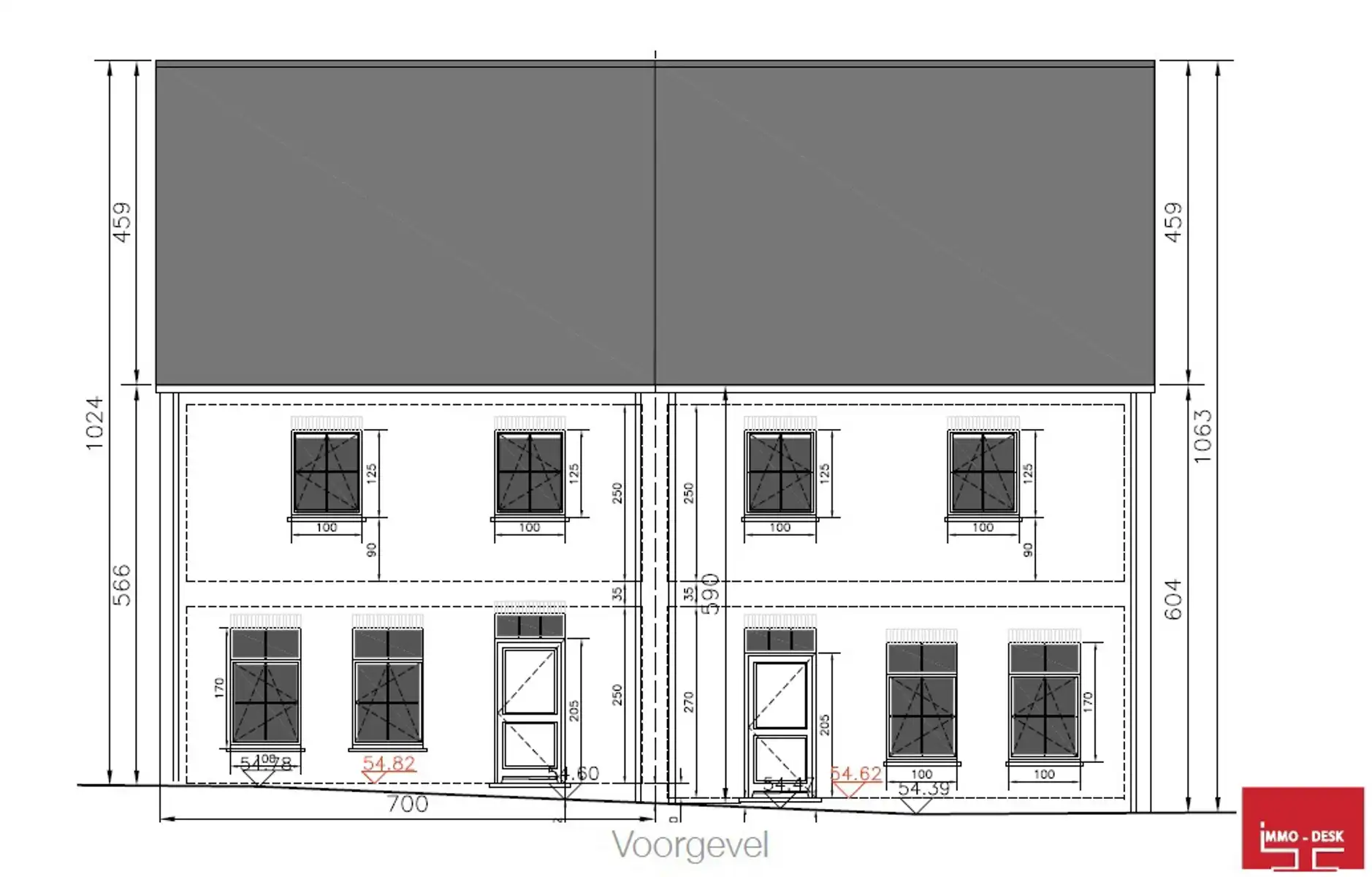
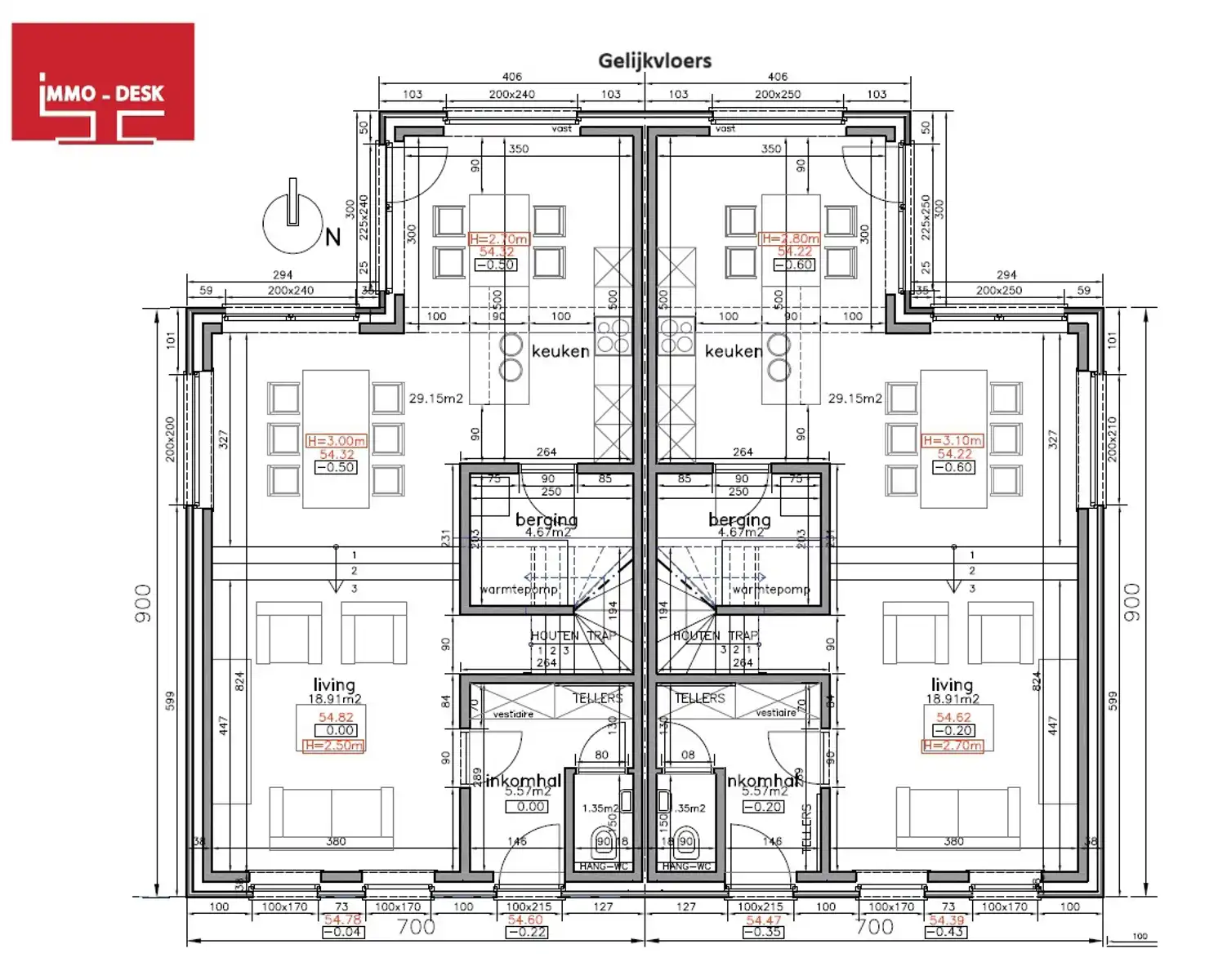
De voorbeeldwoning bestaat uit een ruime inkomhal, een open keuken, een leefruimte, een berging en een gastentoilet op de begane grond. Op de eerste verdieping bevindt zich een nachthal, drie slaapkamers, een toilet en een badkamer. De zolderverdieping biedt een volwaardige ruimte. Buiten is er een aangename tuin en voldoende ruimte voor een parkeerplaats.
Omgeven door weelderige velden en groene landschappen, biedt deze omgeving een betoverende setting voor natuurliefhebbers. Brussel ligt slechts op 11 km afstand. De E40 en de E19 zijn binnen 8 minuten bereikbaar met de auto, terwijl gebruikers van het openbaar vervoer een bushalte vinden op slechts 100 meter afstand.
De vermelde prijs is exclusief registratierechten op de grond en BTW op de constructiewaarde. Deze prijs geldt voor de bouw volgens het huidige plan en conform de afwerking en materialen zoals gespecificeerd in het lastenboek. Dit omvat onder andere een volledig ingerichte keuken, badkamer, toiletten, centrale verwarming, zonnepanelen, driedubbele beglazing, warmtepomp en vloerverwarming op het gelijkvloers en in de badkamer.
De voorbeeldwoning bestaat uit een ruime inkomhal, een open keuken, een leefruimte, een berging en een gastentoilet op de begane grond. Op de eerste verdieping bevindt zich een nachthal, drie slaapkamers, een toilet en een badkamer. De zolderverdieping biedt een volwaardige ruimte. Buiten is er een aangename tuin en voldoende ruimte voor een parkeerplaats.
Omgeven door weelderige velden en groene landschappen, biedt deze omgeving een betoverende setting voor natuurliefhebbers. Brussel ligt slechts op 11 km afstand. De E40 en de E19 zijn binnen 8 minuten bereikbaar met de auto, terwijl gebruikers van het openbaar vervoer een bushalte vinden op slechts 100 meter afstand.
De vermelde prijs is exclusief registratierechten op de grond en BTW op de constructiewaarde. Deze prijs geldt voor de bouw volgens het huidige plan en conform de afwerking en materialen zoals gespecificeerd in het lastenboek. Dit omvat onder andere een volledig ingerichte keuken, badkamer, toiletten, centrale verwarming, zonnepanelen, driedubbele beglazing, warmtepomp en vloerverwarming op het gelijkvloers en in de badkamer.
Energie
![]() |
Op de kaart

Financieel
| Prijs |
|---|
Bijkomende info
Gebouw
| Bouwjaar | 2026 |
|---|---|
| Bewoonbaar (m²) | 175 |
| Gevels | 3 |
| Badkamers | 1 |
| Slaapkamers | 3 |
| Parkeerplaatsen | 0 |
Faciliteiten
| Type vloer |
|---|
Perceel
| Overstromingsgevoelig | Geen |
|---|---|
| P-score | A |
| Totale oppervlakte (m²) | 516 |
| Tuin oppervlakte (m²) | 516 |
Vergunning
| Vergunning | Geen beschikbaar |
|---|---|
| Verkavelingsvergunning | Vergunning beschikbaar |
| Bouwovertreding | Geen |
| Bouwovertreding dagvaardiging | Geen |
Uitrusting
| Parking | Nee |
|---|---|
| Garage | Nee |
| Tuin | Ja |
| Terras | Nee |
Een pand van
Immo-Desk
Welkom bij Immo-Desk!
Wij zijn gespecialiseerd in de verkoop en verhuur van bestaande woningen en appartementen en de verkoop van nieuwbouwprojecten en projectgronden. Je kan bij ons ook terecht voor een gratis waardebepaling van je eigendom.
Wat ook je plannen zijn, als erkend makelaar streven we naar de hoogste klantentevredenheid. We kennen het juridisch kader en geven graag een antwoord op al jouw vragen. Je verkoopt jouw woning of zoekt een nieuwe woonst? Elke klant kan op onze professionele hulp rekenen. Contacteer ons gerust op 0498/91 12 34.
7111697
Leer meer over vastgoed
23 March 2026
Op Spotto zoeken als een pro: 10 slimme tips
21 March 2026
Hoeveel kan ik lenen om een huis te kopen?
01 March 2026
Wanneer heb ik een bouwvergunning of omgevingsvergunning nodig?
17 February 2026
