Overzicht
- 108 m² bewoonbaar
- 139 m² grond
- 2 Slaapkamer(s)
- 1 Badkamer(s)
- 1 Toilet(ten)
- 1 Tuin
Beschrijving
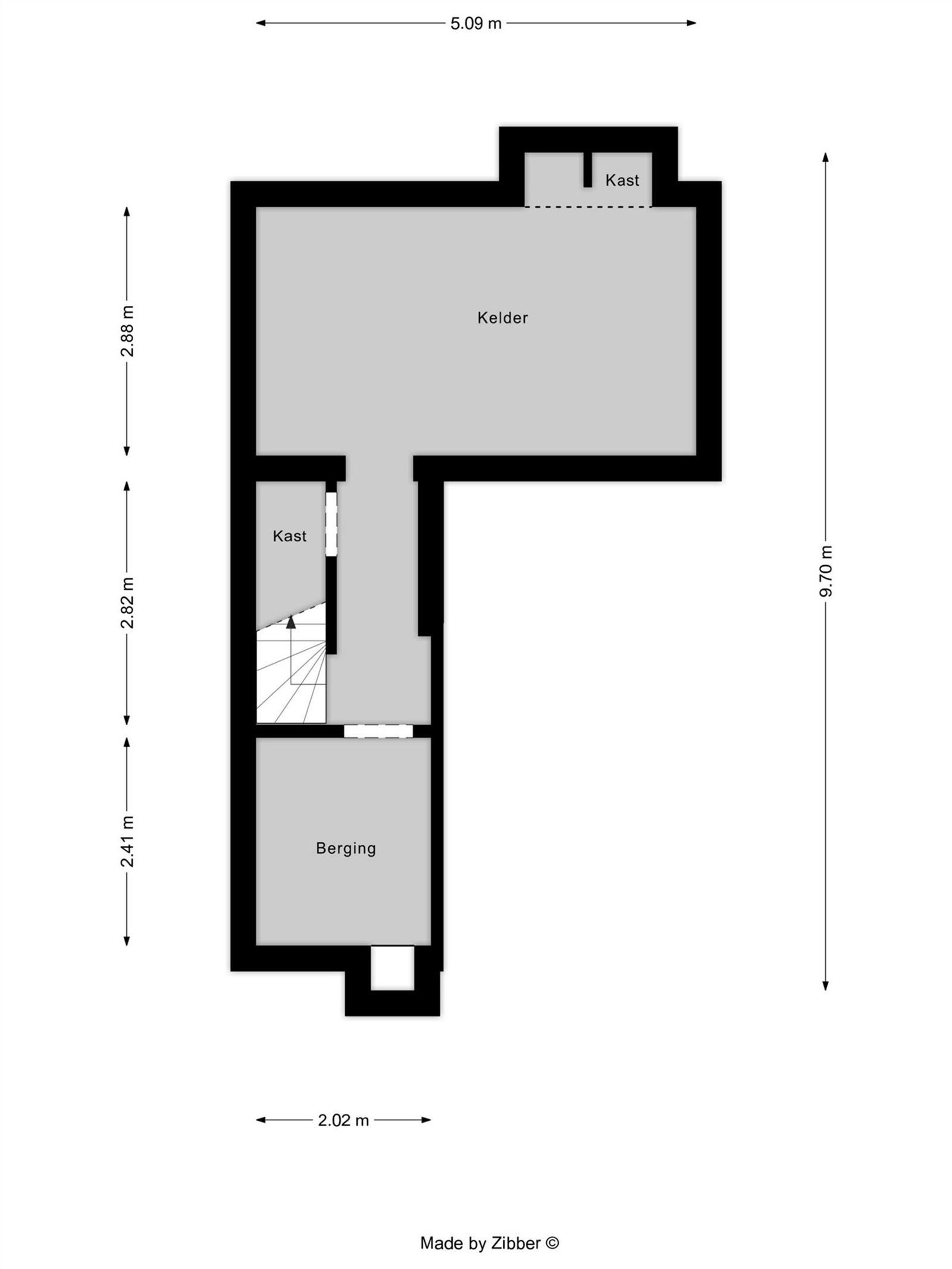
Kelder
Kelder 2,4m x 2,0m = 4,9m² ( berging kelder )
Kelder 2,8m x 2,0m = 5,7m² ( Kelder Hal + Kast )
Kelder 2,9m x 5,1m = 14,7m²
Gelijkvloers
Garage 5,5m x 3,2m = 17,5m²
Inkomhal 1,5m x 2,2m = 3,2m²
Hal 2,8m x 1,2m = 3,3m²
WC 1,0m x ,9m = ,9m²
Living 3,0m x 5,2m = 15,5m²
Keuken 1,9m x 1,9m = 3,6m²
Veranda 2,1m x 3,1m = 6,3m²
Eerste verdieping
Nachthal 3,6m x 1,9m = 6,8m²
Slaapkamer 5,5m x 2,8m = 15,4m²
Slaapkamer 3,0m x 5,2m = 15,5m²
Badkamer 1,8m x 2,3m = 4,0m²
Tweede verdieping
Zolder 5,2m x 5,2m = 27,0m²
Energie
![]() |
- EPC Certificaat: 20251002-0003700013-RES-1
- Energieverbruik: 569 kWh/m²/jaar
- E-peil: E569
- Verwarming: Gas
- Beglazing: Enkel
Let op, de renovatieverplichting in Vlaanderen verplicht de koper om deze woning na aankoop te renoveren tot een betere energieprestatie. Lees er alles over in dit artikel
Extra budget nodig voor je renovatie?
De overheid helpt je dit pand energetisch te renoveren! Hieronder zie je het premiebedrag dat je mogelijks van de overheid krijgt.
Het huidige EPC-label is:

Op de kaart

Downloads
- Plan Eerste_Verdieping_Godetialaan_5_Dilbeek
- Plan Gelijkvloers_Godetialaan_5_Dilbeek
- Plan Kelder_Godetialaan_5_Dilbeek
- Plan Tweede_Verdieping_Godetialaan_5_Dilbeek
- Plan Zolder_Godetialaan_5_Dilbeek
- Asbestinventarisattest Godetialaan 5, 1702 Dilbeek
- Bodemattest
- EK_Godetialaan 5_dilbeek_169822
- EPC Godetialaan 5, Dilbeek
- VIP.pdf
Financieel
Prijs | |
---|---|
Kadastraal inkomen (niet geïndexeerd) | € 857 |
Kadastraal inkomen (geïndexeerd) | € 0 |
Berekening kosten
Je aankoopkosten? Die heb je snel berekent via de knop hieronder.
Bijkomende info
Gebouw
Bouwjaar | 1980 |
---|---|
Staat | Op te frissen |
Bouwcertificaat | Nee |
Bewoonbaar (m²) | 108 |
Verdieping | 3 |
Gevelbreedte | 5.4 |
Badkamers | 1 |
Slaapkamers | 2 |
Verdiepingen | 0 |
Garages | 0 |
Parkeerplaatsen | 2 |
Doucheruimtes | 0 |
Toiletten | 1 |
Faciliteiten
Keuken uitrusting | Basis |
---|---|
Beglazing | Enkel |
Brandstof primaire verwarming | Gas |
Elektrisch keuringsattest | Nee |
Perceel
Diepte (m) | 25 |
---|---|
Breedte (m) | 5 |
Overstromingsgevoelig | Geen |
Voorkeurrecht | Ja |
Totale oppervlakte (m²) | 139 |
Bebouwde oppervlakte (m²) | 64 |
Tuin oppervlakte (m²) | 40 |
Oppervlakte terras (m²) | 0 |
Vergunning
Vergunning | Aanvraag ingediend |
---|---|
Verkavelingsvergunning | Aanvraag ingediend |
Uitrusting
Investeringspand | Nee |
---|---|
Geschikt voor praktijk | Nee |
Parking | Ja |
Garage | Nee |
Thuiskantoor | Nee |
Kelder | Ja |
Zolder | Ja |
Tuin | Ja |
Terras | Nee |
Lift | Nee |
Rioolaansluiting | Ja |
Gasaansluiting | Ja |
Wateraansluiting | Ja |
Elektriciteitsaansluiting | Ja |
TV aansluiting | Nee |
Internetaansluiting | Nee |
Telefoonaansluiting | Ja |
Een pand van
Multimmo
Vastgoedkantoor
Multimmo werd in 2000 opgericht door Olivier Degreef en Filip Derkinderen. Een brede ploeg van medewerkers deelt graag zijn ervaring met u. Dankzij onze sterke verbondenheid met en kennis van de regio voelen we goed aan hoe we uw woning het best in de markt zetten.
Ons ruime aanbod trekt sowieso veel kopers en huurders aan. U vindt ons aanbod terug op www.multimmo.be
GODETIALAAN 5 DILBEEK
Leer meer over vastgoed
11 June 2025
Huis kopen met bouwovertreding? Dit moet je weten
11 May 2025
Renoveren? Vraag je Mijn VerbouwPremie aan
22 April 2025
Je allereerste renovatieproject selecteren én budgetteren: met de praktische hulp van Spotto
17 February 2025