Bouwgrond voor open bebouwing op rustige ligging nabij tal van faciliteiten!
€ 298.000
Een pand van Structura
Favoriet
Jouw zoektocht
Jouw scoretabel voor dit pand
Aan het laden...
Jouw geplande bezichtigingen
Aan het laden...
Overzicht
- 864 m² grond
- 1 Tuin
Beschrijving
Bouwgrond voor open bebouwing in rustige straat nabij centrum Zellik te koop.
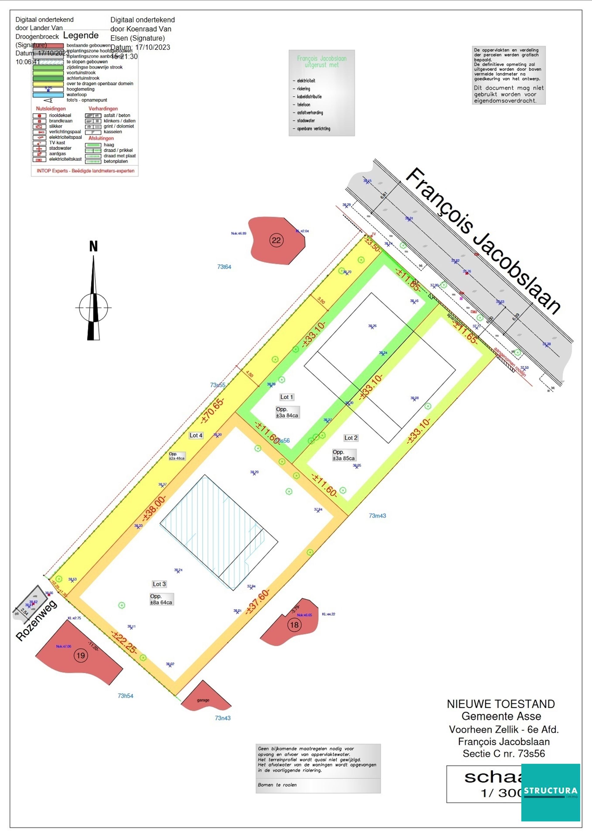
Het betreft een perceel van 8a 64ca met een breedte van 38m. (bouwgrond aangeduid in het oranje op plan)
Gelegen in verkaveling met volgende voorschriften:
De bouwdiepte bedraagt maximaal 15.00m op het gelijkvloers en 12.00m op de verdieping voor het hoofdgebouw. De bebouwing wordt ingeplant op 3.00m achter de nieuwe rooilijn.
De kroonlijsthoogte bedraagt 5.00 (+/-1.00)m. Wanneer er met een plat dak wordt gewerkt is de kroonlijsthoogte max. 6.50m. De aanbouw heeft een maximale hoogte van 3.50m
De helling der dakvlakken ligt tussen 25° en 40°. Platte daken zijn eveneens toegelaten. De dakvorm is vrij te kiezen binnen het minimale en maximale bouwvolume.
Maatregelen opgenomen in het Maatregelenregister: nee.
Wenst u meer informatie via telefoon of op kantoor? Contacteer ons via info@structura of 02/460 80 46.
Het betreft een perceel van 8a 64ca met een breedte van 38m. (bouwgrond aangeduid in het oranje op plan)
Gelegen in verkaveling met volgende voorschriften:
De bouwdiepte bedraagt maximaal 15.00m op het gelijkvloers en 12.00m op de verdieping voor het hoofdgebouw. De bebouwing wordt ingeplant op 3.00m achter de nieuwe rooilijn.
De kroonlijsthoogte bedraagt 5.00 (+/-1.00)m. Wanneer er met een plat dak wordt gewerkt is de kroonlijsthoogte max. 6.50m. De aanbouw heeft een maximale hoogte van 3.50m
De helling der dakvlakken ligt tussen 25° en 40°. Platte daken zijn eveneens toegelaten. De dakvorm is vrij te kiezen binnen het minimale en maximale bouwvolume.
Maatregelen opgenomen in het Maatregelenregister: nee.
Wenst u meer informatie via telefoon of op kantoor? Contacteer ons via info@structura of 02/460 80 46.
Energie
- E-peil: E0
- Beglazing: Onbekend
Op de kaart

Financieel
| Prijs | |
|---|---|
| Kadastraal inkomen (niet geïndexeerd) | € 0 |
| Kadastraal inkomen (geïndexeerd) | € 0 |
Berekening kosten
Je aankoopkosten? Die heb je snel berekend via de knop hieronder.
Bijkomende info
Gebouw
| Bouwcertificaat | Nee |
|---|
Perceel
| Diepte (m) | 22 |
|---|---|
| Breedte (m) | 38 |
| Overstromingsgevoelig | Geen |
| P-score | A |
| Voorkeurrecht | Ja |
| Totale oppervlakte (m²) | 864 |
| Oriëntatie tuin | Zuidwest |
Vergunning
| Vergunning | Geen beschikbaar |
|---|---|
| Verkavelingsvergunning | Vergunning beschikbaar |
Uitrusting
| Investeringspand | Nee |
|---|---|
| Rioolaansluiting | Nee |
| Gasaansluiting | Nee |
| Wateraansluiting | Nee |
| Elektriciteitsaansluiting | Nee |
| TV aansluiting | Nee |
| Internetaansluiting | Nee |
| Telefoonaansluiting | Nee |
Een pand van
Structura
Jouw regio, ons werkveld.
Als lokale vastgoedexpert kunnen we de regio door en door.
Structura heeft een netwerk van kantoren in Wemmel, Merchtem, Opwijk, Asse, Meise en Aalst.
Daardoor hebben we steeds de vinger aan de pols in jouw buurt en kunnen we perfect inspelen op de wensen en noden van kopers, huurders en verkopers.
FRANÇOIS JACOBSLAAN 20 ZELLIK
Leer meer over vastgoed
23 March 2026
Op Spotto zoeken als een pro: 10 slimme tips
21 March 2026
Hoeveel kan ik lenen om een huis te kopen?
01 March 2026
Wanneer heb ik een bouwvergunning of omgevingsvergunning nodig?
17 February 2026