Nieuw
UNIEKE woning type halfopen pal in hartje TERNAT
€ 349.000
Een pand van Immo-Expert & Co
Overzicht
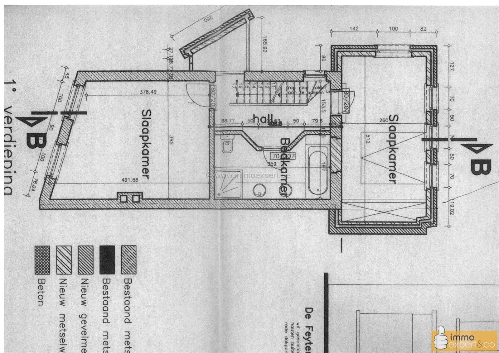
- 145.85 m² bewoonbaar
- 132 m² grond
- 3 Slaapkamer(s)
- 1 Badkamer(s)
- 2 Toilet(ten)
- 1 Tuin
Beschrijving
Ontdek dit uitzonderlijke en karaktervol pand in hartje Ternat. Deze halfopen bebouwing bevindt zich op 1are 32ca en is voorzin van alle modern comfort en een bijzondere warme stijl! De woning omvat een inkomhal, een living met eet- & zithoek, een lumineuze geïnstalleerde keuken met zicht op de tuin, een wc op het gelijkvloers, een buitenberging, een badkamer met ligbad & douche & wc, 3 slaapkamers waarvan één met mezzanine, een bureau en een zolderberging & kelder aanwezig. Deels voorzien van een recente geïsoleerde crépi gevel, centrale verwarming op aardgas en conform gekeurde elektrische installatie + zonnepanelen. Grote renovatie is gebeurd in 1998 met eigentijds design dat ruimte en licht optimaal benut. Eventuele mogelijkheid tot het plaatsen van een carport. Geweldige ligging aan de grote Markt van Ternat. Werkelijk alles is stapvoets bereikbaar (scholen, sportcentrum, handelaars, supermarkten, bus-& treinvervoer…) Dit pand biedt een schitterende basis voor wie op zoek is naar ruimte, karakter en centrale ligging & modern comfort. Deze combinatie maakt dit tot een gouden opportuniteit.
Energie
![]() |
- EPC Certificaat: 20220728-0002647303-RES-1
- Energieverbruik: 365 kWh/m²/jaar
- E-peil: E0
- Verwarming: Gas
- Beglazing: Standaard dubbel
Extra budget nodig voor je renovatie?
De overheid helpt je dit pand energetisch te renoveren! Hieronder zie je het premiebedrag dat je mogelijks van de overheid krijgt.
Het huidige EPC-label is:

Op de kaart

Financieel
| Prijs | |
|---|---|
| Kadastraal inkomen (niet geïndexeerd) | € 629 |
| Kadastraal inkomen (geïndexeerd) | € 1.412 |
Berekening kosten
Je aankoopkosten? Die heb je snel berekent via de knop hieronder.
Bijkomende info
Gebouw
| Bouwjaar | 1933 |
|---|---|
| Staat | Zo goed als nieuw |
| Bouwcertificaat | Nee |
| Bewoonbaar (m²) | 145.85 |
| Verdieping | 0 |
| Gevelbreedte | 4.5 |
| Badkamers | 1 |
| Slaapkamers | 3 |
| Verdiepingen | 4 |
| Garages | 0 |
| Parkeerplaatsen | 0 |
| Doucheruimtes | 0 |
| Toiletten | 2 |
Faciliteiten
| Keuken uitrusting | Luxueus uitgerust |
|---|---|
| Materiaal ramenomlijstingen | Aluminium |
| Beglazing | Standaard dubbel |
| Brandstof primaire verwarming | Gas |
| Elektrisch keuringsattest | Ja |
Perceel
| Overstromingsgevoelig | Geen |
|---|---|
| P-score | C |
| G-score | C |
| Voorkeurrecht | Nee |
| Totale oppervlakte (m²) | 132 |
| Bebouwde oppervlakte (m²) | 0 |
| Tuin oppervlakte (m²) | 59 |
| Oppervlakte terras (m²) | 22 |
| Oriëntatie tuin | Zuidwest |
Vergunning
| Vergunning | Aanvraag ingediend |
|---|---|
| Verkavelingsvergunning | Aanvraag ingediend |
Uitrusting
| Investeringspand | Nee |
|---|---|
| Geschikt voor praktijk | Ja |
| Parking | Nee |
| Garage | Nee |
| Thuiskantoor | Ja |
| Kelder | Ja |
| Zolder | Ja |
| Tuin | Ja |
| Terras | Ja |
| Lift | Nee |
| Rioolaansluiting | Ja |
| Gasaansluiting | Ja |
| Wateraansluiting | Ja |
| Elektriciteitsaansluiting | Ja |
| TV aansluiting | Ja |
| Internetaansluiting | Ja |
| Telefoonaansluiting | Ja |
Een pand van
Immo-Expert & Co
Uw on(t)roerend goed specialist
Immo Expert & Co is reeds 25 jaar een begrip in Ternat en heeft nu ook een nieuw thuiskantoor geopend in Gooik.
Klanten vertrouwen op ons omwille van onze ongeëvenaarde persoonlijke service en discretie.
Wij doen alles van A tot Z voor de verkoop en verhuur van uw pand.
Hierbij maken we gebruik van de nieuwste digitale technieken om alles in goede banen te leiden. Zo zijn wij het enige kantoor in de ruime regio dat een 3D virtuele toer aanbiedt voor elk pand in de portefeuille. Kandidaat kopers of huurders wandelen als het ware meteen rond in hun droomwoning!
Wenst u een vrijblijvende schatting van uw vastgoed of heeft u een vraag omtrent verkoop of verhuur , contacteer ons dan vandaag nog op 02/5810980 of mail ons op info@immoexpert.be.
AUGUST DE FEYTERSTRAAT 2 TERNAT
Leer meer over vastgoed
24 November 2025
Uitgezocht voor jouw gemeente: Hoeveel stijgt de waarde van je woning door een renovatie?
22 October 2025
Hoeveel kan ik lenen om een huis te kopen?
11 June 2025
Huis kopen met bouwovertreding? Dit moet je weten
11 May 2025


