Goed gelegen bouwgrond voor open bebouwing in Mazenzele
€ 298.000
Een pand van Structura
Favoriet
Jouw zoektocht
Jouw scoretabel voor dit pand
Aan het laden...
Jouw geplande bezichtigingen
Aan het laden...
Overzicht
- 1280 m² grond
- 1 Tuin
Beschrijving
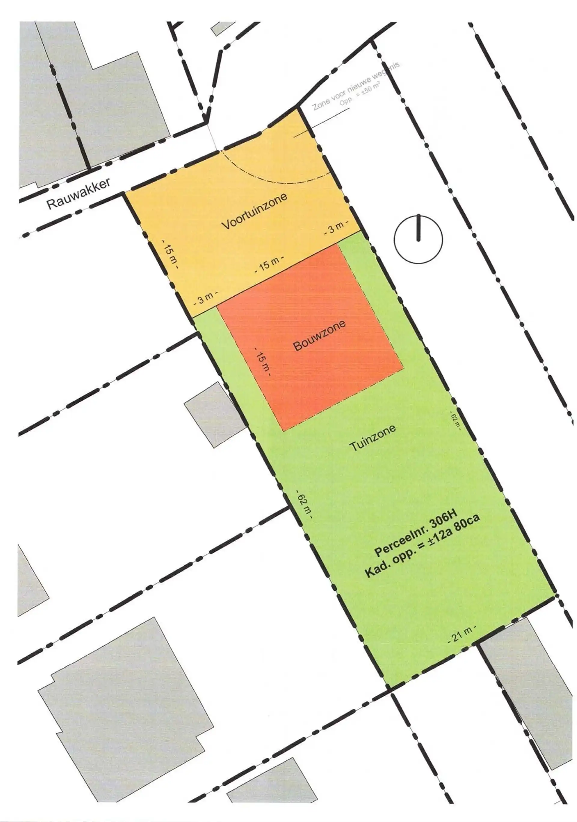
Bouw uw droomwoning in het groene Mazenzele (Opwijk)!
In het landelijke en bijzonder rustige Mazenzele stellen wij u met trots deze uitstekend gelegen bouwgrond voor open bebouwing voor.
Met een royale oppervlakte van 12a 80ca en een perceelbreedte van maar liefst 20 meter, geniet u hier van alle ruimte om een stijlvolle, lichtrijke woning te realiseren volledig naar uw smaak.
Extra troef? Dit perceel is het laatste in een doodlopende straat (enkel plaatselijk verkeer). Dat betekent: maximale rust, minimale passage en een veilige, aangename woonomgeving — ideaal voor gezinnen én wie houdt van privacy.
Bouwmogelijkheden
Op dit perceel gelden de standaard stedenbouwkundige voorschriften, die u ruime mogelijkheden bieden:
* Maximale bouwdiepte: 15 m op het gelijkvloers en 12 m op de verdieping
* Maximale kroonlijsthoogte: 6,40 m en dakhelling tot 45°
* Zijdelingse bouwvrije stroken van minstens 3 m
* Een achtertuinzone van minstens 10 m diep
Hierdoor kan u een comfortabele en hedendaagse open bebouwing realiseren met een mooie tuinzone waar u in alle rust kan genieten.
Rustig wonen met vlotte bereikbaarheid
Mazenzele combineert het beste van twee werelden:
een groene, landelijke omgeving met tegelijk een vlotte verbinding naar Opwijk, Asse en Brussel. Winkels, scholen en openbaar vervoer bevinden zich op korte afstand.
Maatregelen opgenomen in het Maatregelenregister: nee.
Kortom, een unieke kans om uw woonproject te realiseren op een toplocatie waar rust, ruimte en bereikbaarheid perfect samenkomen.
Meer info of een bezoek ter plaatse?
Contacteer Structura via 02/460.80.46 of info@structura.be
In het landelijke en bijzonder rustige Mazenzele stellen wij u met trots deze uitstekend gelegen bouwgrond voor open bebouwing voor.
Met een royale oppervlakte van 12a 80ca en een perceelbreedte van maar liefst 20 meter, geniet u hier van alle ruimte om een stijlvolle, lichtrijke woning te realiseren volledig naar uw smaak.
Extra troef? Dit perceel is het laatste in een doodlopende straat (enkel plaatselijk verkeer). Dat betekent: maximale rust, minimale passage en een veilige, aangename woonomgeving — ideaal voor gezinnen én wie houdt van privacy.
Bouwmogelijkheden
Op dit perceel gelden de standaard stedenbouwkundige voorschriften, die u ruime mogelijkheden bieden:
* Maximale bouwdiepte: 15 m op het gelijkvloers en 12 m op de verdieping
* Maximale kroonlijsthoogte: 6,40 m en dakhelling tot 45°
* Zijdelingse bouwvrije stroken van minstens 3 m
* Een achtertuinzone van minstens 10 m diep
Hierdoor kan u een comfortabele en hedendaagse open bebouwing realiseren met een mooie tuinzone waar u in alle rust kan genieten.
Rustig wonen met vlotte bereikbaarheid
Mazenzele combineert het beste van twee werelden:
een groene, landelijke omgeving met tegelijk een vlotte verbinding naar Opwijk, Asse en Brussel. Winkels, scholen en openbaar vervoer bevinden zich op korte afstand.
Maatregelen opgenomen in het Maatregelenregister: nee.
Kortom, een unieke kans om uw woonproject te realiseren op een toplocatie waar rust, ruimte en bereikbaarheid perfect samenkomen.
Meer info of een bezoek ter plaatse?
Contacteer Structura via 02/460.80.46 of info@structura.be
Energie
- E-peil: E0
- Beglazing: Onbekend
Op de kaart

Financieel
| Prijs | |
|---|---|
| Kadastraal inkomen (niet geïndexeerd) | € 8 |
| Kadastraal inkomen (geïndexeerd) | € 0 |
Berekening kosten
Je aankoopkosten? Die heb je snel berekend via de knop hieronder.
Bijkomende info
Gebouw
| Bouwcertificaat | Nee |
|---|
Perceel
| Diepte (m) | 58 |
|---|---|
| Breedte (m) | 20 |
| Overstromingsgevoelig | Geen |
| P-score | C |
| Voorkeurrecht | Nee |
| Totale oppervlakte (m²) | 1280 |
| Oriëntatie tuin | ZuidOost |
Vergunning
| Vergunning | Geen beschikbaar |
|---|---|
| Verkavelingsvergunning | Geen beschikbaar |
Uitrusting
| Investeringspand | Nee |
|---|---|
| Rioolaansluiting | Nee |
| Gasaansluiting | Nee |
| Wateraansluiting | Nee |
| Elektriciteitsaansluiting | Nee |
| TV aansluiting | Nee |
| Internetaansluiting | Nee |
| Telefoonaansluiting | Nee |
Een pand van
Structura
Jouw regio, ons werkveld.
Als lokale vastgoedexpert kunnen we de regio door en door.
Structura heeft een netwerk van kantoren in Wemmel, Merchtem, Opwijk, Asse, Meise en Aalst.
Daardoor hebben we steeds de vinger aan de pols in jouw buurt en kunnen we perfect inspelen op de wensen en noden van kopers, huurders en verkopers.
RAUWAKKER MAZENZELE
Leer meer over vastgoed
24 April 2026
Duurzaam gelegen woning? Check je Mobiscore
23 March 2026
Op Spotto zoeken als een pro: 10 slimme tips
21 March 2026
Hoeveel kan ik lenen om een huis te kopen?
01 March 2026