Laatste appartement te koop - 6 % BTW mogelijk
€ 385.000
Een pand van bv immo Talenco
Jouw zoektocht
Overzicht
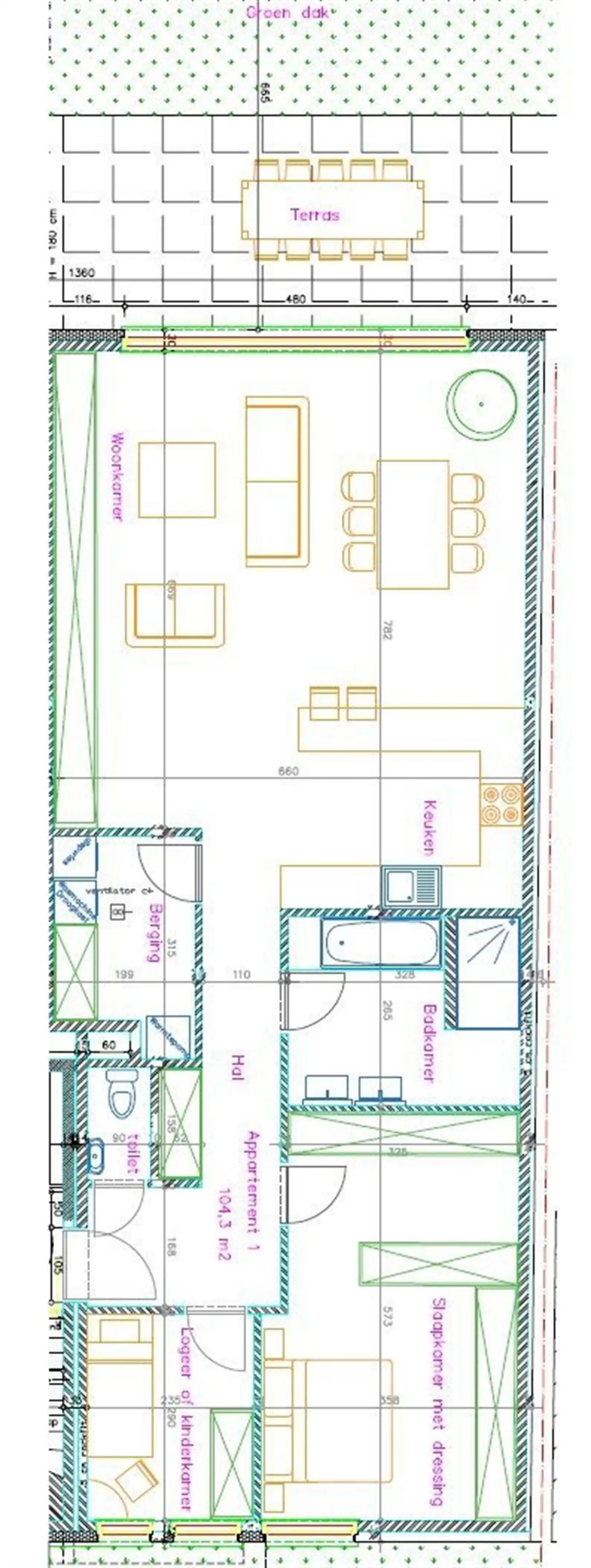
- 117 m² bewoonbaar
- 2 Slaapkamer(s)
- 1 Badkamer(s)
- 1 Toilet(ten)
Beschrijving
immo Talenco verkoopt te Gasthuisstraat 43- 1745 Opwijk dit ideaal gelegen nieuwbouwappartement dat zich bevindt op de gelijkvloers binnen een kleinschaliggebouw bestaande uit 8 entiteiten. Het pand, gelegen in residentie THEO, biedt een bewoonbare oppervlakte van ± 117 m² en beschikt over 2 slaapkamers, een tuin en een groendak. Mogelijkheid tot de aankoop van ondergrondse parkeerplaatsen en bergingen. Gunstige ligging in het centrum van Opwijk, op wandelafstand (12 min) van het station van Opwijk en op 20 min rijden van de oprit te Meise. Geschikt voor personen met beperkte mobiliteit - 6 % BTW regelgeving op de constructiewaarde (ook als investerign onder bepaalde voorwaarden). Budget badkamer- en keukeninrichting inbegrepen (goede standaard).
Gemeenschappelijke gelijkvloers:
Gemeenschappelijke inkomhal met trappenhal, lift en toegang naar de ondergrondse garage (parkeerplaatsen, extra bergingen, technische ruimte, fietsenberging en vuilnislokalen).
Privatief gelijkvloers:
Inkom met gastentoilet, een gezellige woonkamer (± 37.89 m²) met open keuken, een badkamer (± 8.69 m²), een wasplaats (± 5.60 m²), een slaapkamer van ± 19.54 m², een tweede slaapkamer van ± 6.82 m², een noordoost gerichte tuin van ± 26.4 m² en een terras van ± 22 m².
Algemene kenmerken:
Bouwjaar: 2026
S-peil: 23, E-peil: 11
Elektrische installatie: keuringskosten inbegrepen in de prijs / tellers met dubbel-tarief meter
Nutsleidingen: voorzien / definitieve aansluitingen ten laste van de koper
Verwarming: warmtepomp lucht-water (type NIBE AMS 10-6) - vloerverwarming met passief koelen via vloer (± 5°C koeler dan buiten)
Sanitair warm water: boiler via warmtepomp
Zonnepanelen: fotovoltaïsche cellen / 2000 Watt Piek per appartement
Ventilatie: type D+ (warmterecuperatie-eenheid om stookkosten te verlagen)
Regenwaterrecuperatiesysteem: wc's, buitenkraantjes en uitgietbakken
Lift aanwezig
Binnenschrijnwerk: witte gelakte deuren met inox deurkruk en scharnieren
Buitenschrijnwerk: zwart aluminium (inbraak werend)
Beglazing: thermisch super isolerend glas en geluiddempende eigenschappen
Garagepoort: type sectionaalpoort (individuele afstandsbediening)
Verkoopprijs appartement 1 residentie Theo
Grondaandeel: 53.760,00 + 12 % verkooprechten = 60.211,20
Constructiewaarde aan 6 % BTW 331.240,00 + 6 % BTW = 351.114,40
Totaalprijs excl. notariskosten = € 411.325,60 - exclusief aansluitingskosten - exclusief kosten basisakte
Autostaanplaats en berging op 1 (kelderverdieping) beschikbaar - optioneel - inrit langs de Oude Brugstraat.
Bij verdere interesse kan er een afgestelde prijsberekening gemaakt worden, u kan langskomen op kantoor voor een uiteenzetting, dit na afspraak samen met de bouwpromotor voor de meer technische vragen.
Contactpersoon: Ilona Bewaert - tel 0496/22.02.66 - info@immotalenco.com
Energie
![]() |
- EPC Certificaat: 444
- Energieverbruik: 40 kWh/m²/jaar
- E-peil: E11
- Beglazing: Standaard dubbel
Op de kaart

Financieel
| Prijs | |
|---|---|
| Kadastraal inkomen (niet geïndexeerd) | € 0 |
| Kadastraal inkomen (geïndexeerd) | € 0 |
Berekening kosten
Je aankoopkosten? Die heb je snel berekend via de knop hieronder.
Bijkomende info
Gebouw
| Bouwjaar | 2026 |
|---|---|
| Staat | Nieuw |
| Bouwcertificaat | Nee |
| Bewoonbaar (m²) | 117 |
| Verdieping | 0 |
| Badkamers | 1 |
| Slaapkamers | 2 |
| Verdiepingen | 3 |
| Garages | 0 |
| Parkeerplaatsen | 0 |
| Doucheruimtes | 0 |
| Toiletten | 1 |
Faciliteiten
| Keuken uitrusting | Luxueus uitgerust |
|---|---|
| Materiaal ramenomlijstingen | Aluminium |
| Beglazing | Standaard dubbel |
| Elektrisch keuringsattest | Ja |
Perceel
| Overstromingsgevoelig | Geen |
|---|---|
| Voorkeurrecht | Nee |
| Bebouwde oppervlakte (m²) | 0 |
| Tuin oppervlakte (m²) | 0 |
| Oppervlakte terras (m²) | 22 |
| Oriëntatie tuin | Noordoost |
Vergunning
| Vergunning | Vergunning beschikbaar |
|---|---|
| Verkavelingsvergunning | Vergunning beschikbaar |
Uitrusting
| Investeringspand | Nee |
|---|---|
| Geschikt voor praktijk | Nee |
| Parking | Nee |
| Garage | Nee |
| Thuiskantoor | Nee |
| Kelder | Nee |
| Zolder | Nee |
| Tuin | Nee |
| Terras | Ja |
| Lift | Ja |
| Rioolaansluiting | Nee |
| Gasaansluiting | Nee |
| Wateraansluiting | Nee |
| Elektriciteitsaansluiting | Nee |
| TV aansluiting | Nee |
| Internetaansluiting | Nee |
| Telefoonaansluiting | Nee |
Appartementsblok
| Naam residentie | Residentie Theo |
|---|---|
| Aantal verdiepingen | 3 |
| Lift | Ja |
