Appartement 1e verdieping
€ 390.000
Een pand van Immo Optima
Favoriet
Jouw zoektocht
Jouw scoretabel voor dit pand
Aan het laden...
Jouw geplande bezichtigingen
Aan het laden...
Overzicht
- 93 m² bewoonbaar
- 2 Slaapkamer(s)
- 1 Badkamer(s)
- 1 Toilet(ten)
Overstromingsgevaar perceel
Beschrijving
Residentie Nova is een nieuwbouwproject gelegen in het centrum van het rustige Opwijk. Bij de ontwikkeling van dit project werd er rekening gehouden met een rustgevende en verzorgde architecturale invulling: gebouwen en inplanting vormen een modern, harmonisch en esthetisch geheel, achteraan voorzien van een mooi stukje groen. Deze woonparel is voorzien van alle comfort en wordt afgewerkt met materialen van topkwaliteit!
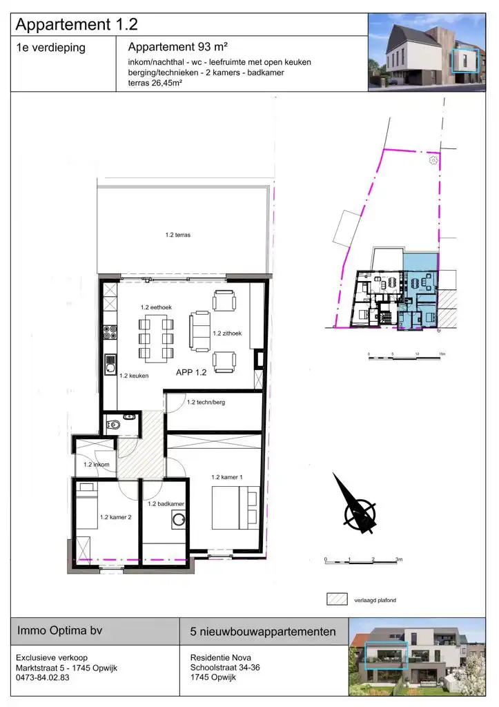
Dit stijlvolle appartement van 93m² is gelegen op de eerste verdieping. We komen binnen in dit appartement via de inkom en gaan zo naar de mooie leefruimte met open keuken. Via de nachthal kom je bij de 2 slaapkamers, de badkamer, apart toilet. Technische/berging ruimte aansluitend aan de leefruimte . Aan de woonkamer bevind zich ook een terras van 20m². Mogelijkheid tot aankoop van ondergrondse berging, autostaanplaats of garagebox. Prijs excl. BTW & kosten.
(Mogelijk aan 6% BTW onder voorwaarden!)
- Vg/Wg/Gmo/Gvkr/Gvv
- EPB in opmaak.
- Niet gelegen in overstromingsgevoelig gebied - P-score: D - G-score: B
Dit stijlvolle appartement van 93m² is gelegen op de eerste verdieping. We komen binnen in dit appartement via de inkom en gaan zo naar de mooie leefruimte met open keuken. Via de nachthal kom je bij de 2 slaapkamers, de badkamer, apart toilet. Technische/berging ruimte aansluitend aan de leefruimte . Aan de woonkamer bevind zich ook een terras van 20m². Mogelijkheid tot aankoop van ondergrondse berging, autostaanplaats of garagebox. Prijs excl. BTW & kosten.
(Mogelijk aan 6% BTW onder voorwaarden!)
- Vg/Wg/Gmo/Gvkr/Gvv
- EPB in opmaak.
- Niet gelegen in overstromingsgevoelig gebied - P-score: D - G-score: B
Energie
Op de kaart

Financieel
| Prijs |
|---|
Bijkomende info
Gebouw
| Bouwjaar | 2025 |
|---|---|
| Staat | Nieuw |
| Bewoonbaar (m²) | 93 |
| Verdieping | 1 |
| Gevels | 2 |
| Badkamers | 1 |
| Slaapkamers | 2 |
| Parkeerplaatsen | 0 |
| Doucheruimtes | 1 |
| Toiletten | 1 |
Faciliteiten
| Type vloer | |
|---|---|
| Keuken uitrusting | Luxueus uitgerust |
Perceel
| P-score | D |
|---|---|
| G-score | B |
| Voorkeurrecht | Nee |
| Tuin oppervlakte (m²) | 0 |
| Oriëntatie terras | Noordoost |
Vergunning
| Vergunning | Vergunning beschikbaar |
|---|---|
| Verkavelingsvergunning | Geen beschikbaar |
| Bouwovertreding | Geen |
| Bouwovertreding dagvaardiging | Geen |
Uitrusting
| Parking | Nee |
|---|---|
| Garage | Nee |
| Tuin | Nee |
| Terras | Ja |
| Lift | Ja |
| Wateraansluiting | Ja |
| Elektriciteitsaansluiting | Ja |
| Videofoon | Ja |
Een pand van
Immo Optima
De makelaar die zegt wat hij doet en doet wat hij zegt.
Ons ambitieus team beschikt over een uitstekende marktkennis en streeft naar een perfecte service. Onze mensen geven dagelijks het uiterste van zichzelf voor Uw vastgoedtransactie door middel van een klantgerichte aanpak waarbij we flexibiliteit en correctheid van informatie centraal stellen.
We streven naar een 100% slagingspercentage van alle bemiddelingsopdrachten. We starten met een gratis waardebepaling van Uw woning op basis van een gefundeerde analyse. Vervolgens ontwikkelen we voor Uw woning een uniek verkoop- en marketingplan en combineren dit met een regelmatige tussentijdse evaluatie. Hiermee vergroten we het verkooppotentieel voor Uw woning wat Optima de meest aangewezen partner maakt voor een succesvolle verkoop van Uw woning.
Neem gerust contact op voor een gratis waardebepaling of meer informatie over onze unieke aanpak voor de verkoop van Uw woning.
6629964
Leer meer over vastgoed
23 March 2026
Op Spotto zoeken als een pro: 10 slimme tips
21 March 2026
Hoeveel kan ik lenen om een huis te kopen?
01 March 2026
Wanneer heb ik een bouwvergunning of omgevingsvergunning nodig?
17 February 2026