Nieuw
Vergunde projectgrond voor 4 entiteiten te koop!
€ 395.000
Een pand van Landmeetkantoor TOPO-IMMO
Overzicht
- 450 m² grond
Beschrijving
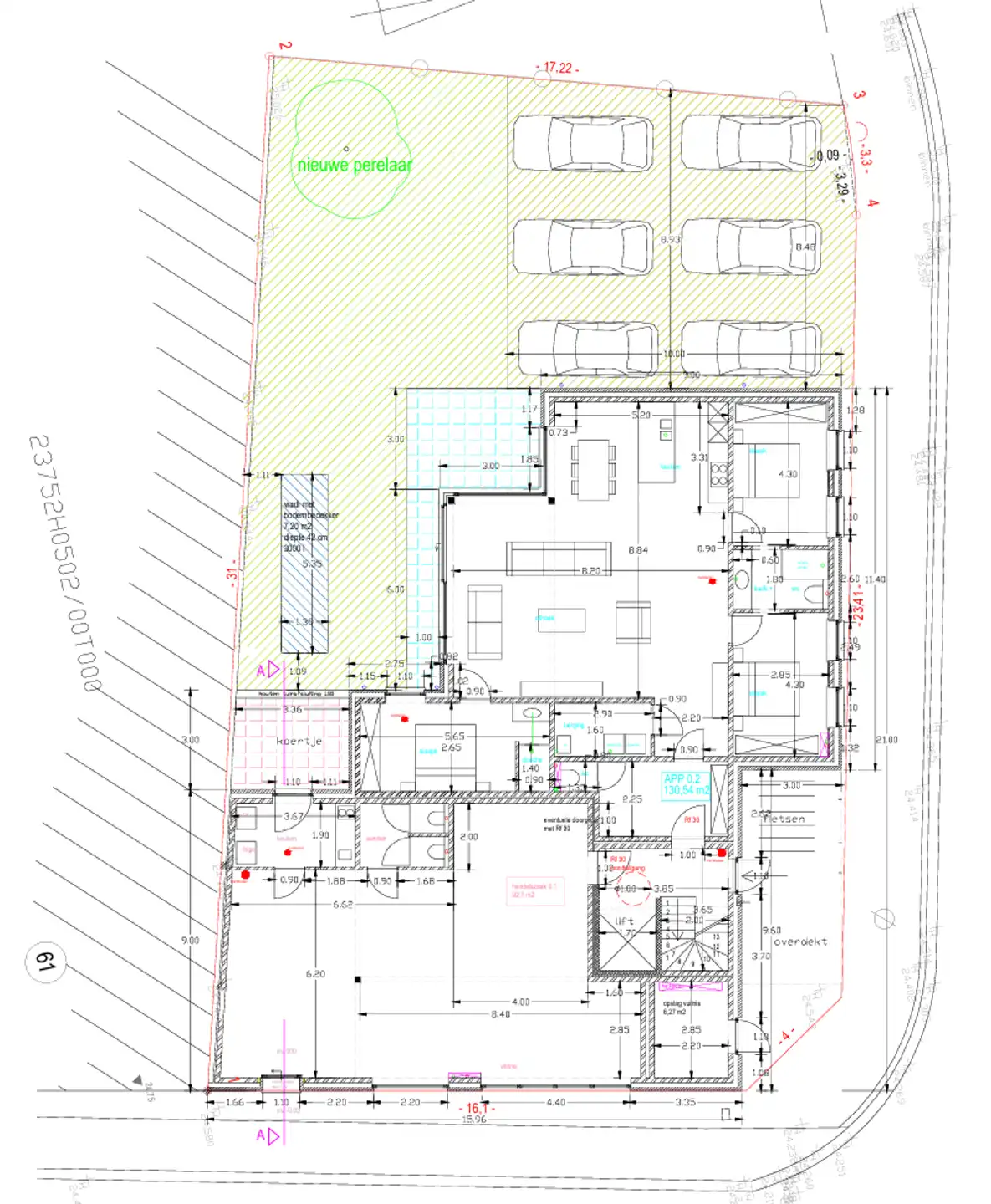
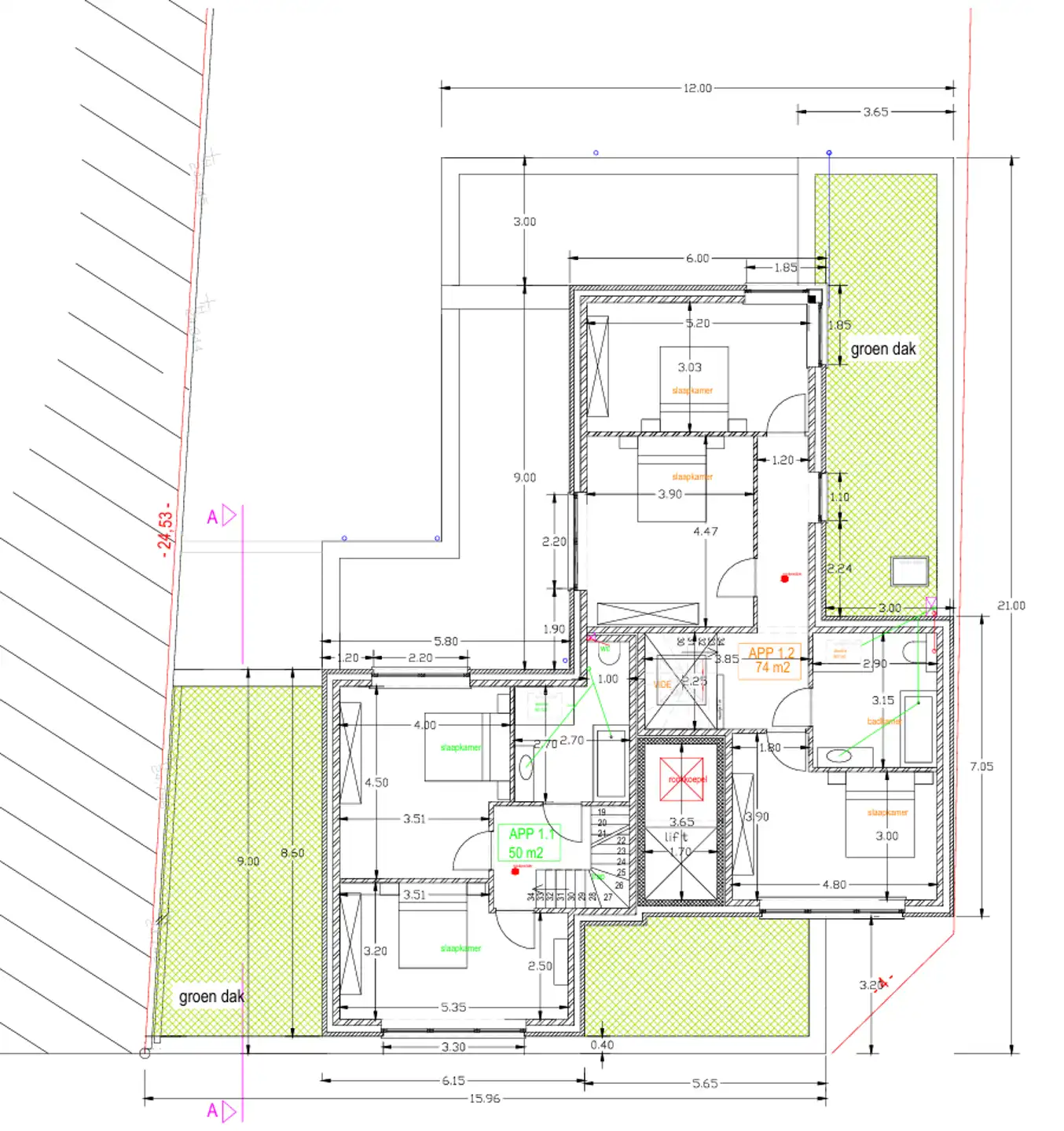
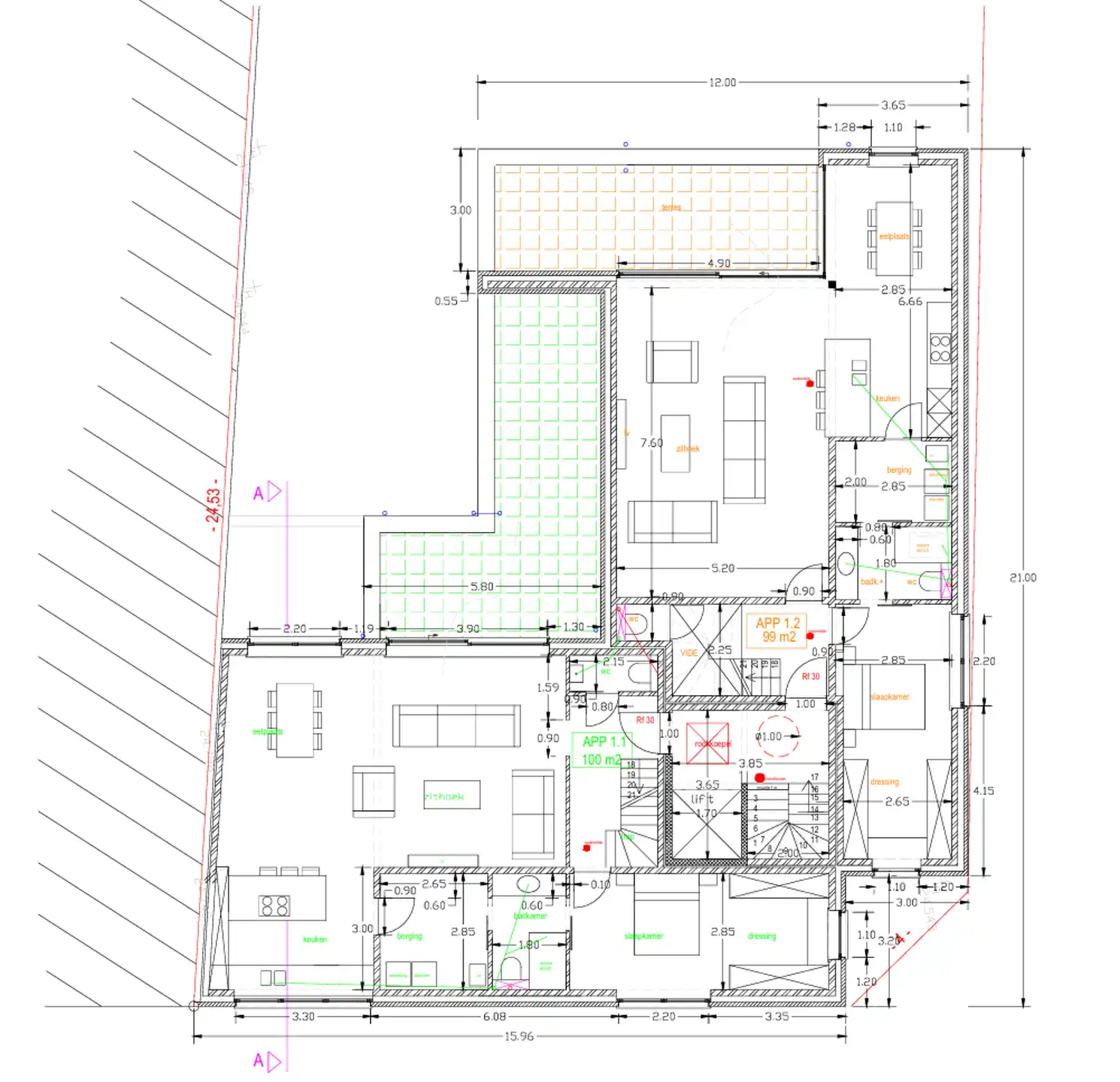
Voor meer info of een bezoek, bel 053 59 49 32. VOLLEDIG VERGUNDE Projectgrond voor de realisatie van vier kwalitatieve entiteiten te koop (vergunning aanwezig). Dit betreft een handelsgelijkvloers, een ruim gelijkvloers appartement en twee ruime duplexappartementen. De residentiële entiteiten onderscheiden zich door hun uitzonderlijke oppervlaktes van respectievelijk 130 m², 150 m² en 173 m², wat vandaag een factor is waar u zich kan in onderscheiden ten opzichte van uw concurrenten. Elk appartement beschikt over privatieve terrassen en bijhorende parkeerplaatsen (bovengronds), wat het wooncomfort aanzienlijk verhoogt. Het project is ontworpen met oog voor functionaliteit, ruimte en hedendaags wooncomfort, en biedt zowel voor eindgebruikers als investeerders een bijzonder aantrekkelijk potentieel. De combinatie van een handelsruimte met ruime wooneenheden zorgt voor een evenwichtige en rendabele mix.
Voor meer info of een bezoek, bel 053 59 49 32. VOLLEDIG VERGUNDE Projectgrond voor de realisatie van vier kwalitatieve entiteiten te koop (vergunning aanwezig). Dit betreft een handelsgelijkvloers, een ruim gelijkvloers appartement en twee ruime duplexappartementen. De residentiële entiteiten onderscheiden zich door hun uitzonderlijke oppervlaktes van respectievelijk 130 m², 150 m² en 173 m², wat vandaag een factor is waar u zich kan in onderscheiden ten opzichte van uw concurrenten. Elk appartement beschikt over privatieve terrassen en bijhorende parkeerplaatsen (bovengronds), wat het wooncomfort aanzienlijk verhoogt. Het project is ontworpen met oog voor functionaliteit, ruimte en hedendaags wooncomfort, en biedt zowel voor eindgebruikers als investeerders een bijzonder aantrekkelijk potentieel. De combinatie van een handelsruimte met ruime wooneenheden zorgt voor een evenwichtige en rendabele mix.
Energie
Op de kaart

Downloads
- Kadastraal plan.pdf (pdf)
- overstromingsrapport.pdf (pdf)
- Risicokaart waterbeheerder.pdf (pdf)
- RVV.pdf (pdf)
- stedenbouw.pdf (pdf)
- VGI Uittreksel.pdf (pdf)
Financieel
| Prijs | |
|---|---|
| Kadastraal inkomen (niet geïndexeerd) | € 4 |
Berekening kosten
Je aankoopkosten? Die heb je snel berekent via de knop hieronder.
Bijkomende info
Perceel
| P-score | A |
|---|---|
| Voorkeurrecht | Nee |
| Totale oppervlakte (m²) | 450 |
Vergunning
| Vergunning | Geen beschikbaar |
|---|---|
| Verkavelingsvergunning | Geen beschikbaar |
| Bouwovertreding | Geen |
| Bouwovertreding dagvaardiging | Geen |
| Type gebied | Landelijk |
Een pand van
Landmeetkantoor TOPO-IMMO
Landmeetkantoor TOPO-IMMO
TOPO-IMMO is een landmeet- en vastgoedkantoor met vestigingen in Denderhoutem (Haaltert) en Liedekerke en is actief in regio Haaltert, Ninove, Denderleeuw, Geraardsbergen, Herzele, Brakel, Liedekerke, Roosdaal, Affligem en omstreken.
Door de combinatie van zowel landmeten als vastgoedbemiddeling proberen wij onze klanten een zo breed mogelijk aanbod aan te bieden waardoor wij de centrale plaats zijn voor al hun vragen rond topografie en immobiliën.
- Topo (kort voor topografie) : Onder deze noemer bieden wij u een ruime dienstverlening inzake landmeten, schattingen, opmetingen, verkavelingen, plaatsbeschrijvingen, stedenbouwkundige attesten en algemene adviezen.
Steeds grondig, degelijk en met kennis van zaken.
- Immo (kort voor immobiliën) : Vastgoedbemiddeling met hart en ziel!
Neem contact op, dit is jouw uitgemeten kans om ons volgend succesverhaal te worden!
7280202
Leer meer over vastgoed
24 November 2025
Uitgezocht voor jouw gemeente: Hoeveel stijgt de waarde van je woning door een renovatie?
22 October 2025
Hoeveel kan ik lenen om een huis te kopen?
11 June 2025
Huis kopen met bouwovertreding? Dit moet je weten
11 May 2025