Nieuw Virtual tour
Karaktervolle woning met veel ruimte en potentieel
€ 359.000
Een pand van Multimmo
Favoriet
Jouw zoektocht
Jouw scoretabel voor dit pand
Aan het laden...
Overzicht
- 248 m² bewoonbaar
- 1240 m² grond
- 4 Slaapkamer(s)
- 1 Badkamer(s)
- 2 Toilet(ten)
- 1 Tuin
- 1 Garage(s)
Beschrijving
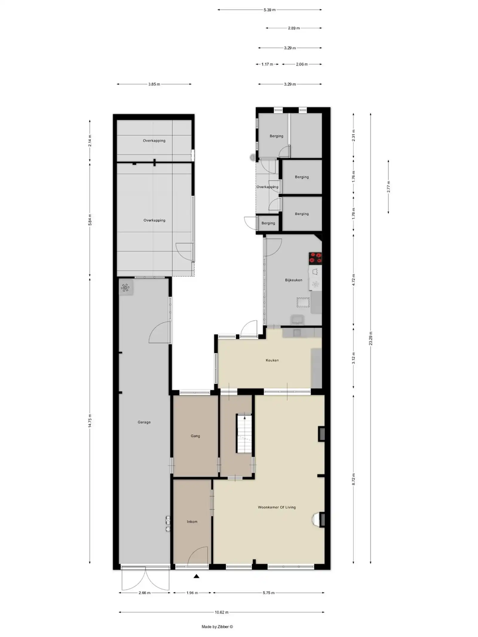
Ruime te moderniseren woning TE KOOP met veel potentieel op topligging in Kester (Pajottegem), ideaal voor wie wonen en werken wil combineren of een grote gezinswoning zoekt. Gelegen op een perceel van 12a 40ca met praktische indeling: inkomhal, ruime woonkamer met eetplaats, keuken en wasplaats, diepe garage met berging/werkruimte en diverse bijgebouwen achteraan (hobby, stockage, dieren). Grote tuin en kelder met meerdere ruimtes. Op de eerste verdieping zijn er 4 slaapkamers (waarvan één doorloopkamer) en een badkamer, plus een extra ruime kamer boven de garage (perfect als bureau of studio). Via vaste trap bereikbare zolder met uitbreidingsmogelijkheden. Troeven: veel ruimte, uitbreidingspotentieel, tal van bijgebouwen en gegeerde ligging. EPC: E (renovatieplicht), elektriciteit niet conform. Unieke opportuniteit met karakter en mogelijkheden! Contacteer ons snel via info@multimmo.be
of 02.897.70.00 voor een bezoek.
of 02.897.70.00 voor een bezoek.
Energie
![]() |
- EPC Certificaat: 20260302-0003814975-RES-1
- Energieverbruik: 427 kWh/m²/jaar
- E-peil: E0
- Beglazing: Standaard dubbel
Let op, de renovatieverplichting in Vlaanderen verplicht de koper om deze woning na aankoop te renoveren tot een betere energieprestatie. Lees er alles over in dit artikel
Extra budget nodig voor je renovatie?
De overheid helpt je dit pand energetisch te renoveren! Hieronder zie je het premiebedrag dat je mogelijks van de overheid krijgt.
Het huidige EPC-label is:

Op de kaart

Downloads
Financieel
| Prijs | |
|---|---|
| Kadastraal inkomen (niet geïndexeerd) | € 894 |
| Kadastraal inkomen (geïndexeerd) | € 0 |
Berekening kosten
Je aankoopkosten? Die heb je snel berekend via de knop hieronder.
Bijkomende info
Gebouw
| Bouwjaar | 1949 |
|---|---|
| Staat | Op te frissen |
| Bouwcertificaat | Nee |
| Bewoonbaar (m²) | 248 |
| Verdieping | 2 |
| Badkamers | 1 |
| Slaapkamers | 4 |
| Verdiepingen | 0 |
| Garages | 1 |
| Parkeerplaatsen | 0 |
| Doucheruimtes | 0 |
| Toiletten | 2 |
Faciliteiten
| Keuken uitrusting | Standaard |
|---|---|
| Materiaal ramenomlijstingen | Hout |
| Beglazing | Standaard dubbel |
| Elektrisch keuringsattest | Nee |
Perceel
| Overstromingsgevoelig | Geen |
|---|---|
| P-score | A |
| G-score | A |
| Voorkeurrecht | Nee |
| Totale oppervlakte (m²) | 1240 |
| Bebouwde oppervlakte (m²) | 0 |
| Tuin oppervlakte (m²) | 0 |
| Oppervlakte terras (m²) | 0 |
| Oriëntatie tuin | Zuidwest |
Uitrusting
| Investeringspand | Nee |
|---|---|
| Geschikt voor praktijk | Nee |
| Parking | Nee |
| Garage | Ja |
| Thuiskantoor | Nee |
| Kelder | Ja |
| Zolder | Ja |
| Tuin | Ja |
| Terras | Nee |
| Lift | Nee |
| Rioolaansluiting | Nee |
| Gasaansluiting | Nee |
| Wateraansluiting | Nee |
| Elektriciteitsaansluiting | Nee |
| TV aansluiting | Nee |
| Internetaansluiting | Nee |
| Telefoonaansluiting | Nee |
Een pand van
Multimmo
Vastgoedkantoor
Multimmo werd in 2000 opgericht door Olivier Degreef en Filip Derkinderen. Een brede ploeg van medewerkers deelt graag zijn ervaring met u. Dankzij onze sterke verbondenheid met en kennis van de regio voelen we goed aan hoe we uw woning het best in de markt zetten.
Ons ruime aanbod trekt sowieso veel kopers en huurders aan. U vindt ons aanbod terug op www.multimmo.be
KESTERWEG 36 KESTER
Leer meer over vastgoed
Nieuw
23 March 2026
Op Spotto zoeken als een pro: 10 slimme tips
Nieuw
21 March 2026
Hoeveel kan ik lenen om een huis te kopen?
01 March 2026
Wanneer heb ik een bouwvergunning of omgevingsvergunning nodig?
17 February 2026



