Virtual tour
ROOSDAAL : Goed gelegen en volledig uitgeruste werkplaats / carrosserie bedrijf
€ 879.000
Een pand van Immo-Expert & Co
Favoriet
Jouw zoektocht
Jouw scoretabel voor dit pand
Aan het laden...
Jouw geplande bezichtigingen
Aan het laden...
Overzicht
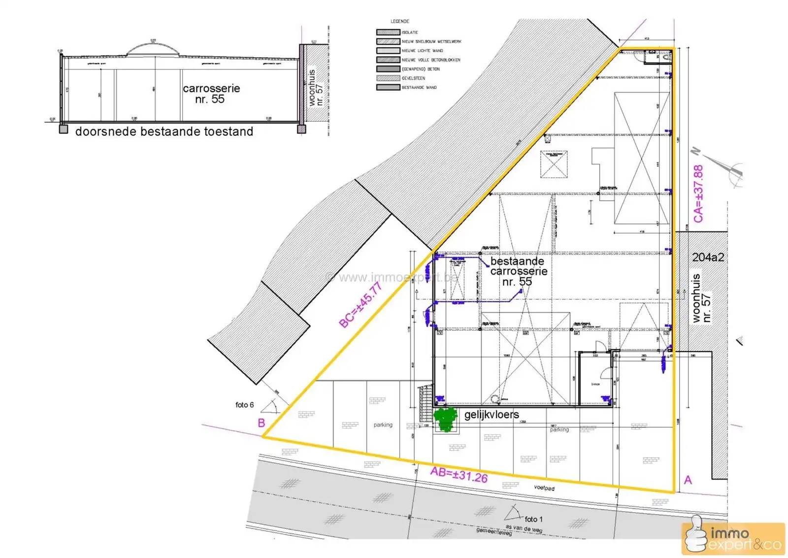
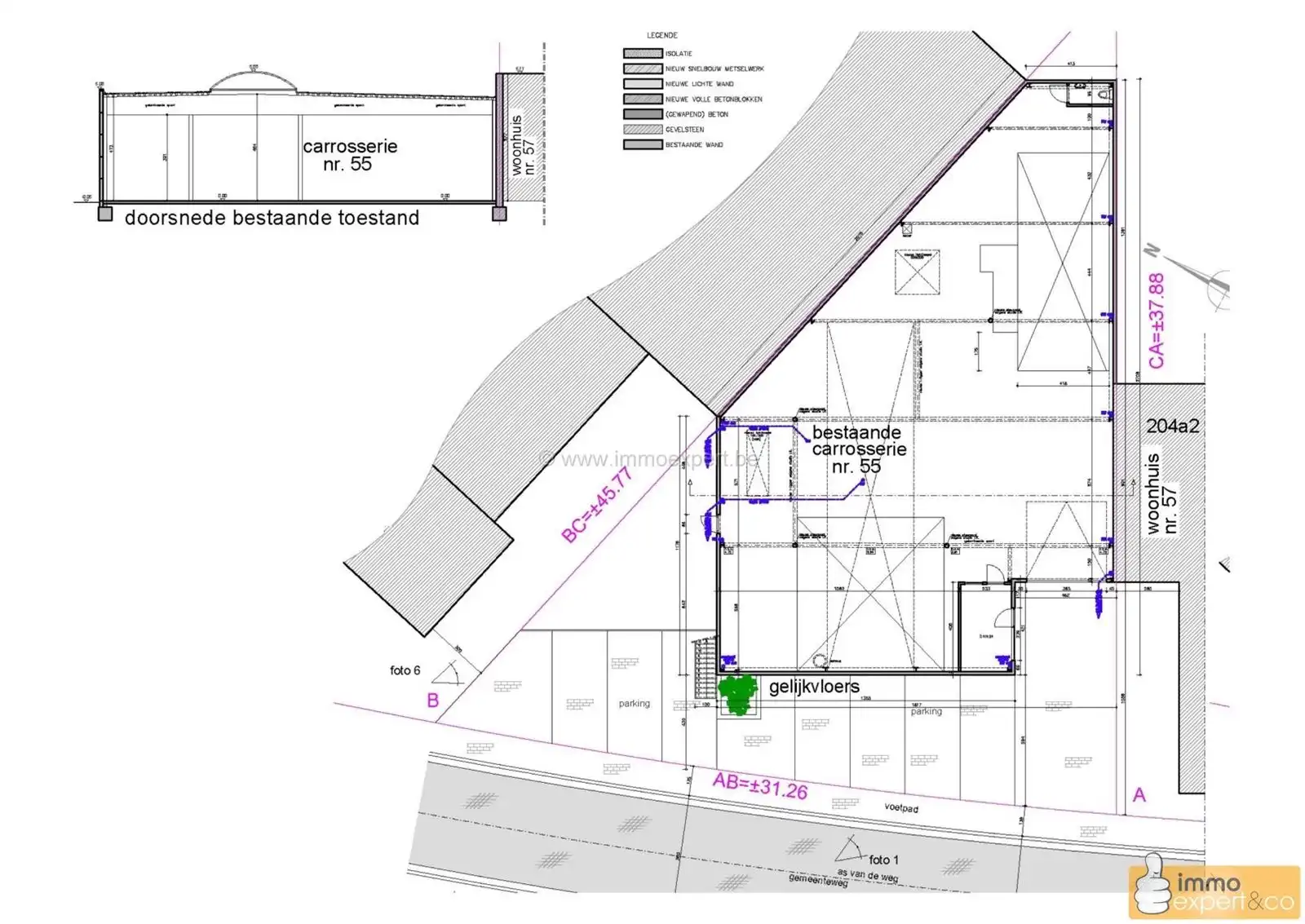
- 396.2 m² bewoonbaar
- 625 m² grond
- 1 Toilet(ten)
Beschrijving
Een vaste waarde in de buurt, carrosseriebedrijf Jean-Claude. Met een perfecte ligging en een mooie uitgebouwde zaak voorzien van alle nodige vergunningen en outillage/materieel, voldoet dit magazijn/werkplaats aan alle regels om meteen van start te kunnen als ondernemer. Recent gebouw met alle moderne voorzieningen zijnde degelijke elektrische installatie, industriële verwarming, zonnepanelen, alarminstallatie, spuitcabine, 2 voorbereidingszone ’s, was zone met vetafscheiders, 2 bruggen, trekbank/trekvloer, verflabo, sanitair, bureau, binnen- & buitenstockage, tot wel 8 à 9 autostaanplaatsen aanwezig,… en een perfecte zicht- & bereikbaarheid dankzij de verbindingsweg met veel passage,… + bodemattest in orde + milieuvergunning klasse 3 & asbestvrij! Kortom, ideaal als uitvalsbasis om meteen van start te kunnen. Neem alvast een kijkje op onze virtuele toer: https://my.matterport.com/show/?m=YwaweY2oYba
Energie
- E-peil: E0
- Verwarming: Gas
- Beglazing: Standaard dubbel
Op de kaart

Financieel
| Prijs | |
|---|---|
| Kadastraal inkomen (niet geïndexeerd) | € 4.312 |
| Kadastraal inkomen (geïndexeerd) | € 0 |
Berekening kosten
Je aankoopkosten? Die heb je snel berekend via de knop hieronder.
Bijkomende info
Gebouw
| Bouwjaar | 1991 |
|---|---|
| Bouwcertificaat | Nee |
| Bewoonbaar (m²) | 396.2 |
| Verdieping | 0 |
| Gevelbreedte | 18.17 |
| Badkamers | 0 |
| Slaapkamers | 0 |
| Verdiepingen | 2 |
| Garages | 0 |
| Parkeerplaatsen | 8 |
| Doucheruimtes | 0 |
| Toiletten | 1 |
Faciliteiten
| Keuken uitrusting | Basis |
|---|---|
| Materiaal ramenomlijstingen | Aluminium |
| Beglazing | Standaard dubbel |
| Brandstof primaire verwarming | Gas |
| Elektrisch keuringsattest | Nee |
Perceel
| Diepte (m) | 27 |
|---|---|
| Breedte (m) | 31 |
| Overstromingsgevoelig | Geen |
| P-score | C |
| G-score | A |
| Voorkeurrecht | Nee |
| Totale oppervlakte (m²) | 625 |
| Bebouwde oppervlakte (m²) | 0 |
| Tuin oppervlakte (m²) | 0 |
| Oppervlakte terras (m²) | 41 |
| Oriëntatie tuin | Noord |
Vergunning
| Vergunning | Vergunning beschikbaar |
|---|---|
| Verkavelingsvergunning | Geen beschikbaar |
Uitrusting
| Investeringspand | Nee |
|---|---|
| Geschikt voor praktijk | Ja |
| Parking | Ja |
| Garage | Nee |
| Thuiskantoor | Ja |
| Kelder | Nee |
| Zolder | Nee |
| Tuin | Nee |
| Terras | Ja |
| Lift | Nee |
| Rioolaansluiting | Ja |
| Gasaansluiting | Ja |
| Wateraansluiting | Ja |
| Elektriciteitsaansluiting | Ja |
| TV aansluiting | Ja |
| Internetaansluiting | Ja |
| Telefoonaansluiting | Ja |
Appartementsblok
| Aantal verdiepingen | 2 |
|---|---|
| Lift | Nee |
Een pand van
Immo-Expert & Co
Uw on(t)roerend goed specialist
Immo Expert & Co is reeds 25 jaar een begrip in Ternat en heeft nu ook een nieuw thuiskantoor geopend in Gooik.
Klanten vertrouwen op ons omwille van onze ongeëvenaarde persoonlijke service en discretie.
Wij doen alles van A tot Z voor de verkoop en verhuur van uw pand.
Hierbij maken we gebruik van de nieuwste digitale technieken om alles in goede banen te leiden. Zo zijn wij het enige kantoor in de ruime regio dat een 3D virtuele toer aanbiedt voor elk pand in de portefeuille. Kandidaat kopers of huurders wandelen als het ware meteen rond in hun droomwoning!
Wenst u een vrijblijvende schatting van uw vastgoed of heeft u een vraag omtrent verkoop of verhuur , contacteer ons dan vandaag nog op 02/5810980 of mail ons op info@immoexpert.be.
OMER DE VIDTSLAAN 55 PAMEL
Leer meer over vastgoed
04 January 2026
Zoek je een kantoor, een magazijn of… iets ertussenin? Bedrijfsvastgoed uitgelegd
05 November 2024
Bedrijfsvastgoed in transitie: ontdek de toekomst van werkplekken
16 October 2024
Opbrengsteigendom: een slim pad naar passief inkomen en vermogensgroei
09 September 2024