Virtual tour
Woning met bijhorende zorgwoning / zelfstandige ruimte
€ 575.000
Een pand van Allur vastgoed
Favoriet
Jouw zoektocht
Jouw scoretabel voor dit pand
Aan het laden...
Jouw geplande bezichtigingen
Aan het laden...
Overzicht
- 185 m² bewoonbaar
- 1968 m² grond
- 4 Slaapkamer(s)
- 2 Badkamer(s)
- 2 Toilet(ten)
- 1 Tuin
Overstromingsgevaar gebouw
Overstromingsgevaar perceel
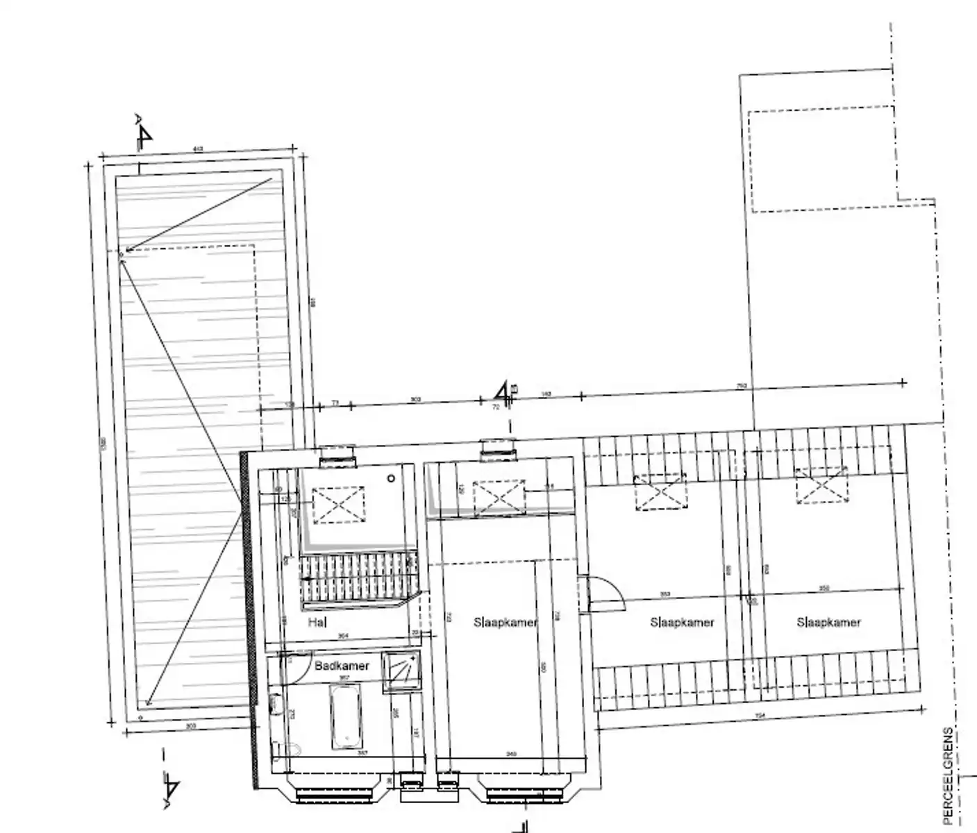
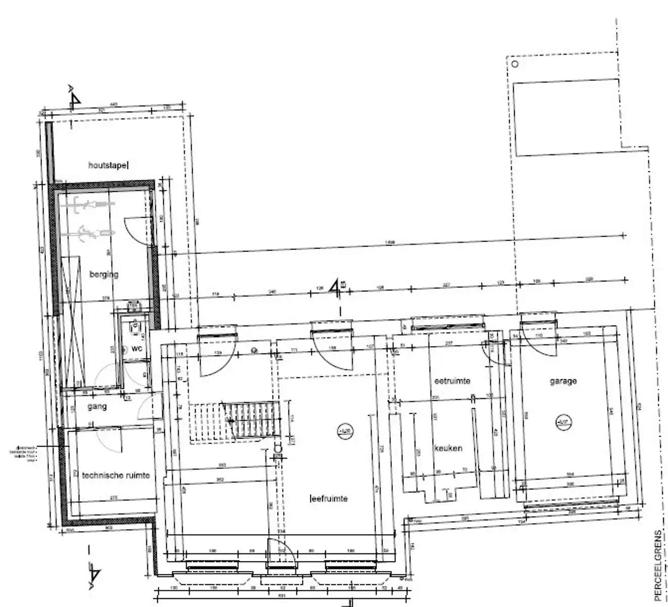
Beschrijving
Borchtlombeek: zeer ruime, gezellige en instapklare woning met diverse mogelijkheden op een ruim zuidelijk georiënteerd perceel. Bezoek de virtuele toer via www.allur. Plannen eveneens in bijlage voor de specifieke indeling van de woning. De woning is grondig gerenoveerd en bestaat momenteel uit een ééngezinswoning met bijhorende zorgwoning. Indeling gelijkvloers: gezellige leefkamer met naastgelegen keuken, garage. Een doorgang vanuit de leefkamer leidt naar het toilet, een badkamer en een ruimte die momenteel functioneert als zorgwoning. De tuin is toegankelijk via het hoofdgebouw en vanuit de zorgwoning. De zorgwoning heeft een aparte toegang zodat deze eveneens kan gebruikt worden als uitoefening van een kleine zelfstandige activiteit. Toegang mogelijks via de naastgelegen oprit. Het nachtgedeelte omvat een nachthal met toegang tot badkamer. Aansluitend zijn er achter elkaar gelegen ruimtes die dienst doen als dressing, bureau en slaapkamers. Mits het plaatsen van wanden kan de bestemming van deze ruimtes nog herschikt worden. De woning heeft een zeer mooie onderhoudsvriendelijke tuin, aansluitend op agrarisch gebied. Er is een gezellig overdekt terras met bijhorende berging. Naast de woning heeft u een oprit voor meerdere wagens en een bijhorende garage. Zeer ruime woning met veel potentieel.
Energie
![]() |
- EPC Certificaat: 20260226-0003807916-RES-1
- Energieverbruik: 250 kWh/m²/jaar
Op de kaart

Downloads
- asbestattest Populierstraat 32 1761 Roosdaal.pdf (pdf)
- Populierstraat 32 Roosdaal epc.pdf (pdf)
- 1.jpg (jpg)
- 0.jpg (jpg)
Financieel
| Prijs | |
|---|---|
| Kadastraal inkomen (niet geïndexeerd) | € 1.408 |
Berekening kosten
Je aankoopkosten? Die heb je snel berekend via de knop hieronder.
Bijkomende info
Gebouw
| Staat | Goed onderhouden |
|---|---|
| Bewoonbaar (m²) | 185 |
| Gevels | 4 |
| Badkamers | 2 |
| Slaapkamers | 4 |
| Parkeerplaatsen | 0 |
| Toiletten | 2 |
Faciliteiten
| Type vloer | |
|---|---|
| Keuken uitrusting | Goed uitgerust |
Perceel
| P-score | D |
|---|---|
| G-score | D |
| Voorkeurrecht | Nee |
| Totale oppervlakte (m²) | 1968 |
| Tuin oppervlakte (m²) | 0 |
| Oriëntatie terras | Zuid |
Vergunning
| Vergunning | Vergunning beschikbaar |
|---|---|
| Verkavelingsvergunning | Geen beschikbaar |
| Bouwovertreding | Geen |
| Bouwovertreding dagvaardiging | Geen |
| Type gebied | Landelijk |
Uitrusting
| Parking | Ja |
|---|---|
| Garage | Nee |
| Tuin | Ja |
| Terras | Ja |
| Gasaansluiting | Ja |
| Wateraansluiting | Ja |
| Elektriciteitsaansluiting | Ja |
| TV aansluiting | Ja |
| Telefoonaansluiting | Ja |
Een pand van
Allur vastgoed
Passie voor vastgoed en mensen
allur verkoopt geen huis, wel een thuis...
Welkom bij allur vastgoed, een residentieel vastgoedkantoor met een eigentijdse, persoonlijke, efficiënte aanpak en een focus op de vastgoedmarkt in de westrand rond Brussel.
Discretie, transparante communicatie, ervaring, marktkennis en een persoonlijke benadering zorgen voor een succesvolle vastgoedsamenwerking.
Wenst u te kopen, verkopen, huren of verhuren? Bij allur bent u aan het juiste adres voor een professionele begeleiding van A tot Z.
Leer meer over vastgoed
Nieuw
24 April 2026
Duurzaam gelegen woning? Check je Mobiscore
23 March 2026
Op Spotto zoeken als een pro: 10 slimme tips
21 March 2026
Hoeveel kan ik lenen om een huis te kopen?
01 March 2026
