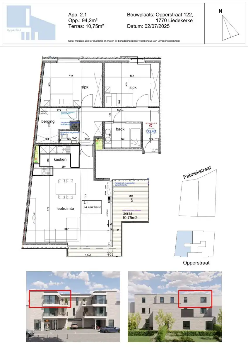
KOOP AAN 6% btw 2 slaapkamers 94,2m² - terras10,75m²
€ 349.000
Een pand van BVBA AccentA
Favoriet
Jouw zoektocht
Jouw scoretabel voor dit pand
Aan het laden...
Jouw geplande bezichtigingen
Aan het laden...
Overzicht
- 94.2 m² bewoonbaar
- 2 Slaapkamer(s)
- 1 Badkamer(s)
- 1 Garage(s)
Beschrijving
INVESTEER IN DE TOEKOMST EN KOOP EEN BEN APPARTEMENT, AANKOOP 6% btw mogelijk. BEN(Bijna Energie Neutraal): warmtepomp, vloerverwarming, hoog rendements glas, EPC A ... RESIDENTIE OPPERHOF- Nieuwbouwproject in hedendaagse architectuur, gelegen in het centrum van Liedekerke, in de onmiddellijke omgeving van winkels, scholen en bushaltes en treinstation. Het project, bestaande uit 3 bouwlagen (allen bereikbaar met lift), omvat 1 handelsruimte en 5 appartementen van 1 tot 3 slaapkamers, allen met terras. Bij elk appartement hoort een autostaanplaats. Bij dit project gaan kwaliteit, ENERGIEZUINIGHEID en functionaliteit hand in hand. U koopt deze appartementen volledig afgewerkt naar eigen smaak en wensen. Verkoop op plan volgens de WET BREYNE. Eveneens interessant als investering! Bij interesse vraag vrijblijvend het lastenboek via affligem@immoaccenta.be.
Energie
![]() |
Op de kaart

Financieel
| Prijs |
|---|
Bijkomende info
Gebouw
| Bewoonbaar (m²) | 94.2 |
|---|---|
| Verdieping | 2 |
| Gevels | 2 |
| Badkamers | 1 |
| Slaapkamers | 2 |
| Verdiepingen | 2 |
| Garages | 1 |
| Parkeerplaatsen | 1 |
Faciliteiten
| Type vloer | |
|---|---|
| Keuken uitrusting | Goed uitgerust |
| Elektrisch keuringsattest | Ja |
Perceel
| Overstromingsgevoelig | Geen |
|---|---|
| P-score | A |
| G-score | A |
| Voorkeurrecht | Nee |
| Tuin oppervlakte (m²) | 0 |
Vergunning
| Vergunning | Vergunning beschikbaar |
|---|---|
| Verkavelingsvergunning | Geen beschikbaar |
| Bouwovertreding | Geen |
| Bouwovertreding dagvaardiging | Geen |
Uitrusting
| Parking | Ja |
|---|---|
| Garage | Nee |
| Tuin | Nee |
| Terras | Ja |
| Lift | Ja |
| Wateraansluiting | Ja |
| Elektriciteitsaansluiting | Ja |
| Zwembad | Nee |
| Zwemvijver | Nee |
| Videofoon | Ja |
| Regenwaterput | Ja |
Een pand van
BVBA AccentA
Vastgoedkantoor AccentA
Vanuit het hoofdkantoor te Affligem is alles gestart. Wat ooit begon met één werkende kracht, de zaakvoerder, werd na verloop van tijd uitgebouwd tot een jong en dynamisch team. Ondertussen bestaat AccentA Affligem uit 5 experten, ieder met zijn eigen specialiteit.
Leer meer over vastgoed
23 March 2026
Op Spotto zoeken als een pro: 10 slimme tips
21 March 2026
Hoeveel kan ik lenen om een huis te kopen?
01 March 2026
Wanneer heb ik een bouwvergunning of omgevingsvergunning nodig?
17 February 2026
