Volledig afgewerkte nieuwbouw (prijs incl. kosten: €471.731)
€ 399.000
Een pand van Topo-Immo Liedekerke
Overzicht
- 167 m² bewoonbaar
- 256 m² grond
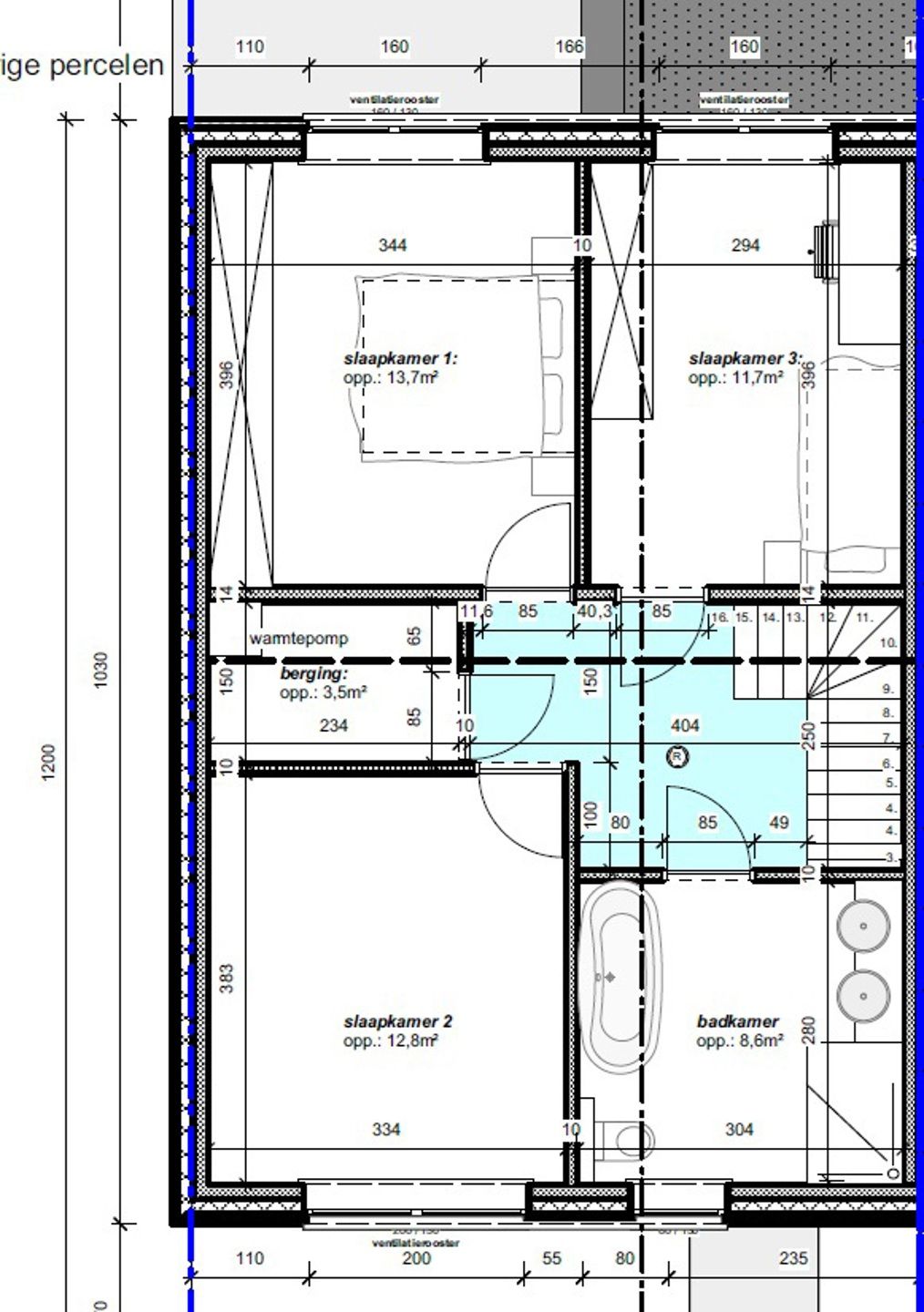
- 3 Slaapkamer(s)
- 1 Badkamer(s)
- 1 Toilet(ten)
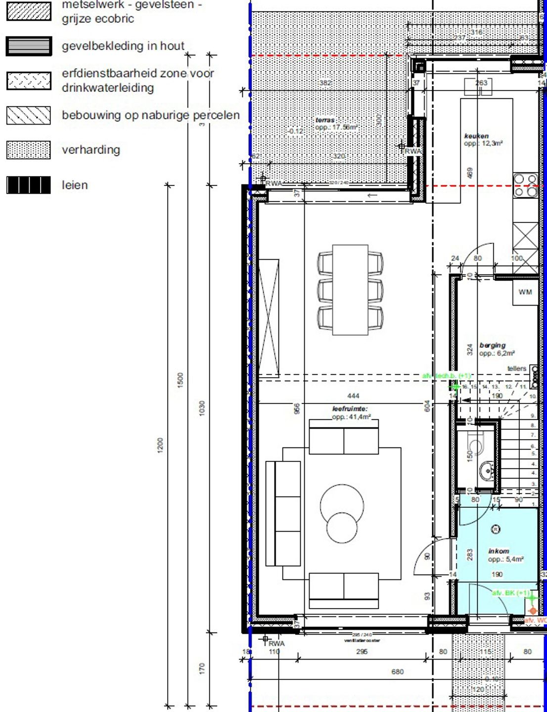
- 1 Tuin
Beschrijving
*Prijs vermeld in de advertentie betreft prijs excl. BTW en kosten
Voor meer info of een bezoek, bel 054 69 39 31 - Op een ideale locatie in Liedekerke nabij het station bevindt zich deze prachtige nieuwbouwwoning met een tijdloze architectuur. De woning omvat een inkomhal, een gastentoilet, een ruime en lichtrijke eet- en leefruimte met open keuken en aanpalende berging. Via de grote glaspartijen bereikt men het aangelegd terras (+/- 15 m²) en de aangelegde en afgesloten tuin. Verder beschikt men over een oprit met plaats voor één wagen. Op de eerste verdieping beschikt men over een nachthal, drie ruime slaapkamers, een badkamer (voorzien van bad, douche en dubbele lavabo) en een berging. De tweede verdieping bereikt men met een vaste trap, deze ruimte kan optioneel worden afgewerkt naar een vierde slaapkamer. De oplevering van de woning zou voorzien zijn voor eind 2025. Vloerverwarming met warmtepomp – E-peil onder 20 – Rustige ligging.
*Prijs vermeld in de advertentie betreft prijs excl. BTW en kosten
Energie
Op de kaart

Downloads
Financieel
Prijs |
---|
Berekening kosten
Je aankoopkosten? Die heb je snel berekent via de knop hieronder.
Bijkomende info
Gebouw
Bouwjaar | 2025 |
---|---|
Staat | Nieuw |
Bewoonbaar (m²) | 167 |
Gevels | 3 |
Badkamers | 1 |
Slaapkamers | 3 |
Verdiepingen | 3 |
Garages | 0 |
Parkeerplaatsen | 1 |
Toiletten | 1 |
Faciliteiten
Type vloer | |
---|---|
Keuken uitrusting | Goed uitgerust |
Elektrisch keuringsattest | Ja |
Perceel
P-score | B |
---|---|
G-score | B |
Voorkeurrecht | Nee |
Totale oppervlakte (m²) | 256 |
Tuin oppervlakte (m²) | 0 |
Oriëntatie tuin | Noordwest |
Vergunning
Vergunning | Vergunning beschikbaar |
---|---|
Verkavelingsvergunning | Vergunning beschikbaar |
Bouwovertreding | Geen |
Bouwovertreding dagvaardiging | Geen |
Uitrusting
Parking | Ja |
---|---|
Garage | Nee |
Tuin | Ja |
Terras | Ja |
Lift | Nee |
Wateraansluiting | Ja |
Elektriciteitsaansluiting | Ja |
Zwembad | Nee |
Zwemvijver | Nee |
Regenwaterput | Ja |