LIEDEKERKE: Bouwgrond voor gesloten bebouwing op 3a 46ca
€ 124.900
Een pand van Immo-Expert & Co
Favoriet
Jouw zoektocht
Jouw scoretabel voor dit pand
Aan het laden...
Jouw geplande bezichtigingen
Aan het laden...
Overzicht
- 346 m² grond
- 1 Tuin
Beschrijving
Dit interessante bouwperceel is gelegen in Liedekerke en biedt uitstekende mogelijkheden voor uw bouwplannen. Het terrein heeft een totale oppervlakte van 346 vierkante meter, is ideaal gelegen en heeft een goede oriëntatie.
Het perceel bevindt zich op een goed bereikbare locatie in Liedekerke, nabij vele voorzieningen en tot alle nodige faciliteiten en diensten in de buurt.
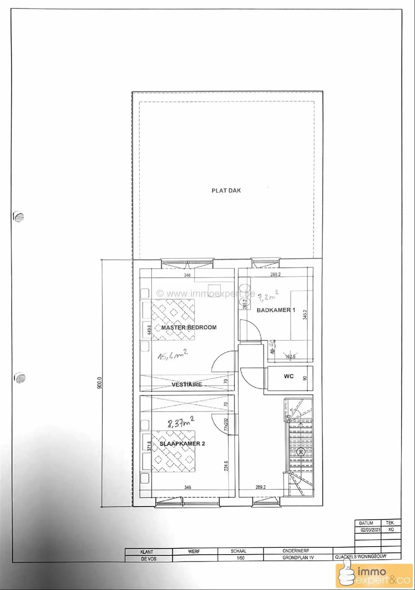
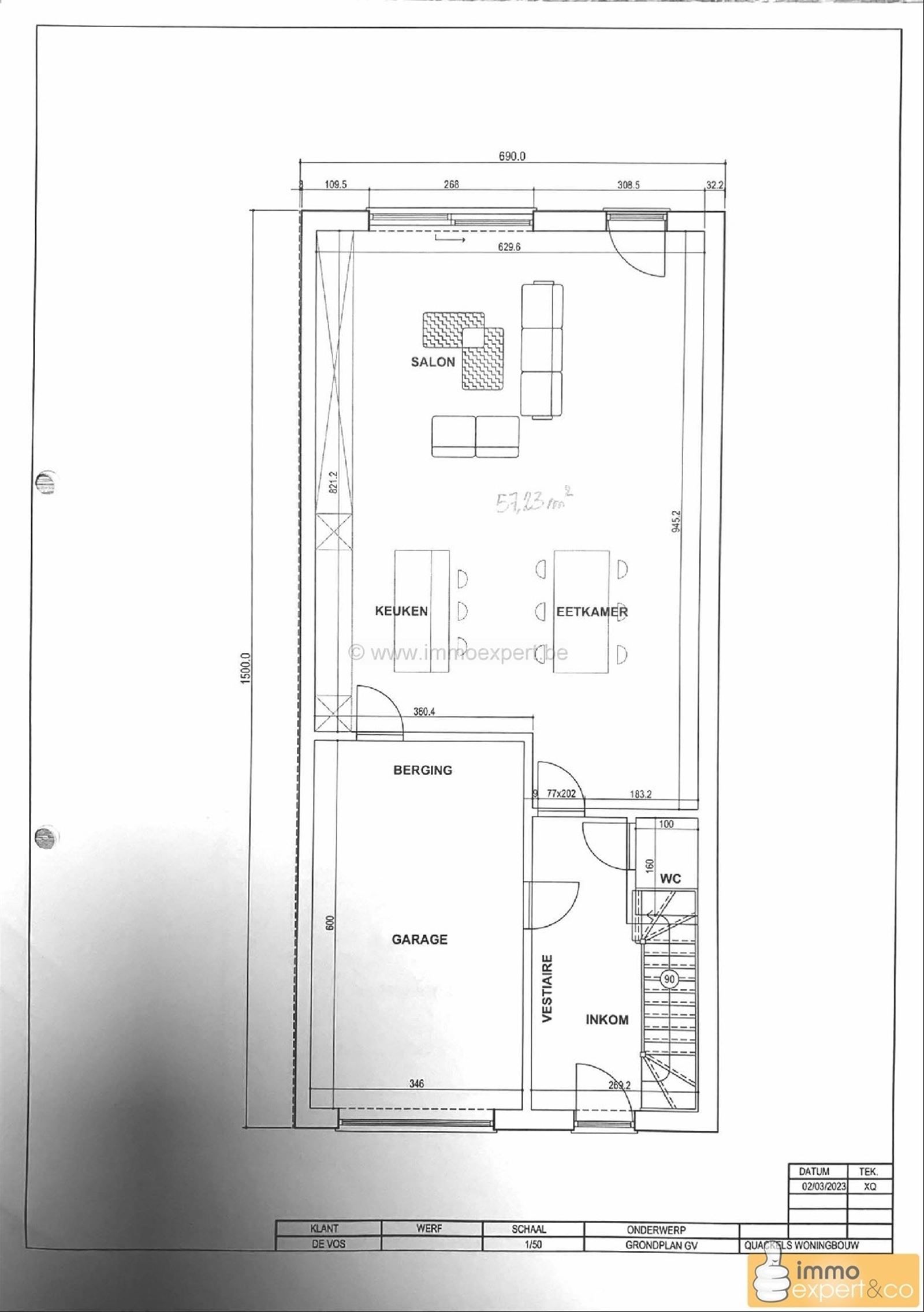
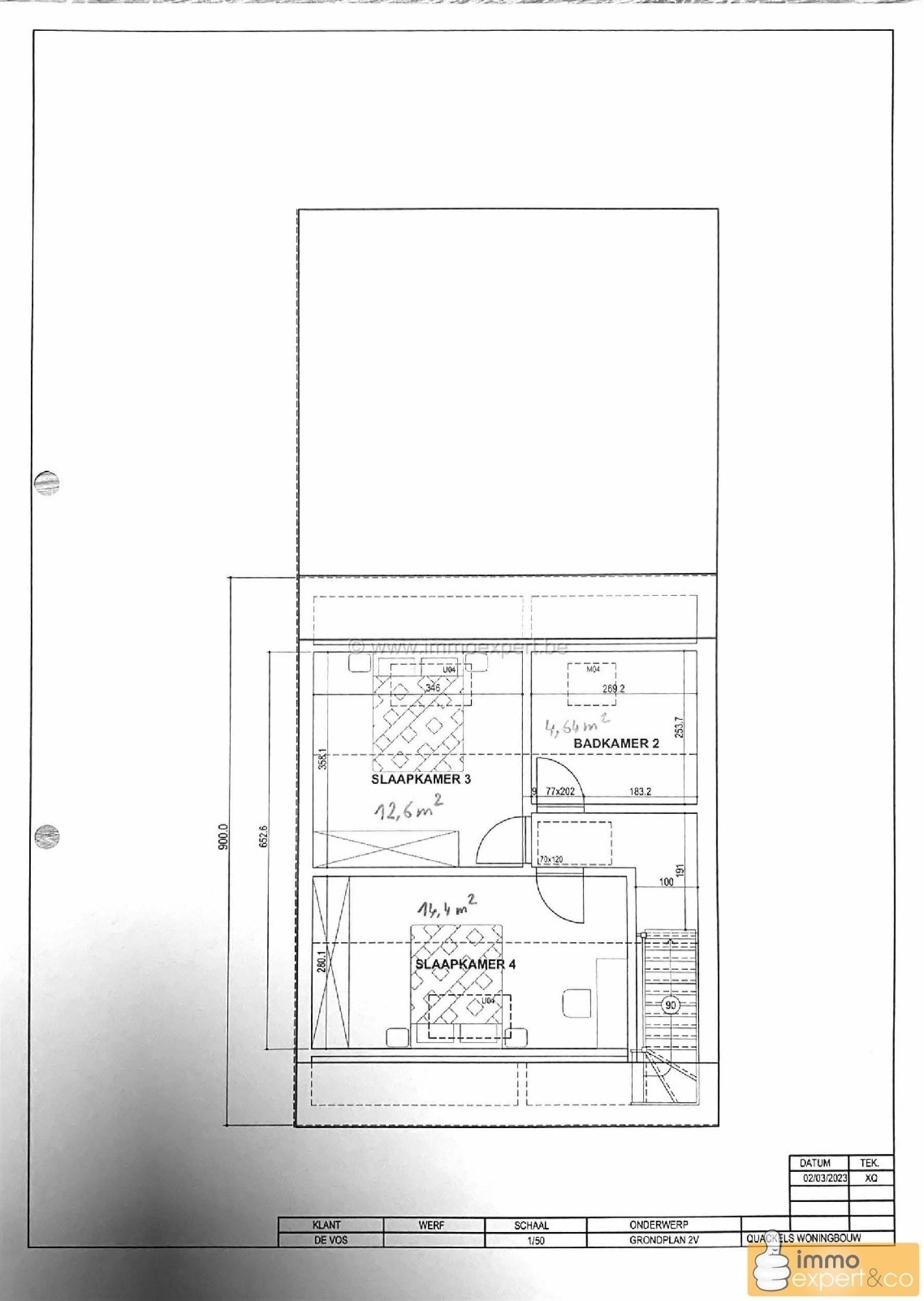
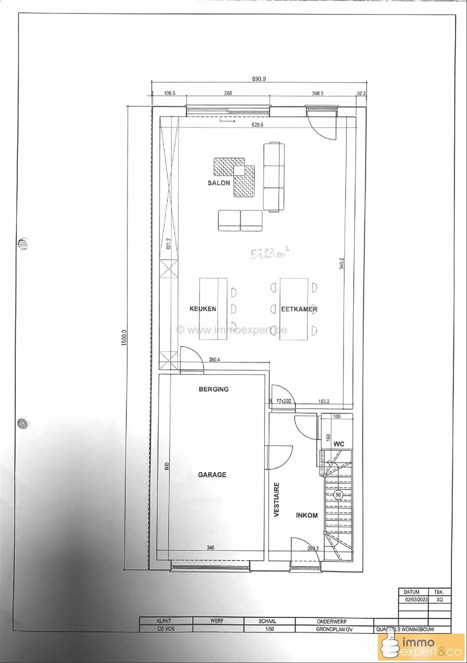
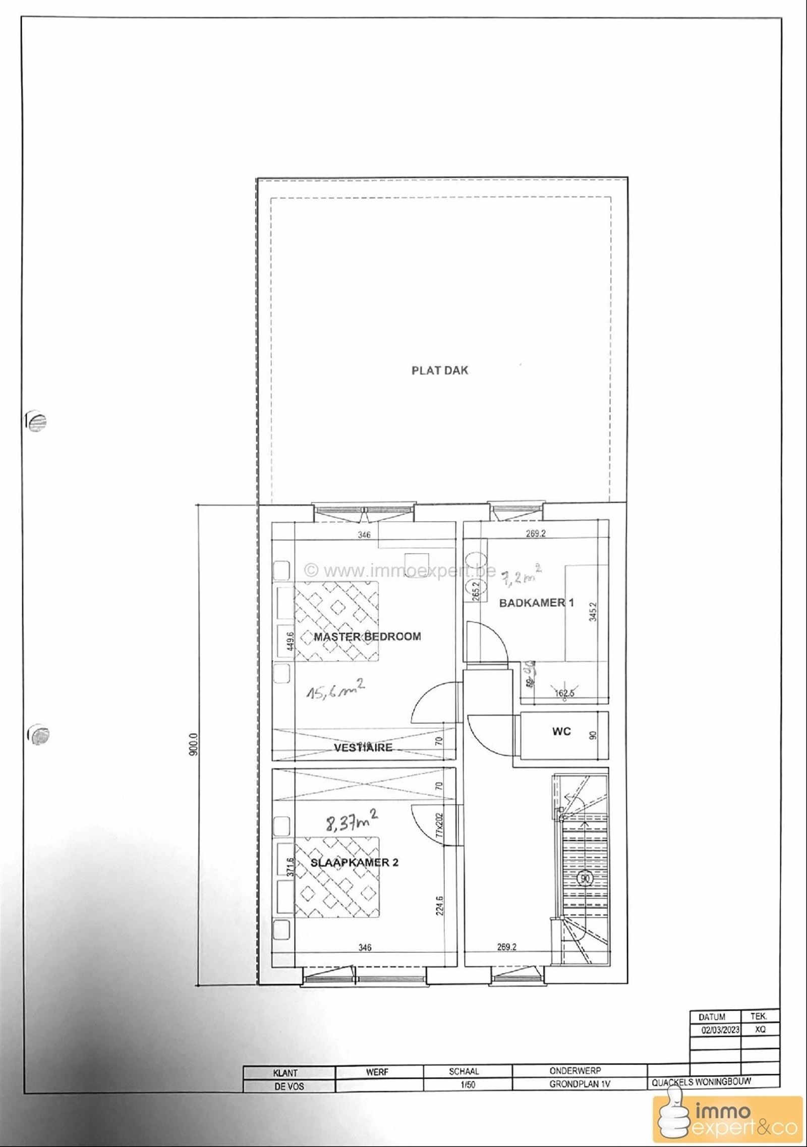
Deze bouwgrond is een uitgelezen kans om een modern woonproject te ontwikkelen met recente woningen rondom. Met een gevelbreedte van 6,9m en een bouwdiepte van 15m geeft dit een bouwoppervlakte van 103,8 m². Voor de verdieping kan je tot 12m diepte gaan. In totaliteit geeft dit een bewoonbare oppervlakte van 186,3m². De bereikbaarheid, gecombineerd met de gereedheid van het terrein, maakt dit een aantrekkelijk object voor ambitieuze bouwplannen. Bouw sondering reeds gebeurd. De tuin geeft uit op landschappelijk waardevol agrarisch gebied. Reeds kostenraming en architectplannen aanwezig. Een uitgelezen kans voor wie meteen van start wil. Geen maatregelen in het maatregelenregister.
Het perceel bevindt zich op een goed bereikbare locatie in Liedekerke, nabij vele voorzieningen en tot alle nodige faciliteiten en diensten in de buurt.
Deze bouwgrond is een uitgelezen kans om een modern woonproject te ontwikkelen met recente woningen rondom. Met een gevelbreedte van 6,9m en een bouwdiepte van 15m geeft dit een bouwoppervlakte van 103,8 m². Voor de verdieping kan je tot 12m diepte gaan. In totaliteit geeft dit een bewoonbare oppervlakte van 186,3m². De bereikbaarheid, gecombineerd met de gereedheid van het terrein, maakt dit een aantrekkelijk object voor ambitieuze bouwplannen. Bouw sondering reeds gebeurd. De tuin geeft uit op landschappelijk waardevol agrarisch gebied. Reeds kostenraming en architectplannen aanwezig. Een uitgelezen kans voor wie meteen van start wil. Geen maatregelen in het maatregelenregister.
Energie
- E-peil: E0
- Beglazing: Onbekend
Op de kaart

Financieel
| Prijs | |
|---|---|
| Kadastraal inkomen (niet geïndexeerd) | € 2 |
| Kadastraal inkomen (geïndexeerd) | € 4 |
Berekening kosten
Je aankoopkosten? Die heb je snel berekend via de knop hieronder.
Bijkomende info
Gebouw
| Bouwcertificaat | Nee |
|---|
Perceel
| Diepte (m) | 50 |
|---|---|
| Breedte (m) | 6 |
| Overstromingsgevoelig | Geen |
| P-score | A |
| Voorkeurrecht | Nee |
| Totale oppervlakte (m²) | 346 |
| Oriëntatie tuin | ZuidOost |
Vergunning
| Vergunning | Geen beschikbaar |
|---|---|
| Verkavelingsvergunning | Vergunning beschikbaar |
Uitrusting
| Investeringspand | Nee |
|---|---|
| Rioolaansluiting | Ja |
| Gasaansluiting | Ja |
| Wateraansluiting | Ja |
| Elektriciteitsaansluiting | Ja |
| TV aansluiting | Ja |
| Internetaansluiting | Ja |
| Telefoonaansluiting | Ja |
Een pand van
Immo-Expert & Co
Uw on(t)roerend goed specialist
Immo Expert & Co is reeds 25 jaar een begrip in Ternat en heeft nu ook een nieuw thuiskantoor geopend in Gooik.
Klanten vertrouwen op ons omwille van onze ongeëvenaarde persoonlijke service en discretie.
Wij doen alles van A tot Z voor de verkoop en verhuur van uw pand.
Hierbij maken we gebruik van de nieuwste digitale technieken om alles in goede banen te leiden. Zo zijn wij het enige kantoor in de ruime regio dat een 3D virtuele toer aanbiedt voor elk pand in de portefeuille. Kandidaat kopers of huurders wandelen als het ware meteen rond in hun droomwoning!
Wenst u een vrijblijvende schatting van uw vastgoed of heeft u een vraag omtrent verkoop of verhuur , contacteer ons dan vandaag nog op 02/5810980 of mail ons op info@immoexpert.be.
MUILENSTRAAT (LOT 1) LIEDEKERKE
Leer meer over vastgoed
23 March 2026
Op Spotto zoeken als een pro: 10 slimme tips
21 March 2026
Hoeveel kan ik lenen om een huis te kopen?
01 March 2026
Wanneer heb ik een bouwvergunning of omgevingsvergunning nodig?
17 February 2026