Nieuw Virtual tour
Instapklare gekoppelde woning in het centrum van Wemmel
Een pand van Immo-Wemmel
Overzicht
- 270 m² bewoonbaar
- 593 m² grond
- 4 Slaapkamer(s)
- 2 Badkamer(s)
- 3 Toilet(ten)
- 1 Living(s)
- 1 Tuin
- 1 Garage(s)
Beschrijving
In het hart van het charmante centrum van Wemmel bevindt zich deze schitterende halfopen bebouwing met 270 m² bewoonbare oppervlakte. De in 2018 gerenoveerde woning combineert rust en verfijning met modern comfort en bevindt zich op een perceel van 5a 93ca.
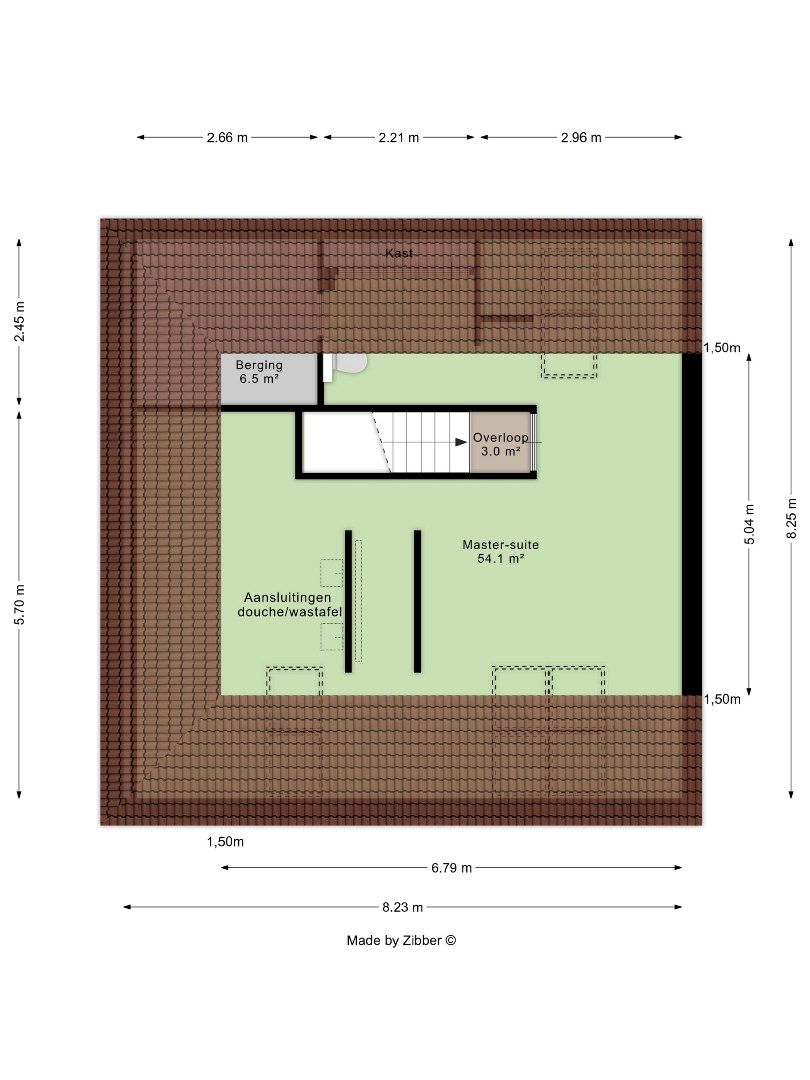
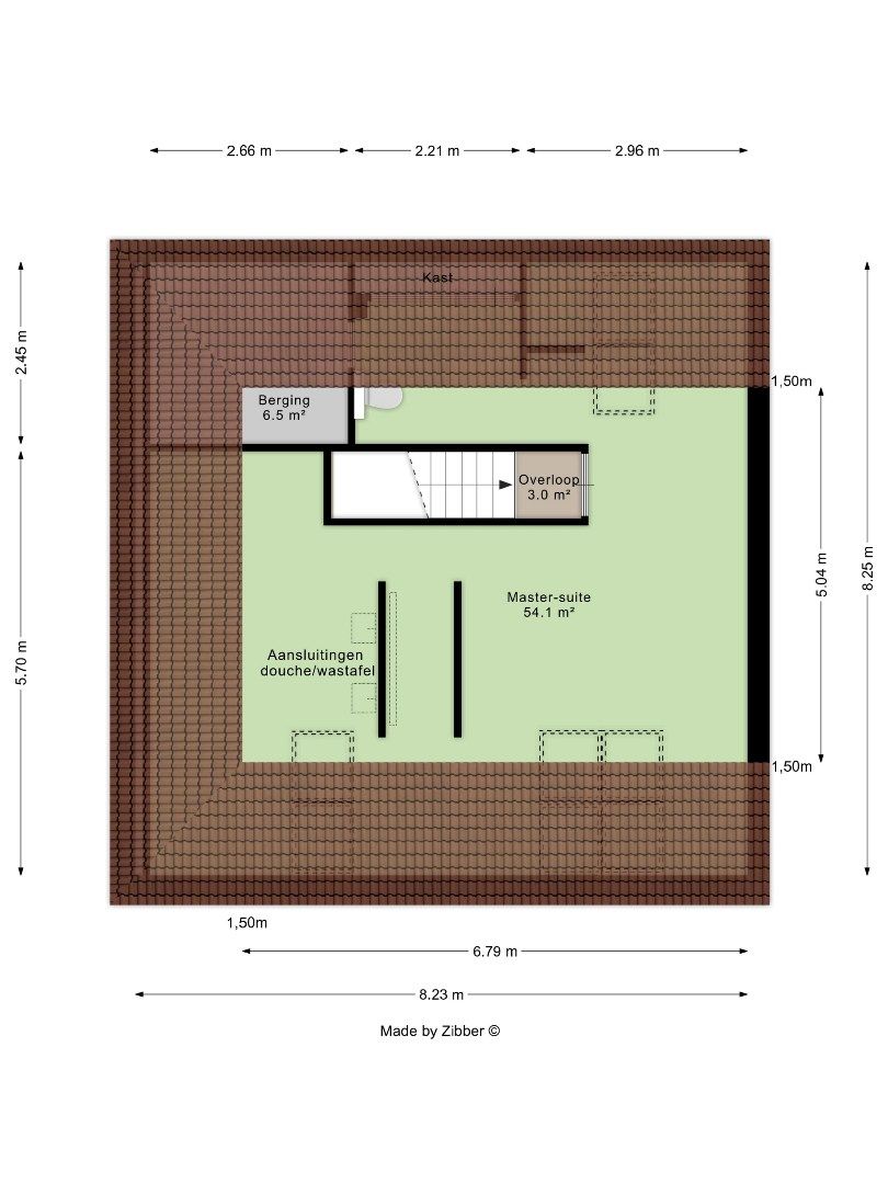
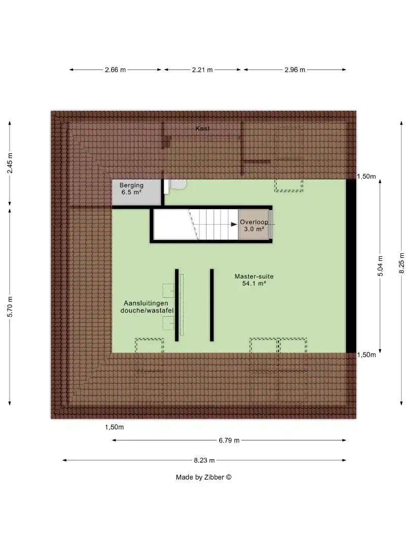
Op dit moment beschikt de woning over drie volwaardige ruime slaapkamers. Daarnaast werd de zolder volledig omgebouwd tot een royale master-suite, een ruime en lichtrijke verdieping die reeds alle voorzieningen bevat om een douche en dubbele wastafel te installeren (aansluitingen aanwezig), al zijn deze nog niet geplaatst.
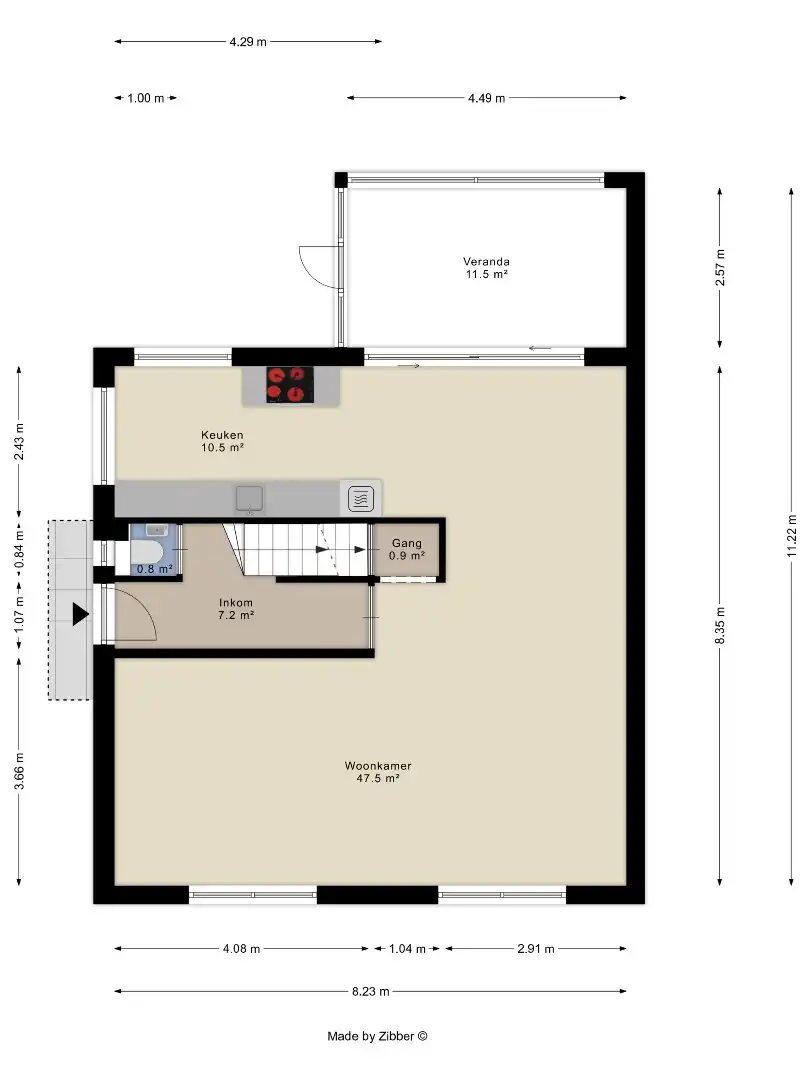
De woning heeft momenteel één ruime badkamer, uitgerust met een ligbad, inloopdouche en een enkele wastafel. Deze badkamer geeft toegang tot een wasruimte met voorzieningen voor wasmachine en droogkast. Verder zijn er drie toiletten, één op elke verdieping, en een volledig uitgeruste, hedendaagse keuken.
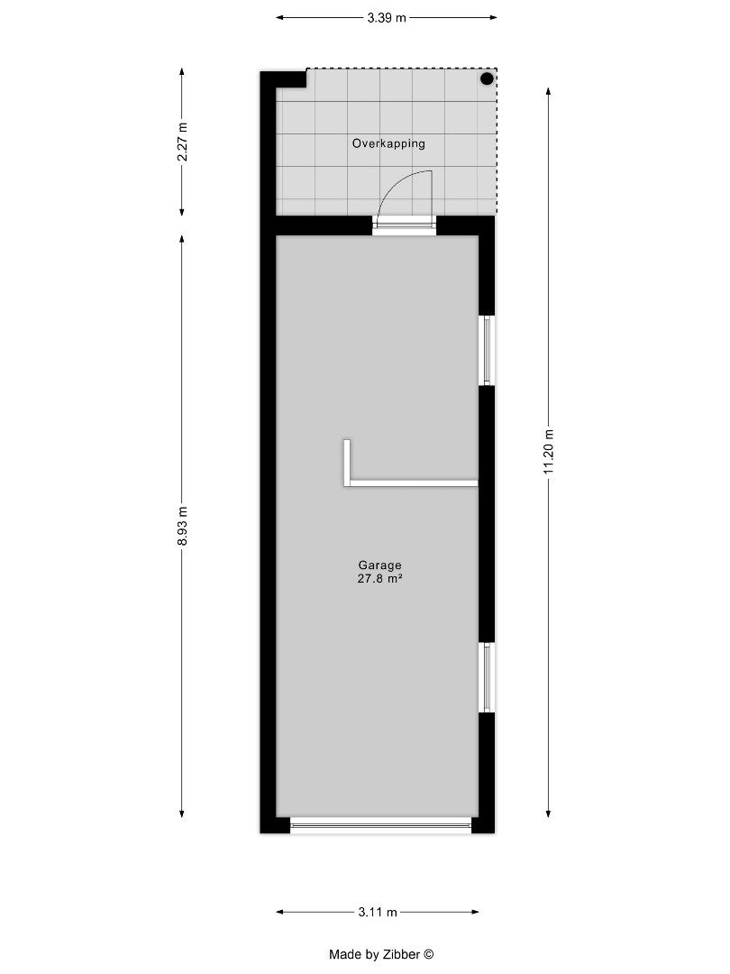
De onderhoudsvriendelijke voortuin en de omheinde achtertuin creëren een ideale buitenruimte voor ontspanning. De ruime privéoprit en de diepe garage bieden uitstekende parkeergelegenheid.
Dankzij hoogwaardige binnenisolatie, nieuwe ramen, een professioneel gecontroleerd dak en een gascondensatieketel blijven de energiekosten laag (EPC klasse C). De ligging is uiterst gunstig: winkels, scholen, openbaar vervoer en een vlotte verbinding naar Brussel en de ring bevinden zich op korte afstand.
Op dit moment beschikt de woning over drie volwaardige ruime slaapkamers. Daarnaast werd de zolder volledig omgebouwd tot een royale master-suite, een ruime en lichtrijke verdieping die reeds alle voorzieningen bevat om een douche en dubbele wastafel te installeren (aansluitingen aanwezig), al zijn deze nog niet geplaatst.
De woning heeft momenteel één ruime badkamer, uitgerust met een ligbad, inloopdouche en een enkele wastafel. Deze badkamer geeft toegang tot een wasruimte met voorzieningen voor wasmachine en droogkast. Verder zijn er drie toiletten, één op elke verdieping, en een volledig uitgeruste, hedendaagse keuken.
De onderhoudsvriendelijke voortuin en de omheinde achtertuin creëren een ideale buitenruimte voor ontspanning. De ruime privéoprit en de diepe garage bieden uitstekende parkeergelegenheid.
Dankzij hoogwaardige binnenisolatie, nieuwe ramen, een professioneel gecontroleerd dak en een gascondensatieketel blijven de energiekosten laag (EPC klasse C). De ligging is uiterst gunstig: winkels, scholen, openbaar vervoer en een vlotte verbinding naar Brussel en de ring bevinden zich op korte afstand.
Energie
![]() |
- EPC Certificaat: 20250517-0003599021-RES-1
- Energieverbruik: 229 kWh/m²/jaar
- Verwarming: Gas
- Beglazing: Hoog efficient dubbel
Op de kaart

Financieel
| Prijs | |
|---|---|
| Kadastraal inkomen (niet geïndexeerd) | € 1.814 |
| Kadastraal inkomen (geïndexeerd) | € 3.948 |
Berekening kosten
Je aankoopkosten? Die heb je snel berekent via de knop hieronder.
Bijkomende info
Gebouw
| Bouwjaar | 1956 |
|---|---|
| Renovatie jaar | 2018 |
| Staat | Goed onderhouden |
| Is beschermd | Nee |
| Bewoonbaar (m²) | 270 |
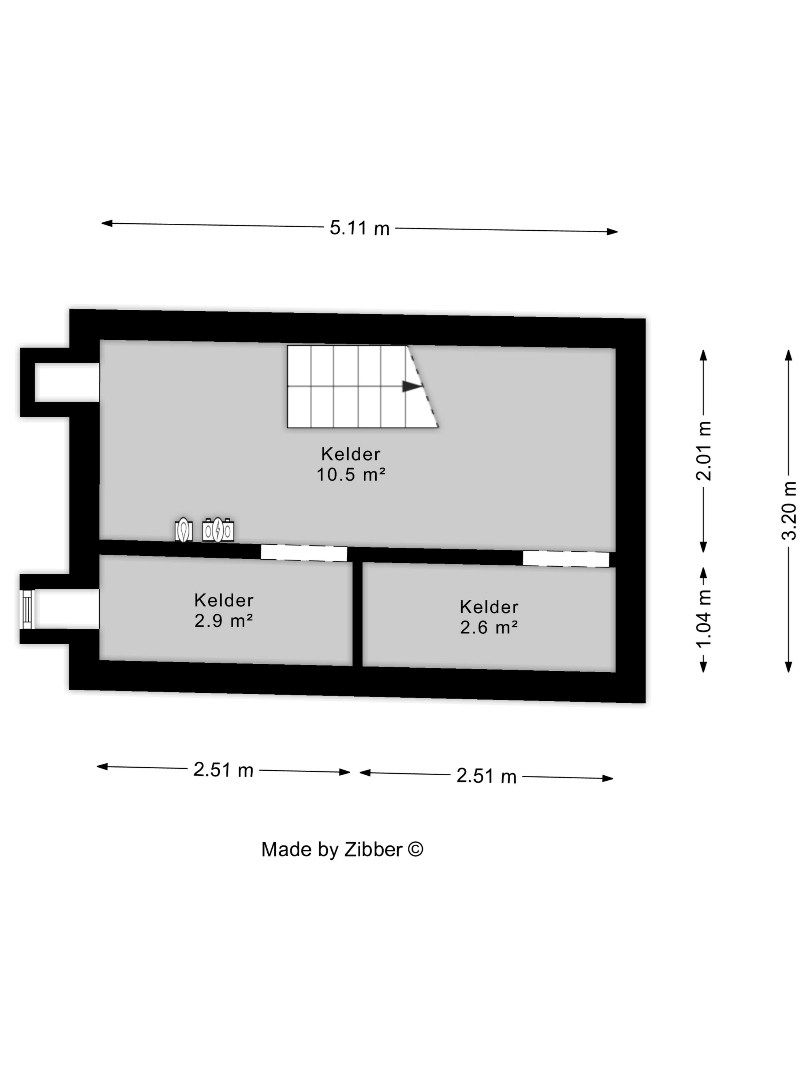
| Kelder | 1 |
| Badkamers | 2 |
| Slaapkamers | 4 |
| Garages | 1 |
| Keukens | 1 |
| Leefruimtes | 1 |
| Toiletten | 3 |
Ruimtes
| Kelder | 16 m² |
|---|---|
| Slaapkamer | 14.9 m² |
| Slaapkamer | 14.5 m² |
| Slaapkamer | 13.3 m² |
| Slaapkamer | 54.1 m² |
| Keuken | 10.5 m² |
| Leefruimte | 47.5 m² |
Faciliteiten
| Keuken uitrusting | Goed uitgerust |
|---|---|
| Materiaal ramenomlijstingen | Aluminium |
| Beglazing | Hoog efficient dubbel |
| Luiken | Ja |
| Primaire verwarmingsbron | Condensatieketel |
| Brandstof primaire verwarming | Gas |
| Warm water type | Geen verwarming |
Perceel
| Overstromingsgevoelig | Geen |
|---|---|
| P-score | A |
| G-score | A |
| Voorkeurrecht | Nee |
| Totale oppervlakte (m²) | 593 |
Vergunning
| Vergunning | Vergunning beschikbaar |
|---|---|
| Type gebied | Stedelijk |
Uitrusting
| Meerdere eigenaars | Nee |
|---|---|
| Geschikt als kangoeroewoning | Nee |
| Geschikt voor rolstoelgebruikers | Nee |
| Geschikt voor praktijk | Nee |
| Volledig onderkelderd | Nee |
| Parking | Ja |
| Garage | Ja |
| Thuiskantoor | Nee |
| Kelder | Ja |
| Zolder | Nee |
| Opslagruimte | Nee |
| Tuin | Ja |
| Terras | Nee |
| Lift | Nee |
| Rioolaansluiting | Nee |
| Gasaansluiting | Nee |
| Wateraansluiting | Nee |
| Elektriciteitsaansluiting | Nee |
| TV aansluiting | Nee |
| Internetaansluiting | Nee |
| Zonnepanelen | Nee |
| Zonneboiler | Nee |
| Alarm | Ja |
| Zwembad | Nee |
| Jacuzzi | Nee |
| Toonzaal | Nee |
| Ventilatie | Nee |
Een pand van
Immo-Wemmel
Immo Wemmel: uw partner in verkoop, verhuur en rentmeesterschap
Immo Wemmel is de perfecte symbiose van ervaring en dynamiek. Opgericht in 1972 zijn wij een referentie als vastgoedmakelaar in de noordrand van Brussel van Groot-Bijgaarden tot Vilvoorde. Onze meerwaarde ligt in het feit dat wij onze ervaring en kennis combineren met de modernste middelen die ter beschikking staan om uw pand in de kijker te zetten. Klantgerichtheid is voor ons geen hol begrip. Wij zijn immers een full-service kantoor dat dicht bij onze klanten staat waardoor wij het verschil maken in het complexe vastgoedgebeuren. Ons professionalisme en de wil om tot het uiterste te gaan, maken van Immo Wemmel de juiste partner voor al uw vastgoedtransacties.
Omdat wij steeds vaker de vraag van onze klanten ontvangen om het beheer van hun woning(en) of appartement(en) over te nemen, hebben wij beslist om de dienst "Rentcare" aan te bieden aan al onze klanten.
Leer meer over vastgoed

Nieuw
24 November 2025
Uitgezocht voor jouw gemeente: Hoeveel stijgt de waarde van je woning door een renovatie?
22 October 2025
Hoeveel kan ik lenen om een huis te kopen?
11 June 2025
Huis kopen met bouwovertreding? Dit moet je weten
11 May 2025
