Ruim appartement zonder gemeenschappelijke lasten in centrum Merchtem
€ 195.000
Een pand van bvba Optio
Overzicht
- 100 m² bewoonbaar
- 2 Slaapkamer(s)
- 1 Living(s)
Beschrijving
Appartement op de tweede verdieping van een kleinschalig gebouw zonder lift en zonder gemeenschappelijke lasten.
Gelegen in het centrum, op wandelafstand van winkels, scholen en openbaar vervoer.
Het appartement is vrij van asbest, de elektrische installatie is conform en het EPC-label is D. Er zijn dus geen verplichte renovatiewerken. De keuken en badkamer zijn aan vernieuwing of minstens opfrissing toe.
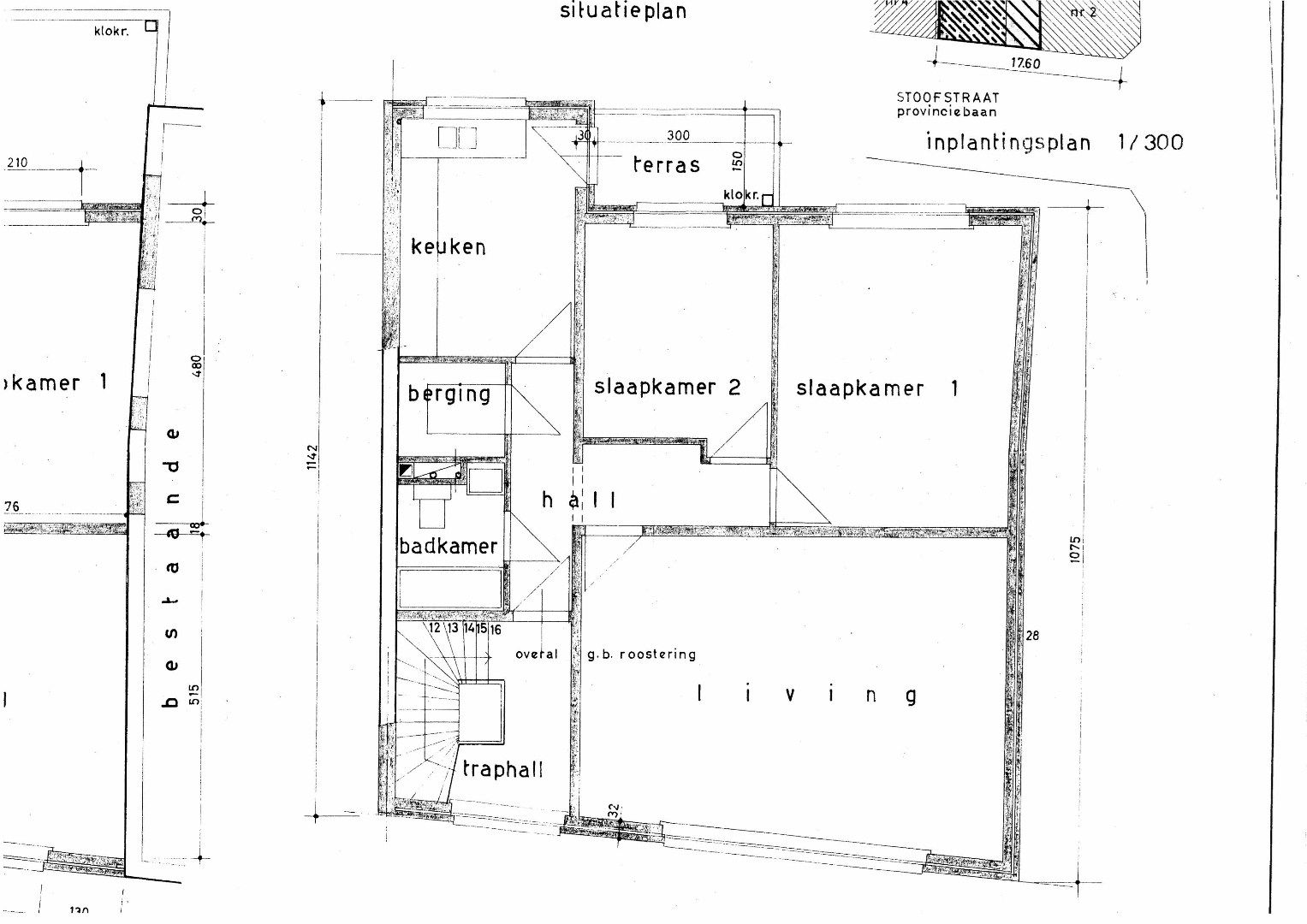
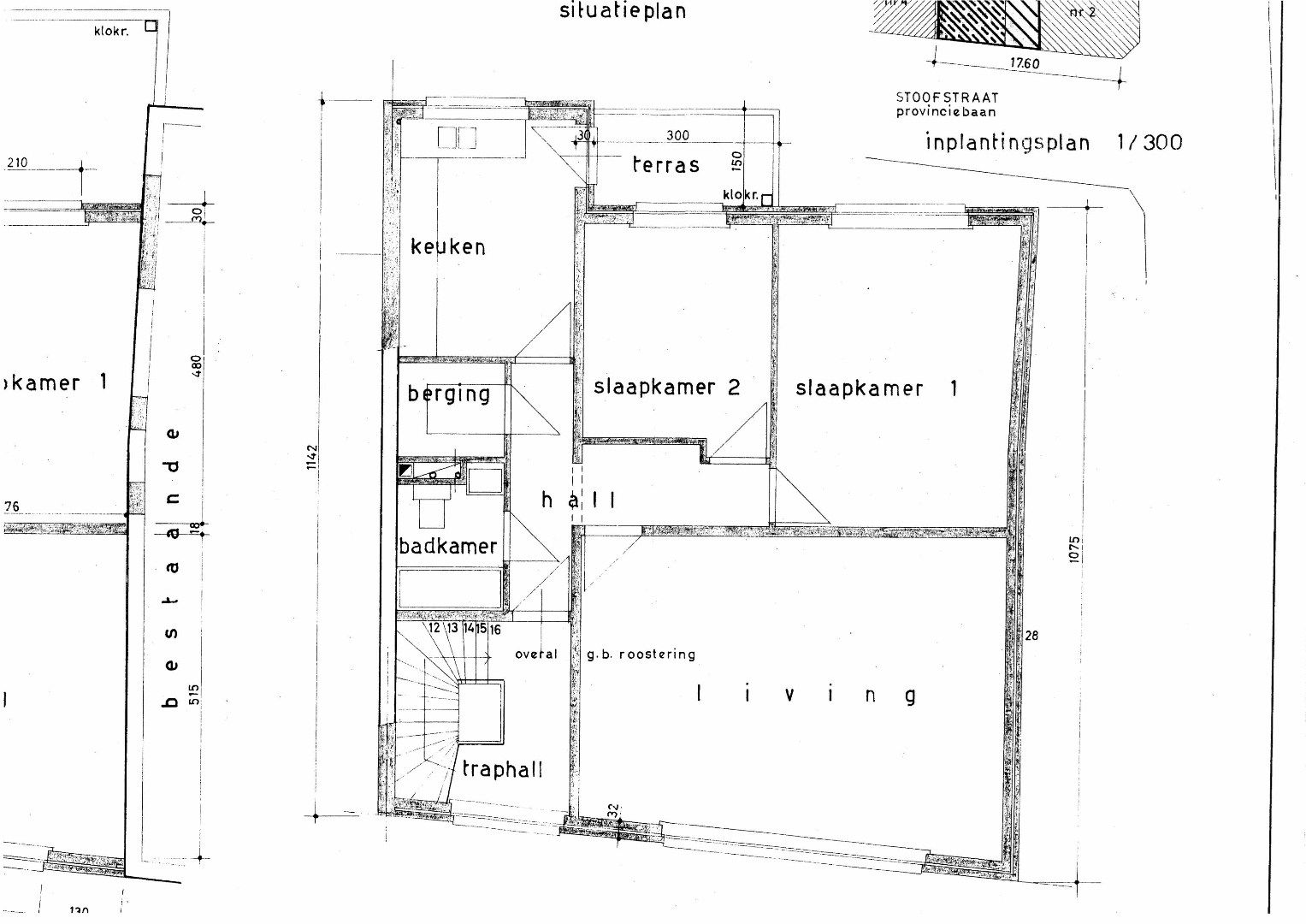
Indeling: inkomhal, ruime leefruimte (± 33 m²), badkamer, berging, keuken met klein terras en twee slaapkamers (± 18 m² en ± 10 m²).
Voor meer informatie of een bezoek: 052 38 12 87.
Gelegen in het centrum, op wandelafstand van winkels, scholen en openbaar vervoer.
Het appartement is vrij van asbest, de elektrische installatie is conform en het EPC-label is D. Er zijn dus geen verplichte renovatiewerken. De keuken en badkamer zijn aan vernieuwing of minstens opfrissing toe.
Indeling: inkomhal, ruime leefruimte (± 33 m²), badkamer, berging, keuken met klein terras en twee slaapkamers (± 18 m² en ± 10 m²).
Voor meer informatie of een bezoek: 052 38 12 87.
Energie
![]() |
- EPC Certificaat: 20221115-0002725943-RES-2
- Verwarming: Gas
- Beglazing: Hoog efficient dubbel
Extra budget nodig voor je renovatie?
De overheid helpt je dit pand energetisch te renoveren! Hieronder zie je het premiebedrag dat je mogelijks van de overheid krijgt.
Het huidige EPC-label is:

Op de kaart

Financieel
| Prijs | |
|---|---|
| Kadastraal inkomen (niet geïndexeerd) | € 870 |
Berekening kosten
Je aankoopkosten? Die heb je snel berekent via de knop hieronder.
Bijkomende info
Gebouw
| Bouwjaar | 1974 |
|---|---|
| Is beschermd | Nee |
| Bewoonbaar (m²) | 100 |
| Verdieping | 2 |
| Slaapkamers | 2 |
| Keukens | 1 |
| Leefruimtes | 1 |
| Opslagruimtes | 1 |
Ruimtes
| Slaapkamer | 18 m² |
|---|---|
| Slaapkamer | 10 m² |
| Keuken | 11 m² |
| Leefruimte | 33 m² |
| Opbergruimte | 3 m² |
| Terras | 4 m² |
Faciliteiten
| Materiaal ramenomlijstingen | PVC |
|---|---|
| Beglazing | Hoog efficient dubbel |
| Luiken | Nee |
| Brandstof primaire verwarming | Gas |
| Warm water type | Geen verwarming |
Perceel
| Overstromingsgevoelig | Geen |
|---|---|
| P-score | B |
| G-score | B |
| Voorkeurrecht | Nee |
| Oppervlakte terras (m²) | 4 |
Vergunning
| Vergunning | Vergunning beschikbaar |
|---|---|
| Verkavelingsvergunning | Geen beschikbaar |
| Type gebied | Stedelijk |
Uitrusting
| Meerdere eigenaars | Nee |
|---|---|
| Geschikt als kangoeroewoning | Nee |
| Geschikt voor rolstoelgebruikers | Nee |
| Geschikt voor praktijk | Nee |
| Volledig onderkelderd | Nee |
| Parking | Nee |
| Garage | Nee |
| Thuiskantoor | Nee |
| Kelder | Nee |
| Zolder | Nee |
| Opslagruimte | Ja |
| Tuin | Nee |
| Terras | Ja |
| Lift | Nee |
| Rioolaansluiting | Ja |
| Gasaansluiting | Ja |
| Wateraansluiting | Ja |
| Elektriciteitsaansluiting | Ja |
| TV aansluiting | Nee |
| Internetaansluiting | Nee |
| Zonnepanelen | Nee |
| Zonneboiler | Nee |
| Alarm | Nee |
| Zwembad | Nee |
| Jacuzzi | Nee |
| Toonzaal | Nee |
| Ventilatie | Nee |
Appartementsblok
| Lift | Nee |
|---|---|
| Intercom | Nee |
Een pand van
bvba Optio
Uw vastgoed, onze zorg.
Vastgoedkantoor Optio bouwt op de vakkennis en de lokale verbondenheid van Jan De Bisschop, die het vak leerde van zijn vader. Ons kantoor staat bekend om zijn eerlijke informatie. Bij Optio geen luchtkastelen, wel vastgoedtransacties die staan als een huis. Goed om te weten: onze samenwerking met het landmeterskantoor De Bisschop+Geerts vormt een absolute meerwaarde.
O25041
Leer meer over vastgoed
Nieuw
24 November 2025
Uitgezocht voor jouw gemeente: Hoeveel stijgt de waarde van je woning door een renovatie?
22 October 2025
Hoeveel kan ik lenen om een huis te kopen?
11 June 2025
Huis kopen met bouwovertreding? Dit moet je weten
11 May 2025


