Kerkstraat 35 - Lot 1
€ 487.800
Een pand van Immo-Desk
Favoriet
Jouw zoektocht
Jouw scoretabel voor dit pand
Aan het laden...
Jouw geplande bezichtigingen
Aan het laden...
Overzicht
- 186 m² bewoonbaar
- 308 m² grond
- 3 Slaapkamer(s)
- 1 Badkamer(s)
- 1 Tuin
Beschrijving
Te koop: 2 nieuw te bouwen halfopen bebouwingen in Affligem.
Deze BEN- woningen (Bijna EnergieNeutrale woningen) zijn nog nieuw te bouwen waardoor u zelf het ontwerp en de afwerking die het best bij u passen in de hand hebt en dit alles onder professionele begeleiding van A tot Z.
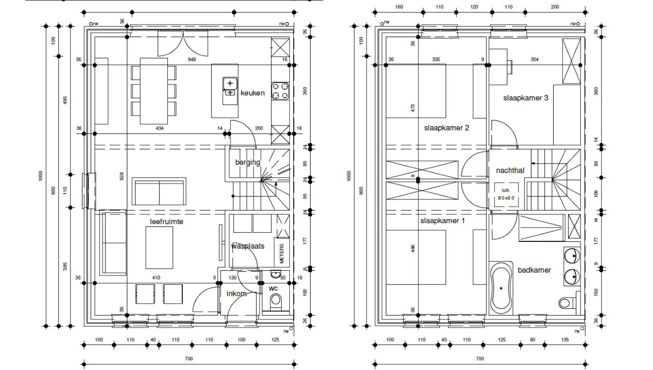
De voorbeeldwoning bestaat uit een ruime inkomhal, open keuken, leefruimte, berging en gastentoilet. Op de 1ste verdieping is er een ruime nachthal, 3 slaapkamers en badkamer. Verder is er nog een zolderverdieping. Carport mogelijk. Residentieel en rustig gelegen en toch vlakbij het centrum. School op 500m. Bus op 250m. Station op 4km.
De opgegeven prijzen zijn excl. registratierechten op de grond en BTW op de constructiewaarde en wanneer er gebouwd wordt volgens huidig plan en volgens de afwerking/ materialen voorgesteld in het lastenboek, met inbegrip van ingerichte keuken, badkamer, toiletten, centrale verwarming, zonnepanelen, driedubbele beglazing, warmtepomp en vloerverwarming op het gelijkvloers en in de badkamer.
Graag bespreken wij met u de plannen en mogelijkheden.
Deze BEN- woningen (Bijna EnergieNeutrale woningen) zijn nog nieuw te bouwen waardoor u zelf het ontwerp en de afwerking die het best bij u passen in de hand hebt en dit alles onder professionele begeleiding van A tot Z.
De voorbeeldwoning bestaat uit een ruime inkomhal, open keuken, leefruimte, berging en gastentoilet. Op de 1ste verdieping is er een ruime nachthal, 3 slaapkamers en badkamer. Verder is er nog een zolderverdieping. Carport mogelijk. Residentieel en rustig gelegen en toch vlakbij het centrum. School op 500m. Bus op 250m. Station op 4km.
De opgegeven prijzen zijn excl. registratierechten op de grond en BTW op de constructiewaarde en wanneer er gebouwd wordt volgens huidig plan en volgens de afwerking/ materialen voorgesteld in het lastenboek, met inbegrip van ingerichte keuken, badkamer, toiletten, centrale verwarming, zonnepanelen, driedubbele beglazing, warmtepomp en vloerverwarming op het gelijkvloers en in de badkamer.
Graag bespreken wij met u de plannen en mogelijkheden.
Energie
![]() |
Op de kaart

Financieel
| Prijs |
|---|
Bijkomende info
Gebouw
| Bouwjaar | 2026 |
|---|---|
| Bewoonbaar (m²) | 186 |
| Gevels | 3 |
| Badkamers | 1 |
| Slaapkamers | 3 |
| Parkeerplaatsen | 0 |
Faciliteiten
| Type vloer |
|---|
Perceel
| Overstromingsgevoelig | Geen |
|---|---|
| P-score | A |
| Voorkeurrecht | Nee |
| Totale oppervlakte (m²) | 308 |
| Tuin oppervlakte (m²) | 308 |
Vergunning
| Vergunning | Geen beschikbaar |
|---|---|
| Verkavelingsvergunning | Vergunning beschikbaar |
| Bouwovertreding | Geen |
| Bouwovertreding dagvaardiging | Geen |
Uitrusting
| Parking | Nee |
|---|---|
| Garage | Nee |
| Tuin | Ja |
| Terras | Nee |
Een pand van
Immo-Desk
Welkom bij Immo-Desk!
Wij zijn gespecialiseerd in de verkoop en verhuur van bestaande woningen en appartementen en de verkoop van nieuwbouwprojecten en projectgronden. Je kan bij ons ook terecht voor een gratis waardebepaling van je eigendom.
Wat ook je plannen zijn, als erkend makelaar streven we naar de hoogste klantentevredenheid. We kennen het juridisch kader en geven graag een antwoord op al jouw vragen. Je verkoopt jouw woning of zoekt een nieuwe woonst? Elke klant kan op onze professionele hulp rekenen. Contacteer ons gerust op 0498/91 12 34.
Leer meer over vastgoed
24 April 2026
Duurzaam gelegen woning? Check je Mobiscore
23 March 2026
Op Spotto zoeken als een pro: 10 slimme tips
21 March 2026
Hoeveel kan ik lenen om een huis te kopen?
01 March 2026
