Grond voor kantoor of gemengd gebouw
Een pand van A Property & Pelsmaekers
Overzicht
- 620 m² grond
 Overstromingsgevaar gebouw Overstromingsgevaar gebouw
Beschrijving
Grond voor kantoorgebouw of hotel.
Deze projectgrond is gelegen op de hoek van de Grote Kloosterstraat met de Frans Smoldersstraat te Sint Stevens Woluwe. Sectie A nrs 246 V en 246 Y
De grond heeft een oppervlakte van 6a20ca.
Er is een stedenbouwkundige vergunning afgeleverd voor de bouw van een kantoorgebouw. Appartementen zouden volgens de gemeente niet hier mogen gerealiseerd worden. Wel bewoning zonder domicilie (hotel, gemeubelde flats), opslag in combinatie met bewoning.
Indien u graag meer informatie wenst, aarzel niet contact op te nemen via 078 48 47 00 of info@ap-p.be
Energie
- E-peil: E0
- Beglazing: Enkel
Op de kaart

Downloads
- OVAM secite A nr 246 Y Frans Smoldersstraat St Stevens Woluwe.pdf
- OVAM sectie A 246 V Frans Smoldersstraat St Stevens Woluwe.pdf
- stedenbouwkundige info Grote Kloosterstr Frans Smoldersstr 27022015.pdf
- STEDENBOUWKUNDIGUITTREKSEL Grote Kloosterstraat 1932 Zaventem.pdf
- 29012015 kadastraal uittreksel Grote Kloosterstraat Sint Stevens Woluwe BLANCO .pdf
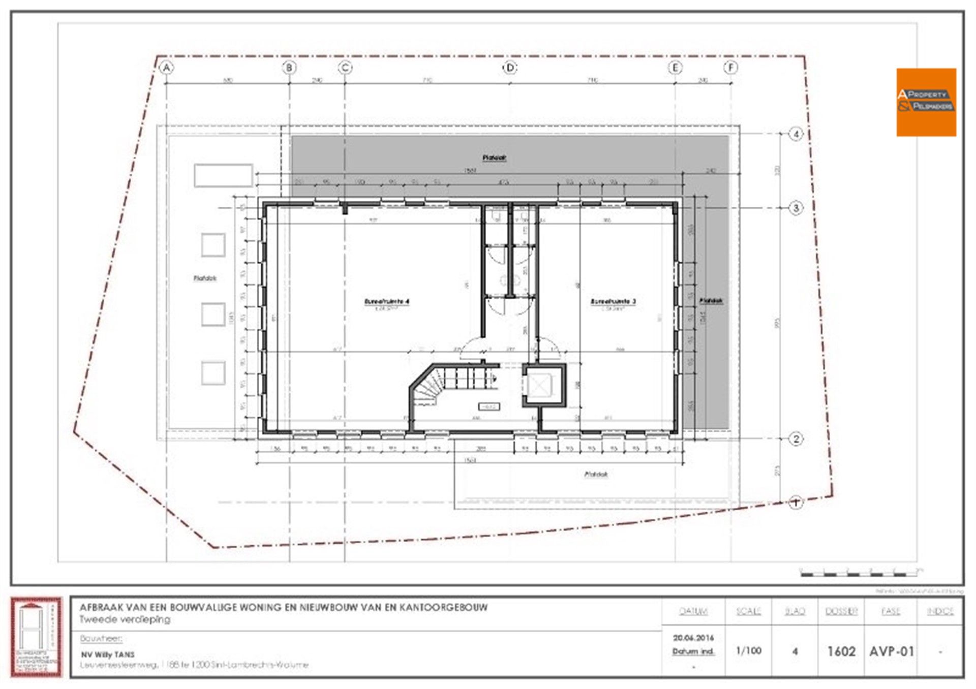
- 2de verdieping.pdf
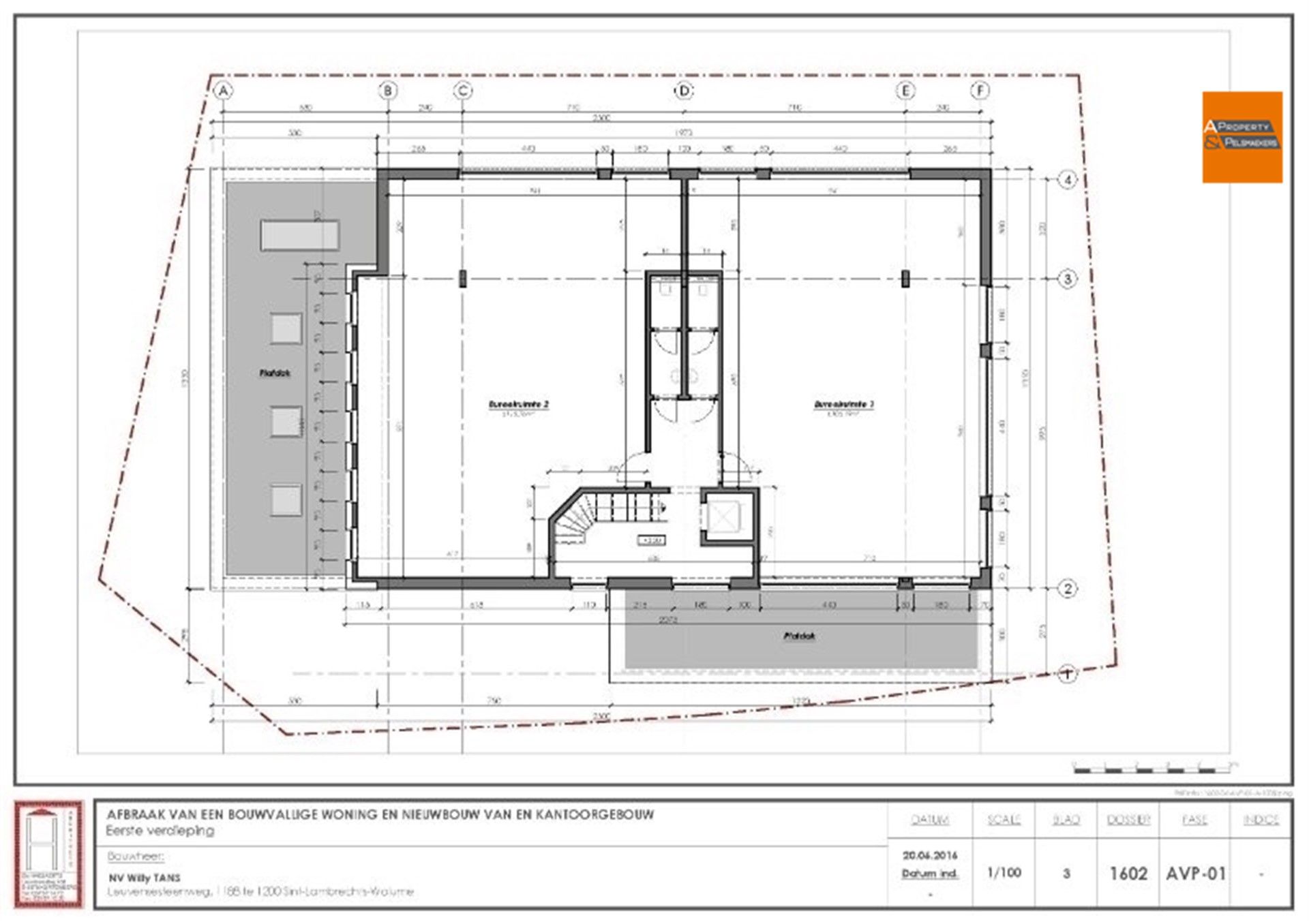
- eerste verdieping.pdf
- gelijkvloerse verdieping parkings.pdf
- inplantingsplan.pdf
- bouwvergunning blaco 20170227.pdf
Financieel
| Prijs | |
|---|---|
| Kadastraal inkomen (niet geïndexeerd) | € 0 | 
| Kadastraal inkomen (geïndexeerd) | € 0 | 
Berekening kosten
Je aankoopkosten? Die heb je snel berekent via de knop hieronder.
Bijkomende info
Gebouw
| Bouwcertificaat | Nee | 
|---|
Perceel
| Overstromingsgevoelig | Geen | 
|---|---|
| Voorkeurrecht | Nee | 
| Totale oppervlakte (m²) | 620 | 
Vergunning
| Vergunning | Vergunning beschikbaar | 
|---|---|
| Verkavelingsvergunning | Geen beschikbaar | 
Uitrusting
| Investeringspand | Nee | 
|---|---|
| Rioolaansluiting | Nee | 
| Gasaansluiting | Nee | 
| Wateraansluiting | Nee | 
| Elektriciteitsaansluiting | Nee | 
| TV aansluiting | Nee | 
| Internetaansluiting | Nee | 
| Telefoonaansluiting | Nee | 
Een pand van
A Property & Pelsmaekers
 Service & Expertise 
 x 
 Sint-Stevens-Woluwe Grote Kloosterstraat 0 
Leer meer over vastgoed
 Nieuw 
 22 October 2025 
Hoeveel kan ik lenen om een huis te kopen?
 11 June 2025 
Huis kopen met bouwovertreding? Dit moet je weten
 11 May 2025 
Renoveren? Vraag je Mijn VerbouwPremie aan
 22 April 2025